The Courtyards at Bailey Farms
Community by Epcon Communities

$444,900 - $703,983
What does this Price Range mean?The Price Range displayed reflects the base price of the homes built in this community.
You get to select from the many different types of homes built by this Builder and personalize your New Home with options and upgrades.

52185073591_122eaddc78_k.jpg 1/25
Special offers
Explore the latest promotions at The Courtyards at Bailey Farms. Contact Epcon Communities to learn more!
Limited Time Opportunity...4.5% Interest Rate*
Available homes

From $646,237
3 Br | 3 Ba | 2.5 Gr | 2,597 sq ft
3422 Fishpond Circle (Portico)

From $631,089
3 Br | 3 Ba | 2.5 Gr | 2,454 sq ft
3507 Fishpond Circle (Portico)

From $622,897
2 Br | 2 Ba | 2.5 Gr | 2,063 sq ft
3527 Fishpond Circle (Promenade)

From $576,979
2 Br | 2 Ba | 2.5 Gr | 1,886 sq ft
3557 Fishpond Circle (Portico)

From $555,880
2 Br | 2 Ba | 2.5 Gr | 1,818 sq ft
3472 Fishpond Circle (Palazzo)

From $703,983
3 Br | 3 Ba | 2.5 Gr | 2,826 sq ft
3322 Fishpond Circle (Promenade)

From $642,983
3 Br | 3 Ba | 2.5 Gr | 2,461 sq ft
3302 Fishpond Circle (Portico)

From $581,423
2 Br | 2 Ba | 2.5 Gr | 1,894 sq ft
3347 Fishpond Circle (Portico)

From $474,900
2 Br | 2 Ba | 2 Gr | 1,769 sq ft
Portico
Dacula, GA 30019
From $444,900
2 Br | 2 Ba | 2 Gr | 1,520 sq ft
Palazzo
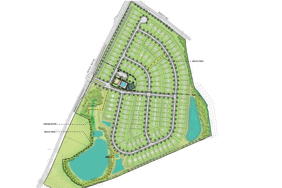
Dacula, GA 30019Community map for The Courtyards at Bailey Farms
Buying new construction allows you to select a lot within a community. Contact Epcon Communities to discuss availability and next steps.

Overview
Club House
Dog Park
Fire Pit
Fitness Center
Pickleball
Pond
Pool
Trails
Welcome to The Courtyards at Bailey Farms, a 55+ Active Lifestyle community in Dacula, GA. This boutique community offers an exceptional living experience, embracing the idea of single-level living and a low-maintenance lifestyle. At The Courtyards at Bailey Farms, we've thoughtfully designed our homes to support you today and into the future, boasting features like first-floor owner suites, spacious hallways, and open floorplans. Single-Level Living: Say goodbye to stairs and embrace the convenience of single-level living. Our homes are designed to provide all your essential living spaces on one floor, making daily life more accessible and enjoyable. Private Courtyards: Enjoy the serenity of our private courtyards, where you can savor outdoor moments in your own private oasis. Low-Maintenance Lifestyle: Embrace a life free from the hassles of lawn maintenance, and spend your time doing the things you love while we take care of the rest. The Courtyards at Bailey Farms is more than just a place to live; it's a place to thrive. Come and discover a new level of comfort and convenience in an amenity-rich community. Your future begins here, and we invite you to schedule an appointment to experience this community for yourself, and learn more about what it means to live well every day!
Neighborhood
Community location & sales center
479 Pumphouse Court
Dacula, GA 30019
479 Pumphouse Court
Dacula, GA 30019
Nearby schools
Gwinnett County Schools
Elementary school. Grades KG to 5.
- Public school
- Teacher - student ratio: 1:14
- Students enrolled: 1188
2500 Fence Rd, Dacula, GA, 30019
770-963-7174
Middle school. Grades 6 to 8.
- Public school
- Teacher - student ratio: 1:17
- Students enrolled: 1839
137 Dacula Rd, Dacula, GA, 30019
770-963-1110
High school. Grades 9 to 12.
- Public school
- Teacher - student ratio: 1:17
- Students enrolled: 2498
123 Broad St, Dacula, GA, 30019
770-963-6664
Actual schools may vary. We recommend verifying with the local school district, the school assignment and enrollment process.
Amenities
Community & neighborhood
Local points of interest
- Pond
Social activities
- Club House
- FirePit
Health and fitness
- Pool
- Trails
- FitnessCenter
- Pickleball
Community services & perks
- HOA fees: Unknown, please contact the builder
- Fire Pit
- Clubhouse
- Dog Park
- Fitness Center
- Pickleball
- Pond/Lake
- Pool
- Walking Trail
- DogPark
Neighborhood amenities
Publix
1.10 miles away
831 Auburn Rd
Kroger
1.29 miles away
505 Dacula Rd
Publix
1.50 miles away
720 Dacula Rd
Ingles Market
1.58 miles away
1221 Dacula Rd
Publix
2.08 miles away
952 Harbins Rd
GNC
1.27 miles away
2515 Fence Rd
Quirky Desserts
2.18 miles away
1451 Millmoore Ter
Kroger Bakery
3.34 miles away
2700 Braselton Hwy
Soul Truckin Good
0.93 mile away
3206 Fence Rd
Maria's Tex Mex
1.10 miles away
831 Auburn Rd
Papa Johns
1.10 miles away
831 Auburn Rd
Peking Restaurant
1.10 miles away
831 Auburn Rd
Taco Bell
1.19 miles away
821 Auburn Rd
Starbucks
1.29 miles away
505 Dacula Rd
Starbucks
1.38 miles away
485 Dacula Rd
Tradewind Coffee Co
1.52 miles away
2300 Liam Ave
Joy Donuts & Bakery
1.81 miles away
2995 Old Fountain Rd
Dunkin'
2.08 miles away
557 Dacula Rd
Tha4 Boutique
0.63 mile away
3491 Clear Stream Run
Magical Fashions
1.45 miles away
2880 Evergreen Eve Xing
Logans Boutique LLC
1.89 miles away
1342 Auburn Rd
Dollar Tree
1.93 miles away
2590 Winder Hwy
Closet Geek LLC
2.67 miles away
2210 Castle Royale Dr
Old Fountain Tavern
1.69 miles away
1250 Auburn Rd
Stars and Strikes
3.16 miles away
1700 Winder Hwy
HS Caribbean Cafe & Entertainment Venue
3.80 miles away
288 Hardy Water Dr
Buffalo's
4.14 miles away
3450 Braselton Hwy
Asian Garden Dacula
4.24 miles away
2463 Hamilton Mill Pkwy
Please note this information may vary. If you come across anything inaccurate, please contact us.
Epcon Communities was founded in Columbus, Ohio in 1986 by Ed Bacome and Phil Fankhauser, when they realized the needs of the 55+ home buyer had been overlooked by builders everywhere.
From the very beginning, we’ve integrated smart and innovative designs with the most desirable modern amenities. The popularity of Epcon Communities quickly spread throughout Central Ohio and well beyond. For the past three decades, we’ve continued to improve our home designs as homeowners’ wants and needs have changed. While our designs are constantly evolving, one thing remains the same – we provide our home buyers with award-winning layouts they’ll love. Today, more than 35,000 families and individuals call an Epcon community home, making Epcon Communities one of the top lifestyle-rich home builders in the country year after year.
After nearly a decade of building beautiful homes and developing thriving communities, Epcon Communities Franchising was established in 1995. This company’s mission is the same – serve individuals and families across the nation with low-maintenance lifestyle needs. The corporate entity along with the Franchise Builder network have resulted in over 450 communities built in more than 25 states.
A Trusted Home BuildernFor Over 35 Years
At Epcon Communities, our mission is to build homes, neighborhoods, and lifestyles that provide one remarkable experience. We create communities where residents can experience the best moments of life. Each Epcon home is carefully designed with uncompromising standards. From award-winning floor plan layouts to state-of-the-art amenities, Epcon homes and communities are the perfect places to entertain friends, relax with family, and cherish time.
Take the next steps toward your new home
The Courtyards at Bailey Farms
Discover More Great Communities
Select additional listings for more information
We're preparing your brochure
You're now connected with Epcon Communities. We'll send you more info soon.
The brochure will download automatically when ready.
Brochure downloaded successfully
Your brochure has been saved. You're now connected with Epcon Communities, and we've emailed you a copy for your convenience.
The brochure will download automatically when ready.
Way to Go!
You’re connected with Epcon Communities.
The best way to find out more is to visit the community yourself!