Skip main navigation
Floor Plan A home design you can choose to customize and build in this community, on your choice of homesite. Ready to build

Napa Valley

4602 W Boston Rd, Broadview Heights, OH, 44147

by Petros Homes

From $549,900 This is the starting price for this plan and is subject to change.

Monthly HOA fees: $175

  • 3 Beds
  • 2.5 Baths
  • 2 Car garage
  • 1,938 Sq Ft

    Overview

    Floor plan features

    • 1 Half Bathroom
    • 2 Stories
    • Basement
    • Covered Patio
    • Deck
    • Dining Room
    • Family Room
    • Fireplaces
    • Loft
    • Primary Bed Downstairs
    • Single Family
    • Walk-In Closets

    Floor plan description

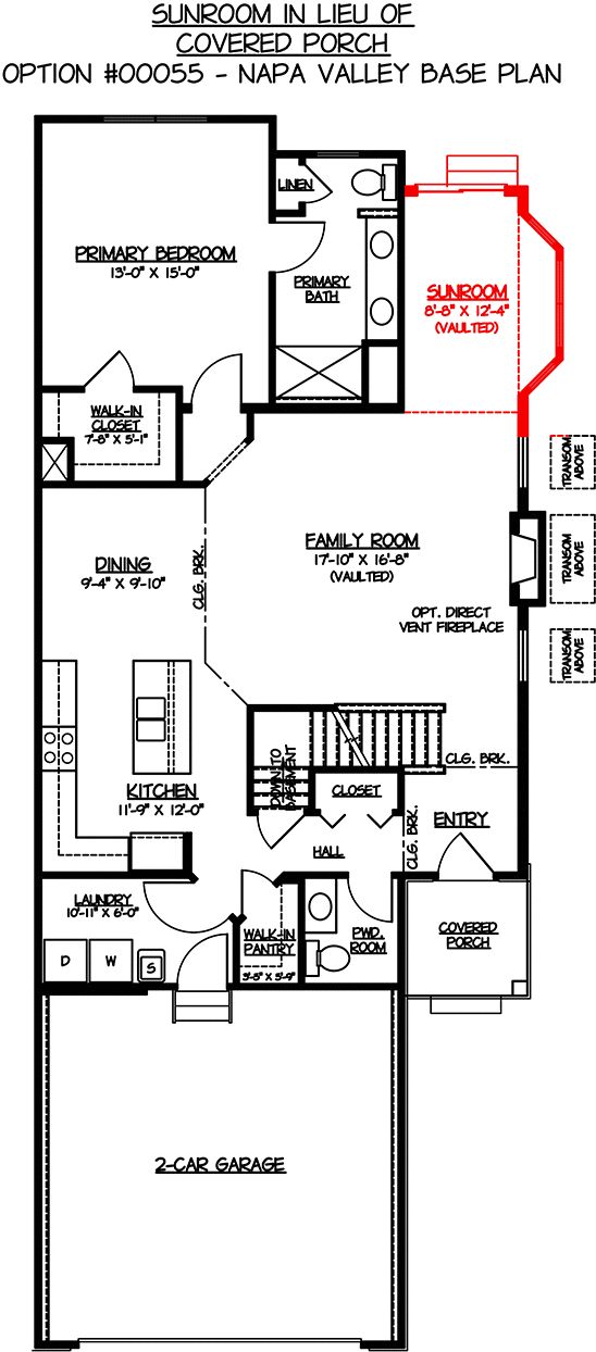
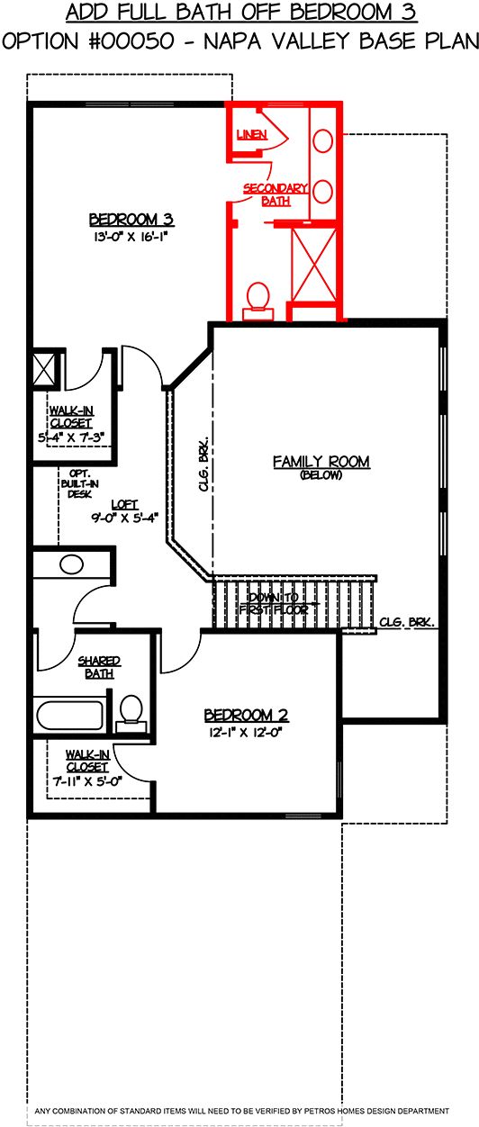
    Welcome to the Napa Valley floor plan at Bordeaux Crossings! This villa offers 1,938 square feet with 3 bedrooms, 2.5 bathrooms, a 2 car garage, and several customizable options. Walk into a dedicated foyer that opens directly into a vaulted great room leading to a covered rear porch or optional sunroom. This space provides an open and airy feel with a beautiful window wall and an optional fireplace. The kitchen will make any cook feel at home, with lots of counter space, soft close cabinetry, a large center island for prep or entertaining, separate dining space, and walk-in pantry. The 1st-floor primary suite boasts a large walk-in closet and ensuite bath with double vanities and spacious shower. The laundry room and 1/2 bath complete the first floor. Upstairs, you'll find two additional ...

    Welcome to the Napa Valley floor plan at Bordeaux Crossings! This villa offers 1,938 square feet with 3 bedrooms, 2.5 bathrooms, a 2 car garage, and several customizable options. Walk into a dedicated foyer that opens directly into a vaulted great room leading to a covered rear porch or optional sunroom. This space provides an open and airy feel with a beautiful window wall and an optional fireplace. The kitchen will make any cook feel at home, with lots of counter space, soft close cabinetry, a large center island for prep or entertaining, separate dining space, and walk-in pantry. The 1st-floor primary suite boasts a large walk-in closet and ensuite bath with double vanities and spacious shower. The laundry room and 1/2 bath complete the first floor. Upstairs, you'll find two additional bedrooms each with walk-in closets, a loft, and a full bath. A full basement with 9' ceilings comes with the option to finish, providing even more living space for you and guests. *Square footage is approximate and can vary by plan and options. See Sales Consultant for more details.


    Explore this home

    Explore custom options for this floor plan.


    Community highlights

    Community amenities

    • Conservation Area

    • Wooded Areas

    About Bordeaux Crossings

    Welcome to Bordeaux Crossings, where upscale design meets effortless living—just steps from Michael Angelo’s Winery and minutes from everywhere you want to be. Whether you’re a city renter looking for more space or an empty nester ready to downsize in style, this exclusive Broadview Heights community delivers the best of both worlds: stunning homes with high-end finishes and a carefree lifestyle that takes the work out of homeownership. From sleek townhomes with bold curb appeal to spacious floorplans that flex with your lifestyle, every detail is designed with you in mind. Think gourmet kitchens with quartz counters, optional finished basements with 9' ceilings, private patios or decks, and low- maintenance perks like snow removal and landscaping built right in. With customizable options...

    Welcome to Bordeaux Crossings, where upscale design meets effortless living—just steps from Michael Angelo’s Winery and minutes from everywhere you want to be. Whether you’re a city renter looking for more space or an empty nester ready to downsize in style, this exclusive Broadview Heights community delivers the best of both worlds: stunning homes with high-end finishes and a carefree lifestyle that takes the work out of homeownership. From sleek townhomes with bold curb appeal to spacious floorplans that flex with your lifestyle, every detail is designed with you in mind. Think gourmet kitchens with quartz counters, optional finished basements with 9' ceilings, private patios or decks, and low- maintenance perks like snow removal and landscaping built right in. With customizable options like dual primary suites, home offices, sunrooms, and more, Bordeaux Crossings is more than a new address—it’s a smart next move. Ready to stop renting—or simply stop worrying about home maintenance? Bordeaux Crossings is waiting. Tour a move-in-ready home today or build your dream space for tomorrow. *Limited-time Interest rate is subject to change without notice and is based on 20% down, 30 year fixed, applicable to 2025 quick move-ins only. Financial requirements apply - contact Third Federal Savings & Loans for details. 2025 HBA’S CLEVELAND CHOICE WINNER: CLUSTER COMMUNITY OF THE YEAR! More info about Bordeaux Crossings

    Have questions about the amenities?

    Get more details

    Your free brochure has been sent via email

    Request a tour

    Community location & sales center
    Napa Valley

    Bordeaux Crossings
    Petros Homes
    4602 W Boston Rd, Broadview Heights, OH 44147

    888-332-7732

    Sales Agent

    Mary Spenthoff, Chelsey Wyss

    Hours

    Saturday & Sunday 12:00-5:00, Monday-Wednesday by appointment.


    Neighborhood

    Community map

    Community location & sales center

    888-332-7732

    Please enter a valid location or select an item from the list.
    Driving directions to sales center

    Schools near Bordeaux Crossings

    North Royalton City Schools

    Public Elementary School

    Royal View Elementary School

    Grades 1 to 4

    440-582-9080

    13220 Ridge Rd, N Royalton, OH, 44133


    Class ratio
    1:21

    Enrollment
    481

    Public Elementary-Middle School

    GreatSchools
    rating
    GreatSchools rating: 7 out of 10

    North Royalton Middle School

    Grades 5 to 8

    440-582-9120

    14709 Ridge Rd, N Royalton, OH, 44133


    Class ratio
    1:16

    Enrollment
    1132

    Public High School

    GreatSchools
    rating
    GreatSchools rating: 8 out of 10

    North Royalton High School

    Grades 9 to 12

    440-582-7801

    14713 Ridge Rd, N Royalton, OH, 44133


    Class ratio
    1:18

    Enrollment
    1314

    GreatSchools ratings are provided by GreatSchools.org and are for reference only. Ratings may not be available for all schools. Please verify school assignments and details with the local school district.


    Amenities

    Community & neighborhood

    Local points of interest

    • Michael Angelo’s Winery
    • Seneca Golf Course
    • Briarwood Golf Club
    • Ironwood Golf Course
    • Brecksville Reservation
    • Minutes from I-71, I-77, and the Turnpike
    • Explore nearby dining, shopping, parks and commuter routes
    • ConservationArea
    • WoodedAreas

    Utilities

    • Electric AT&T / DirectTV
    • Electric Cleveland Electric Illuminating Company
    • Electric Cox Communications
    • Gas Dominion East Ohio Gas
    • Water/wastewater Cleveland Water

    Social activities

    • Valor Acres
    • South Park Mall
    • Blossom Music Center

    Health and fitness

    • Broadview Heights Recreation Center
    • Cleveland Clinic Broadview Heights
    • UH Broadview Heights Health Center

    Community services & perks

    • First & Second-Floor Primary Suites, Full & Walk-Out Basements, Upscale Finishes
    • Common area maintenance & repair
    • Weekly grass cutting
    • Lawn fertilization
    • Mulch bed maintenance & annual mulch application?
    • Snow removal including driveways & sidewalks
    • Spring/Fall clean-up
    • Exterior roof, gutters & siding

    Builder details

    Petros Homes

    Petros Homes Logo

    Petros Homes has built and maintained a successful company based upon strong work ethic and commitment for over three decades in the Northeast Ohio area. Sam Petros and partner Gary Naim have grown the company to a top volume producing new home building company that has built quality neighborhoods in seven counties across the state.

    Their dedication and commitment to integrity has earned them a reputation as the premiere local leading industry homebuilder. Petros Homes unique brand has been established by focusing on building innovative designs in highly sought after neighborhoods.

    Every employee at Petros Homes shares a passion for being the best and guides their daily work of building new homes and new client relationships by following uncompromised core values and providing ultimate customer satisfaction.

    In addition, the stellar business relationships that Petros Homes holds with their trade contractors, suppliers, preferred lender and title partners enables the company to sustain their reputation as a leading local home builder. Potential clients wishing to build a new home can be guaranteed the delivery of a finished product of undeniable quality and value.