Acadia Plan
Ready to build
7159 Valderama Court, McKinney TX 75071
Home by M/I Homes
at Aster Park

Last updated 1 day ago
The Price Range displayed reflects the base price of the homes built in this community.
You get to select from the many different types of homes built by this Builder and personalize your New Home with options and upgrades.
3 BR
2 BA
2 GR
1,947 SQ FT

Acadia Elevation A 1/17
Special offers
Explore the latest promotions at Aster Park. Contact M/I Homes to learn more!
Holiday of Homes
Overview
1 Story
1947 Sq Ft
2 Bathrooms
2 Car Garage
3 Bedrooms
Primary Bed Downstairs
Single Family
Acadia Plan Info
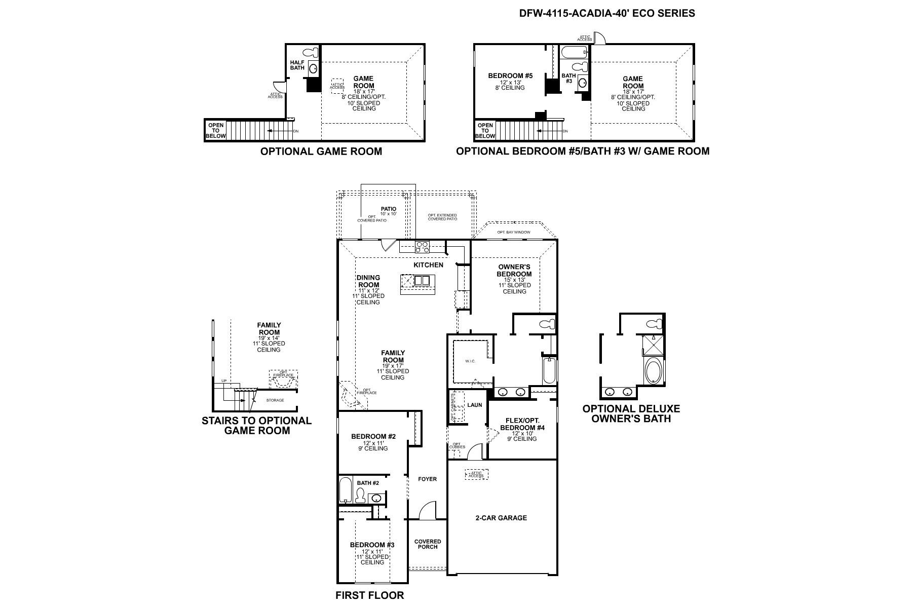
Welcome to the Acadia floorplan. This M/I Home features 3—5 bedrooms, 2—3 bathrooms, and 1,947-2,614 square feet of functional living space. Popular for its flexibility to accommodate a variety of modern living arrangements, the Acadia plan has room for the whole family!
Floor plan center
View floor plan details for this property.
- Floor Plans
- Exterior Images
- Interior Images
- Other Media
Explore custom options for this floor plan.
- Choose Option
- Include Features
Neighborhood
Community location & sales center
7159 Valderama Court
McKinney, TX 75071
7159 Valderama Court
McKinney, TX 75071
From Downtown Dallas: Get on I-35E N Take exit 429B from I-35E N Continue onto Dallas North Tollway N Toll road Continue on S Dallas Pkwy Take W Frontier Pkwy to FM1461 E
Schools near Aster Park
- Prosper Independent School District
Actual schools may vary. Contact the builder for more information.
Amenities
Home details
Ready to build
Build the home of your dreams with the Acadia plan by selecting your favorite options. For the best selection, pick your lot in Aster Park today!
Community & neighborhood
Local points of interest
- Lakewood Community Park
- Universal Kid's Resort
- Historic Downtown McKinney
- PGA Golf Headquarters
- Erwin Park
- Gentle Creek Country Club
- The Star in Frisco
- The Gates of Prosper
- Heard Natural Science Museum & Wildlife Sanctuary
- Historic McKinney Farmers Market at Chestnut Square
Social activities
- Club House
Health and fitness
- Pool
- Trails
Community services & perks
- HOA fees: Unknown, please contact the builder
- Park
Neighborhood amenities
Walmart Supercenter
3.62 miles away
1721 N Custer Rd
Kroger
3.71 miles away
1801 N Lake Forest Dr
Costco Wholesale
4.29 miles away
3650 W University Dr
Kroger Marketplace
4.34 miles away
1250 N Preston Rd
Tom Thumb
4.42 miles away
6800 Virginia Pkwy
Nutri-West of Texas
2.87 miles away
2479 County Road 856
Walmart Bakery
3.62 miles away
1721 N Custer Rd
Donut Station
3.73 miles away
4987 W University Dr
Gentle Creek Golf Club
2.77 miles away
3131 E Prosper Trl
Raising Cane's Chicken Fingers
2.82 miles away
4760 W University Dr
Palios 380 LLC
3.09 miles away
7200 W University Dr
Palio's Pizza Cafe
3.09 miles away
7200 W University Dr
Perta Fresh Mexican Bistro
3.09 miles away
7200 W University Dr
Little Bit of Lagniappe
3.34 miles away
6091 W University Dr
PJ's Coffee
3.34 miles away
6091 W University Dr
Starbucks
3.46 miles away
4261 E University Dr
Sugarboy Donuts
3.46 miles away
1180 N Coit Rd
Starbucks
3.64 miles away
5101 W University Dr
Luxury Couture LLC
3.46 miles away
4261 E University Dr
Claire's Inside Walmart
3.62 miles away
1721 N Custer Rd
Walmart Supercenter
3.62 miles away
1721 N Custer Rd
Fresh Banana Boutique LLC
3.65 miles away
3200 Twin Lakes Dr
Southern Royall Boutique
3.98 miles away
509 Kappa Way
E.J. Wills Gastropub
3.30 miles away
1910 N Stonebridge Dr
Mi Chante Mexican Cuisine
3.49 miles away
1090 N Coit Rd
54th Street Restaurant and Drafthouse
4.36 miles away
3645 W University Dr
Cigar Lounge
4.39 miles away
6840 Virginia Pkwy
Zin Zen Wine Bistro
4.57 miles away
6841 Virginia Pkwy
Please note this information may vary. If you come across anything inaccurate, please contact us.
M/I Homes has been building new homes of outstanding quality and superior design for more than 40 years. Founded in 1976 by Irving and Melvin Schottenstein, and guided by Irving’s drive to always “treat the customer right,” we’ve fulfilled the dreams of more than 150,000 homeowners, and grown to become one of the nation’s leading homebuilders.
Take the next steps toward your new home
Acadia Plan by M/I Homes
saved to favorites!
To see all the homes you’ve saved, visit the My Favorites section of your account.
Discover More Great Communities
Select additional listings for more information
We're preparing your brochure
You're now connected with M/I Homes. We'll send you more info soon.
The brochure will download automatically when ready.
Brochure downloaded successfully
Your brochure has been saved. You're now connected with M/I Homes, and we've emailed you a copy for your convenience.
The brochure will download automatically when ready.
Way to Go!
You’re connected with M/I Homes.
The best way to find out more is to visit the community yourself!