Saratoga
Alpine
8809 Retama Street, Aubrey, TX, 76227
by HistoryMaker Homes
From $479,990 This is the starting price for this plan and is subject to change.
- 5 Beds
- 4 Baths
- 2 Car garage
- 3,308 Sq Ft
Overview
Floor plan features
- 2 Stories
- Primary Bed Downstairs
- Single Family
Floor plan description
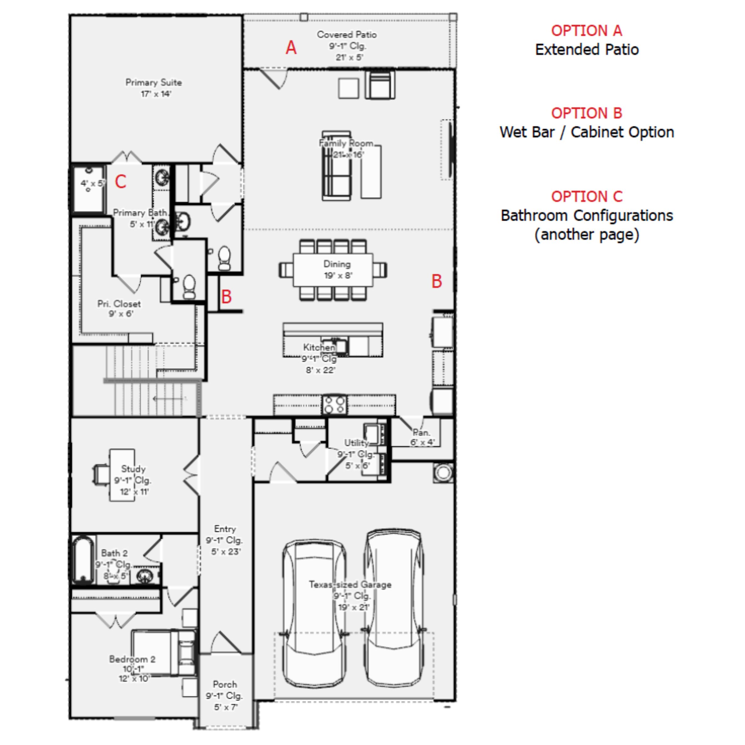
Discover the Alpinea stunning 5-bedroom, 4-bath, 2-story home designed for modern living and unforgettable moments. Entertain in the expansive kitchen and soaring family room with dramatic volume ceilings and a game room open to below. The first floor offers a private primary suite with a huge walk-in closet, a dedicated study, and a guest bedroom for ultimate flexibility. Upstairs, enjoy a large game room, optional media space, and a private en-suite bedroom retreat. Plus, a Texas-sized garage provides room for your Texas sized vehicles. Perfect for hosting, working, and relaxingthis home truly has it all!
Explore this home
Explore custom options for this floor plan.
Community highlights
About Saratoga
Welcome to Saratoga, an enchanting new single-family community nestled in the heart of Aubrey, TX. Situated within Denton County, Saratoga unites the warmth of small-town charm with the conveniences of modern living. This community is conveniently situated near top employers, including UT Southwestern, PGA, Frito Lay, Toyota, Liberty Mutual and JP Morgan Chase. Future residents will enjoy easy access to local grocery stores and retail such as Walmart, ALDI, Academy, Home Depot, Kroger, CVS, and dining options are just a 15-minute away. Discover the allure of Saratoga, a place where tranquil suburban living seamlessly blends with the vibrant urban excitement. Saratoga offers residents the best of both worlds, with easy access to bustling city amenities and the peace of a close-knit communit...
Neighborhood
Community location & sales center
8809 Retama Street Aubrey, TX 76227
8809 Retama Street Aubrey, TX 76227
888-898-1564
Nearby schools
Aubrey Independent School District
Brockett Elementary School
Elementary school. Grades KG to 5.
Public school
Teacher - student ratio: 1:14
Students enrolled: 488
940-668-0036
900 Chestnut St, Aubrey, TX, 76227
Aubrey Middle School
Middle school. Grades 6 to 8.
Public school
Teacher - student ratio: 1:17
Students enrolled: 814
940-668-0200
815 W Sherman Dr, Aubrey, TX, 76227
Aubrey High School
High school. Grades 9 to 12.
Public school
Teacher - student ratio: 1:16
Students enrolled: 923
940-668-3900
510 Spring Hill Rd, Aubrey, TX, 76227
GreatSchools ratings are provided by GreatSchools.org and are for reference only. Ratings may not be available for all schools. Please verify school assignments and details with the local school district.
Amenities
Community & neighborhood
Builder details
HistoryMaker Homes

Whether you’re building or buying a new home, you want to feel confident in the builder you choose. It’s important you know why we started, how we got here, and what keeps us going. Before you invite us to be a part of your journey, let us walk you through ours. In April of 1949, the Fort Worth Star Telegram’s Annual Home Show recognized the Mitchells in a full-page ad that featured Helen Margaret Mitchell and baby Bryan Mitchell in their home. O.N. Mitchell Sr. and Jr.’s Pike View community strayed from the then-standard practice of developing a handful of lots at a time. This Arlington community, comprised of 160 single-family homes, kicked off the beginning of a new building standard: developing full communities. The best, most upgraded home in the neighborhood sold for $9,995. The Texas Association of Home Builders awarded Young American Homes, now known as HistoryMaker Homes, first place in the 1960 Parade of Plans’ category of homes priced $12,000 and under. Lane Wright became the company’s first president outside of the Mitchell family on January 1, 2017. He formerly served as the Chief Operating Officer, playing an integral role in HistoryMaker Homes’ growth. Though his title has changed, his commitment to the company’s core values and passion for excellence has not. Each HistoryMaker home is built to provide the foundation for your most meaningful memories. We maximize functional space and include smart features that live the way you do. With intelligent construction methods, energy efficiency, and integrated home technology, building a HistoryMaker home is simply a smart choice.
Take the next steps toward your new home
This listing's information was verified with the builder for accuracy 1 day ago
Alpine Plan by HistoryMaker Homes
saved to favorites!
To see all the homes you’ve saved, visit the My Favorites section of your account.
Discover More Great Communities
Select additional listings for more information
We're preparing your brochure
You're now connected with HistoryMaker Homes. We'll send you more info soon.
The brochure will download automatically when ready.
Brochure downloaded successfully
Your brochure has been saved. You're now connected with HistoryMaker Homes, and we've emailed you a copy for your convenience.
The brochure will download automatically when ready.
Way to Go!
You’re connected with HistoryMaker Homes.
The best way to find out more is to visit the community yourself!