Barossa Expanded Plan
Ready to build
4602 W Boston Rd, Broadview Heights OH 44147
Home by Petros Homes
The Price Range displayed reflects the base price of the homes built in this community.
You get to select from the many different types of homes built by this Builder and personalize your New Home with options and upgrades.
3 BR
2.5 BA
2 GR
2,099 SQ FT

Barossa Expanded 1/3
Overview
1 Half Bathroom
2 Bathrooms
2 Car Garage
2 Stories
2099 Sq Ft
3 Bedrooms
Basement
Dining Room
Family Room
Loft
Patio
Porch
Primary Bed Upstairs
Townhome
Walk-In Closets
Barossa Expanded Plan Info
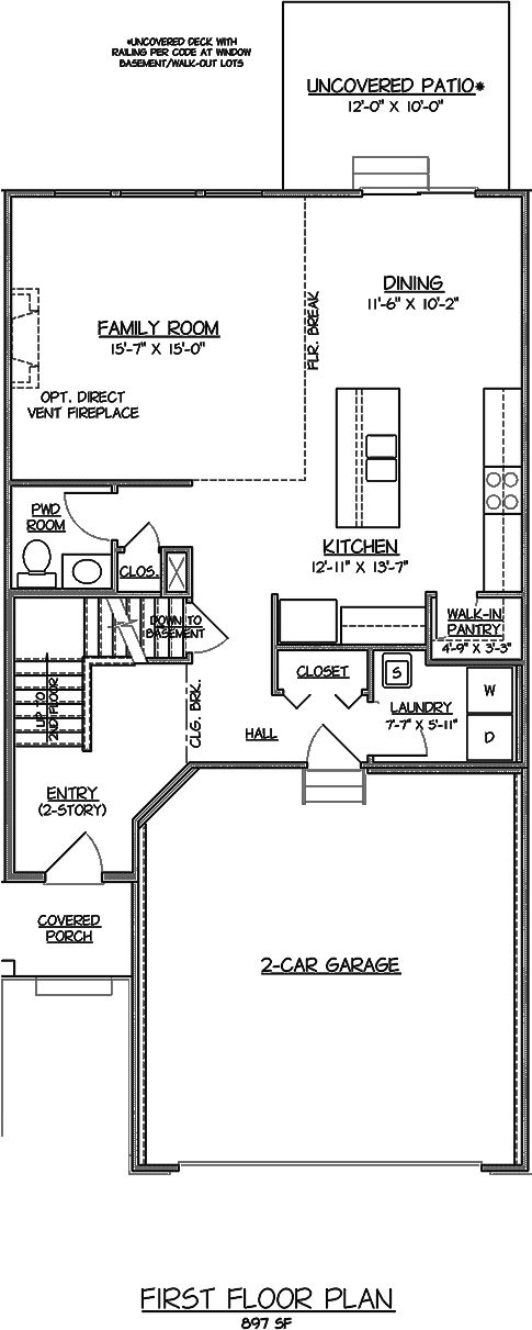
Welcome to the expanded Barossa floorplan at Bordeaux Crossings! Offering 2,099 square feet of well-appointed living space, this 3-bedroom, 2.5-bathroom home includes an attached 2-car garage and thoughtful design touches throughout. The first floor features a welcoming 2-story foyer entry that flows seamlessly into an open-concept layout—ideal for both daily living and entertaining. The kitchen includes an oversized center island, abundant cabinetry, a walk-in pantry, and effortless connection to the dining area and large family room with an optional fireplace. Just off the dining space, a sliding door leads to an uncovered patio, perfect for grilling or relaxing outdoors. A convenient powder room, coat closet, and laundry room are located near the garage entry, creating a functional and stylish everyday drop zone. Upstairs, a versatile loft area with an optional built-in desk overlooks the foyer and adds flex space for a home office, study zone, or cozy lounge. The primary suite features a private sitting area, optional pan ceiling, a large walk-in closet, and an ensuite bath with double vanities and a walk-in shower. Two additional bedrooms, each with their own walk-in closets, share a spacious full bath with a linen closet nearby for extra storage. This plan also includes a full basement with 9’ ceilings and the option to finish for even more entertaining or living space—perfect for a home gym, media room, or guest suite.
Floor plan center
View floor plan details for this property.
- Floor Plans
- Exterior Images
- Interior Images
- Other Media
Neighborhood
Community location & sales center
4602 W Boston Rd
Broadview Heights, OH 44147
4602 W Boston Rd
Broadview Heights, OH 44147
888-332-7732
Located at the corner of Broadview Road and Boston road in Broadview Heights.
Nearby schools
North Royalton City Schools
Elementary school. Grades 1 to 4.
- Public school
- Teacher - student ratio: 1:18
- Students enrolled: 398
4049 Wallings Rd, N Royalton, OH, 44133
440-582-9101
Elementary-Middle school. Grades 5 to 8.
- Public school
- Teacher - student ratio: 1:16
- Students enrolled: 1132
14709 Ridge Rd, N Royalton, OH, 44133
440-582-9120
High school. Grades 9 to 12.
- Public school
- Teacher - student ratio: 1:18
- Students enrolled: 1314
14713 Ridge Rd, N Royalton, OH, 44133
440-582-7801
Actual schools may vary. We recommend verifying with the local school district, the school assignment and enrollment process.
Amenities
Home details
Hot home!
3 BR 2.5 BA 2 GR Brand-New 2-Story Townhome Available for 2025 Move-In! Beautiful 3-bedroom townhome with all bedrooms upstairs, 2-story foyer, full basement, and private patio available for 2025 move-in! Enjoy an open-concept main floor, upscale finishes, and low-maintenance living in a prime location.
Ready to build
Build the home of your dreams with the Barossa Expanded plan by selecting your favorite options. For the best selection, pick your lot in Bordeaux Crossings today!
Community & neighborhood
Local points of interest
- Michael Angelo’s Winery
- Seneca Golf Course
- Briarwood Golf Club
- Ironwood Golf Course
- Brecksville Reservation
- Minutes from I-71, I-77, and the Turnpike
- Explore nearby dining, shopping, parks and commuter routes
- ConservationArea
- WoodedAreas
Utilities
- Electric AT&T / DirectTV
- Electric Cleveland Electric Illuminating Company
- Electric Cox Communications
- Gas Dominion East Ohio Gas
- Water/wastewater Cleveland Water
Social activities
- Valor Acres
- South Park Mall
- Blossom Music Center
Health and fitness
- Broadview Heights Recreation Center
- Cleveland Clinic Broadview Heights
- UH Broadview Heights Health Center
Community services & perks
- HOA Fees: $175/month
- First & Second-Floor Primary Suites, Full & Walk-Out Basements, Upscale Finishes
- Common area maintenance & repair
- Weekly grass cutting
- Lawn fertilization
- Mulch bed maintenance & annual mulch application?
- Snow removal including driveways & sidewalks
- Spring/Fall clean-up
- Exterior roof, gutters & siding
Neighborhood amenities
Giant Eagle
1.54 miles away
4428 Broadview Rd
Home Storage Center
2.29 miles away
6900 Southpointe Pkwy
Slavic Village Market LLC
3.49 miles away
9463 Greystone Pkwy
Giant Eagle
4.60 miles away
4343 E Royalton Rd
Bishops' Storehouse
4.81 miles away
6901 Southpointe Pkwy
Richfield Cafe
2.14 miles away
4174 Wheatley Rd
Above the Barre Nutrition
4.86 miles away
8871 Brecksville Rd
Juice Lab Cleveland
4.87 miles away
8215 Chippewa Rd
Bake Shop in Ghent
6.43 miles away
800 Wye Rd
Tea Cakes
6.65 miles away
9293 Olde 8 Rd
Pierogies of Cleveland
0.73 mile away
4131 W Streetsboro Rd
Love, Yin
0.76 mile away
4183 W Streetsboro Rd
Subway
1.08 miles away
4815 Brecksville Rd
Hunt Brothers Pizza
1.23 miles away
4617 W Streetsboro Rd
Regional Express Inc
1.23 miles away
4615 W Streetsboro Rd
Richfield Cafe
2.14 miles away
4174 Wheatley Rd
Richfield Gourmet Cafe
2.14 miles away
4174 Wheatley Rd
Starbucks
3.63 miles away
2000 Edgerton Rd
Pulp Juice and Smoothie Bar
4.59 miles away
4223 E Royalton Rd
Starbucks
4.60 miles away
4343 E Royalton Rd
Gardener of Bath
3.49 miles away
2368 N Cleveland Massillon Rd
Vertical Runner
4.76 miles away
8929 Brecksville Rd
Apricot Lane Boutique
4.77 miles away
8918 Brecksville Rd
Star Sports
4.98 miles away
7032 Mill Rd
Sangoma's Closet
5.04 miles away
9255 Broadview Rd
Doug Out Pub & Grill
1.27 miles away
4635 W Streetsboro Rd
Teschner's Tavern
1.37 miles away
4252 Broadview Rd
Musketeers Bar & Grill
2.26 miles away
3027 Brecksville Rd
Fisher's Cafe & Pub
4.50 miles away
1607 Main St
The Dark Room
5.20 miles away
1100 W Royalton Rd
Please note this information may vary. If you come across anything inaccurate, please contact us.
Petros Homes has built and maintained a successful company based upon strong work ethic and commitment for over three decades in the Northeast Ohio area. Sam Petros and partner Gary Naim have grown the company to a top volume producing new home building company that has built quality neighborhoods in seven counties across the state.
Their dedication and commitment to integrity has earned them a reputation as the premiere local leading industry homebuilder. Petros Homes unique brand has been established by focusing on building innovative designs in highly sought after neighborhoods.
Every employee at Petros Homes shares a passion for being the best and guides their daily work of building new homes and new client relationships by following uncompromised core values and providing ultimate customer satisfaction.
In addition, the stellar business relationships that Petros Homes holds with their trade contractors, suppliers, preferred lender and title partners enables the company to sustain their reputation as a leading local home builder. Potential clients wishing to build a new home can be guaranteed the delivery of a finished product of undeniable quality and value.
Take the next steps toward your new home
Barossa Expanded Plan by Petros Homes
saved to favorites!
To see all the homes you’ve saved, visit the My Favorites section of your account.
Discover More Great Communities
Select additional listings for more information
We're preparing your brochure
You're now connected with Petros Homes. We'll send you more info soon.
The brochure will download automatically when ready.
Brochure downloaded successfully
Your brochure has been saved. You're now connected with Petros Homes, and we've emailed you a copy for your convenience.
The brochure will download automatically when ready.
Way to Go!
You’re connected with Petros Homes.
The best way to find out more is to visit the community yourself!