Burnaby Plan
Ready to build
6675 13th Ave N Office 2C, St Petersburg FL 33710
Home by Winway Homes

The Price Range displayed reflects the base price of the homes built in this community.
You get to select from the many different types of homes built by this Builder and personalize your New Home with options and upgrades.
3 BR
1.5 BA
2 GR
1,977 SQ FT

Burnaby 1/3
Overview
1 Bathroom
1 Half Bathroom
1977 Sq Ft
2 Car Garage
2 Stories
3 Bedrooms
Dining Room
Family Room
Guest Room
Living Room
Loft
Media Room
Mud Room
Office
Porch
Single Family
Sun Room
Burnaby Plan Info
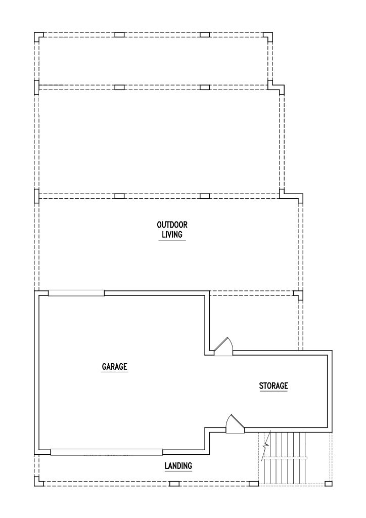
Experience the charm and elegance of this stunning, two-story custom home. Offering 3 bedrooms and 1.5 baths (1 full, 1 half) within a spacious 1,977 sq ft, this residence is designed for modern living. With a two-car garage, you will have plenty of space for storage and parking. This exquisite home seamlessly blends sophisticated design with luxurious comfort and practical functionality. Make it yours today. Disclaimer: Please be aware that the Burnaby Floor Plan is a Build On Your Lot (BOYL) design. The responsibility for ensuring lot suitability lies with the New Home Owner or Realtor. Additional expenses may be incurred for land development.
Floor plan center
View floor plan details for this property.
- Floor Plans
- Exterior Images
- Interior Images
- Other Media
Neighborhood
Sales office location
6675 13th Ave N Office 2C
St Petersburg, FL 33710
6675 13th Ave N Office 2C
St Petersburg, FL 33710
888-945-9219
Nearby schools
Pinellas County School District
Elementary school. Grades PK to 5.
- Public school
- Teacher - student ratio: 1:13
- Students enrolled: 507
1680 74th St N, St Petersburg, FL, 33710
727-893-2187
Middle school. Grades 6 to 8.
- Public school
- Teacher - student ratio: 1:16
- Students enrolled: 678
7855 22nd Ave N, St Petersburg, FL, 33710
727-893-2606
Actual schools may vary. We recommend verifying with the local school district, the school assignment and enrollment process.
Amenities
Home details
Ready to build
Build the home of your dreams with the Burnaby plan by selecting your favorite options. For the best selection, pick your lot in Winway Homes - Custom today!
Community & neighborhood
Community services & perks
- HOA fees: Unknown, please contact the builder
Neighborhood amenities
Publix
0.10 mile away
1075 Pasadena Ave S
Walmart Neighborhood Market
0.18 mile away
6850 Gulfport Blvd S
Winn-Dixie
0.20 mile away
6851 Gulfport Blvd S
Aracle Foods Enterprises LLC
1.93 miles away
5530 1st Ave N
Publix
1.94 miles away
1600 66th St N
South Pasadena Nutrition
0.18 mile away
6886 Gulfport Blvd S
Walmart Bakery
0.18 mile away
6850 Gulfport Blvd S
Bella's Bakes Cakes & Bagels
0.83 mile away
7324 Central Ave
Sunshine Bakeshop
0.83 mile away
7324 Central Ave
Earth Origins Market
0.98 mile away
6651 Central Ave
Azalea International Deli
0.02 mile away
1155 Pasadena Ave S
Horse & Jockey British Pub Inc
0.02 mile away
1155 Pasadena Ave S
Pizza Hut
0.02 mile away
1155 Pasadena Ave S
Wing Street
0.02 mile away
1155 Pasadena Ave S
Dunkin'
0.09 mile away
1200 Pasadena Ave S
Dunkin'
0.09 mile away
1200 Pasadena Ave S
55 Park Donuts LLC
0.51 mile away
506 Pasadena Ave S
Java Gone Green
0.75 mile away
7400 Sun Island Dr S
Starbucks
1.01 miles away
6575 Central Ave
Grove Surf + Coffee
1.51 miles away
7370 Gulf Blvd
VA Boutique LLC
0.00 mile away
1135 Pasadena Ave S
Bealls
0.18 mile away
6864 Gulfport Blvd S
Bowzer Boutique
0.33 mile away
720 Pasadena Ave S
Red Oak Boutique
0.82 mile away
7228 Central Ave
Seyler Angelia
0.85 mile away
7907 Sailboat Key Blvd S
Horse & Jockey British Pub Inc
0.02 mile away
1155 Pasadena Ave S
Pasadena Liquors & Fine Wines
0.07 mile away
1100 Pasadena Ave S
Valenty's Lounge
0.07 mile away
1100 Pasadena Ave S
Pasadena Bar & Grill
0.30 mile away
796 Pasadena Ave S
Vino Simpatico
0.33 mile away
722 Pasadena Ave S
Please note this information may vary. If you come across anything inaccurate, please contact us.
WinWay Homes is a custom Home building company located in Pinellas County FL. WinWay Homes is a custom home builder that specializes in a full service construction experience. We are currently building homes in the Gulfport, Saint Petersburg, Seminole, Largo, Belleair, Safety Harbor, Dunedin and Clearwater. Several years of experience, efficient management, and hard work enables us to build a high-quality home at a reasonable price. If you are looking for a new home builder in the West Coast of Florida area that can turn your dreams into a reality, contact us today. Build on Your Lot Some of our clients need help finding a lot for their new custom home. Others have their location ready to go. We’ll gladly work with you to build on your lot and design a custom floor plan to get you the home you’ve been dreaming about in St. Petersburg, Clearwater, Gulfport, Tampa, and Pinellas County, FL. web-seminole-2 Custom Home Builders Winway Homes is proud to be a custom home builder in the Pinellas County area of Florida. Are you unable to find features and characteristics in available floorplans? The custom home builders at Winway Homes can give you exactly what you need. Home Builder for St. Pete & Pinellas County FL Pinellas County and the surrounding areas are unique and beautiful. Winway Homes is a local home builder. This intimate knowledge of the area gives us the inside information on finding the best location for your new custom home.
Take the next steps toward your new home
Burnaby Plan by Winway Homes
saved to favorites!
To see all the homes you’ve saved, visit the My Favorites section of your account.
Discover More Great Communities
Select additional listings for more information
We're preparing your brochure
You're now connected with Winway Homes. We'll send you more info soon.
The brochure will download automatically when ready.
Brochure downloaded successfully
Your brochure has been saved. You're now connected with Winway Homes, and we've emailed you a copy for your convenience.
The brochure will download automatically when ready.
Way to Go!
You’re connected with Winway Homes.
The best way to find out more is to visit the community yourself!