Captiva Plan
Ready to build
Kingsland GA 31548
Home by Century Communities

Last updated 24 hours ago
The Price Range displayed reflects the base price of the homes built in this community.
You get to select from the many different types of homes built by this Builder and personalize your New Home with options and upgrades.
3 BR
2 BA
2 GR
1,895 SQ FT

Exterior 1/18
Special offers
Explore the latest promotions at The Preserve at Camden Woods. Contact Century Communities to learn more!
Financing Offer
Click to Call Camden Woods
Purple Tag Sales Event 2025 - JAX
Overview
1895 Sq Ft
2 Bathrooms
2 Car Garage
3 Bedrooms
Single Family
Captiva Plan Info
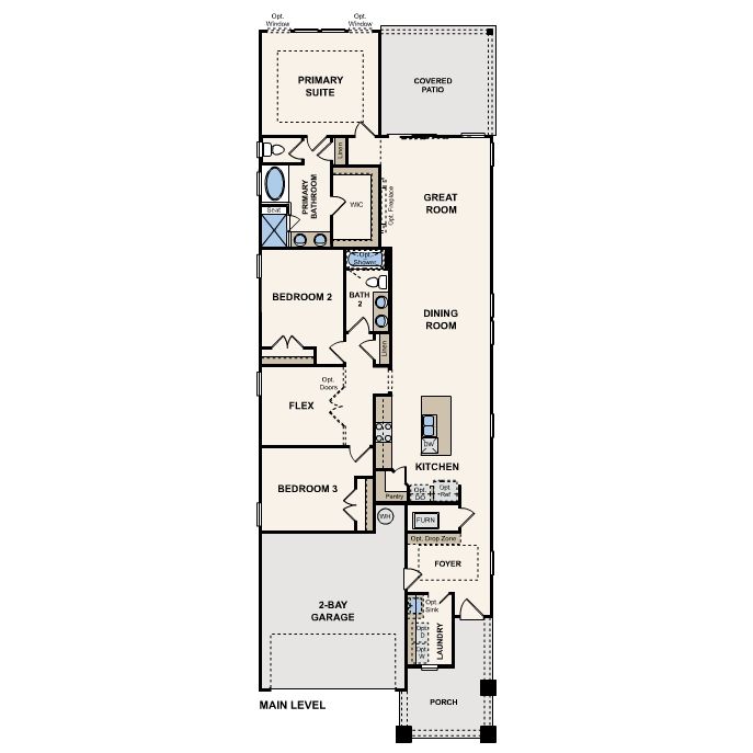
Designed to fit your lifestyle, the single-story Captiva plan welcomes you with a large front porch, ushering you into a spacious foyer with an optional drop zone. Anchoring the home, an open-concept living area includes a kitchen with a center island and corner pantry, overlooking a dining area and a great room—boasting access to a relaxing covered patio. You’ll also appreciate the option to add a great room fireplace. The primary suite dazzles with a roomy walk-in closet and a 5-piece bath—offering the options of a freestanding tub, expanded shower or walk-in shower. Additional highlights include a flex room with the potential to serve as a fourth bedroom.
Floor plan center
View floor plan details for this property.
- Floor Plans
- Exterior Images
- Interior Images
- Other Media
Explore custom options for this floor plan.
- Choose Option
- Include Features
Neighborhood
Community location & sales center
205 Collin Nicholas
Kingsland, GA 31548
205 Collin Nicholas
Kingsland, GA 31548
888-989-5279
Schools near The Preserve at Camden Woods
- Camden County Schools
Actual schools may vary. Contact the builder for more information.
Amenities
Home details
Ready to build
Build the home of your dreams with the Captiva plan by selecting your favorite options. For the best selection, pick your lot in The Preserve at Camden Woods today!
Community & neighborhood
Local points of interest
- Pond
Social activities
- Club House
Health and fitness
- Pool
Community services & perks
- HOA fees: Unknown, please contact the builder
- Playground
Building in Texas, Colorado and Nevada, Century Communities has single family homes, town homes and condominiums to offer the lifestyle needs of everyone. Century Communities has built a name for themselves as a premier builder and trusted neighbor, taking the upmost care in location, design, construction, and the buyers input. Century Communites prides themselves with their quality of building and personal touch. They understand that buying a new home is an emotional, exciting time, so they go the extra mile to provide the expertise and craftsmanship that it takes to build a home worth making memories in.
Take the next steps toward your new home
Captiva Plan by Century Communities
saved to favorites!
To see all the homes you’ve saved, visit the My Favorites section of your account.
Discover More Great Communities
Select additional listings for more information
We're preparing your brochure
You're now connected with Century Communities. We'll send you more info soon.
The brochure will download automatically when ready.
Brochure downloaded successfully
Your brochure has been saved. You're now connected with Century Communities, and we've emailed you a copy for your convenience.
The brochure will download automatically when ready.
Way to Go!
You’re connected with Century Communities.
The best way to find out more is to visit the community yourself!