Skip main navigation
Floor Plan A home design you can choose to customize and build in this community, on your choice of homesite. Ready to build

Carolina

Broadway, NC, 27505

by LGI Homes 4.1 268 TrustBuilder reviews

From $353,900 This is the starting price for this plan and is subject to change.

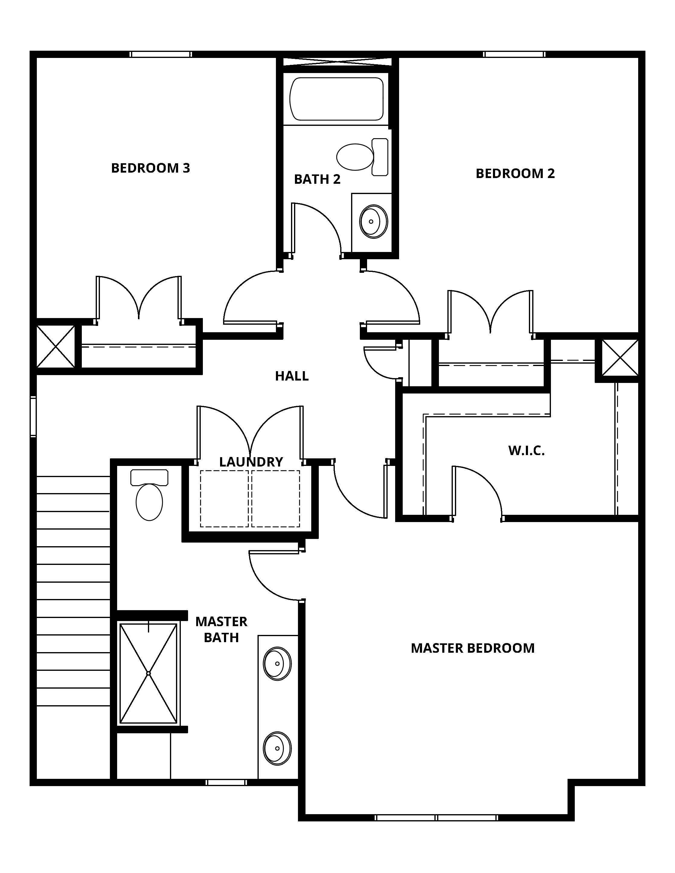
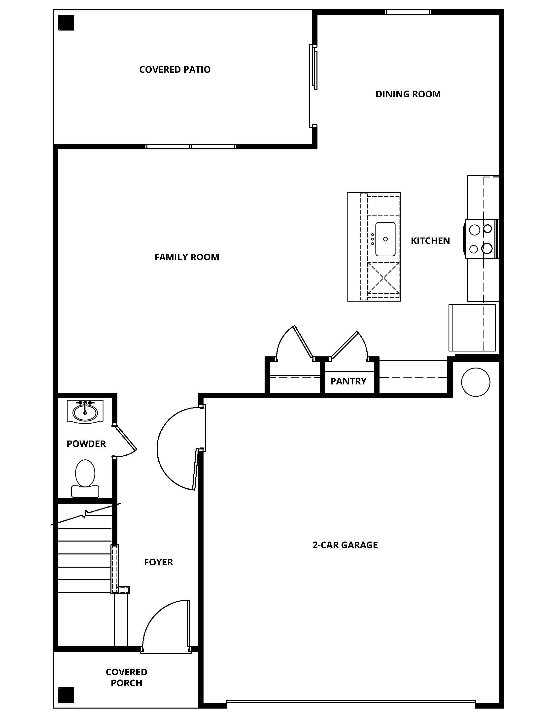
  • 3 Beds
  • 2.5 Baths
  • 2 Car garage
  • 1,700 Sq Ft

    Overview

    Floor plan features

    • 1 Half Bathroom
    • 2 Stories
    • Covered Patio
    • Family Room
    • Guest Room
    • Porch
    • Single Family

    Floor plan description

    The Carolina by LGI Homes is a beautifully crafted one-story home offering 3 bedrooms, 2.5 bathrooms, and a wide-open layout designed for comfort, style, and functionality. Perfect for families of all sizes, this home features a bright and welcoming living space that seamlessly connects the family room, dining area, and chef-ready kitchen, complete with granite countertops, a full suite of Whirlpool® appliances, and a large island for prep and casual seating. The private masters suite offers a quiet retreat with a spacious bedroom, walk-in closet, and a luxurious en-suite bath. Two additional bedrooms provide flexibility for guests, kids, or a home office, while the 2.5-bath layout adds everyday convenience. With modern finishes, abundant storage, and a layout made for real life, the Caro...

    The Carolina by LGI Homes is a beautifully crafted one-story home offering 3 bedrooms, 2.5 bathrooms, and a wide-open layout designed for comfort, style, and functionality. Perfect for families of all sizes, this home features a bright and welcoming living space that seamlessly connects the family room, dining area, and chef-ready kitchen, complete with granite countertops, a full suite of Whirlpool® appliances, and a large island for prep and casual seating. The private masters suite offers a quiet retreat with a spacious bedroom, walk-in closet, and a luxurious en-suite bath. Two additional bedrooms provide flexibility for guests, kids, or a home office, while the 2.5-bath layout adds everyday convenience. With modern finishes, abundant storage, and a layout made for real life, the Carolina is the perfect place to call home.


    Explore this home

    Explore custom options for this floor plan.


    Special offers

    Explore the latest promotions at Brayden Preserve. to learn more!

    Financing

    No Down Payment Required!

    LGI Homes offers brand-new homes for little to NO MONEY DOWN at select communities. Owning a new home has never been this easy or affordable. Visit LGIHomes.com to find you new home today!

    Reduced closing costs

    Builder Paid Closing Costs!

    Moving into your new LGI home just got easier and more affordable! LGI Homes will help pay your closing costs. That means you can own a home with little to no upfront costs. Visit LGIHomes.com to find your new home today!


    Community highlights

    About Brayden Preserve

    Discover Brayden Preserve, a stunning new community in Lillington, offering beautiful single-family homes in a prime location less than an hour from Raleigh. Nestled in a serene setting, this community provides the perfect blend of modern living and natural beauty. Just minutes away, you’ll find outdoor adventures at Raven Rock State Park, where scenic trails and breathtaking views await, as well as family-friendly fun at Broadway Zoological Park. With spacious homes, thoughtful designs, and easy access to major city conveniences, Brayden Preserve is the perfect place to call home. Brayden Preserve is perfectly located for those seeking the charm of small-town living while staying close to major city conveniences. Whether you're commuting to nearby employment centers, enjoying local dinin...

    Discover Brayden Preserve, a stunning new community in Lillington, offering beautiful single-family homes in a prime location less than an hour from Raleigh. Nestled in a serene setting, this community provides the perfect blend of modern living and natural beauty. Just minutes away, you’ll find outdoor adventures at Raven Rock State Park, where scenic trails and breathtaking views await, as well as family-friendly fun at Broadway Zoological Park. With spacious homes, thoughtful designs, and easy access to major city conveniences, Brayden Preserve is the perfect place to call home. Brayden Preserve is perfectly located for those seeking the charm of small-town living while staying close to major city conveniences. Whether you're commuting to nearby employment centers, enjoying local dining and shopping, or exploring outdoor recreation, this community offers the perfect balance of tranquility and accessibility. With quick access to major highways, residents can easily reach Fayetteville, Raleigh, and surrounding areas. At Brayden Preserve, you’ll experience peaceful living in a well-connected location. More info about Brayden Preserve

    Have questions about the amenities?

    Get more details

    Your free brochure has been sent via email

    Request a tour

    Community location & sales center
    Carolina

    Brayden Preserve
    LGI Homes
    Broadway, NC 27505

    888-984-8472

    Hours

    Open 7 Days a Week


    Neighborhood

    Community map

    Community location & sales center

    888-984-8472

    Please enter a valid location or select an item from the list.

    Nearby schools

    Lee County Schools

    Broadway Elementary School

    GreatSchools
    rating
    GreatSchools rating: 3 out of 10

    Elementary school. Grades PK to 5.

    Public school

    Teacher - student ratio: 1:13

    Students enrolled: 483

    919-258-3828

    307 S Main St, Broadway, NC, 27505

    GreatSchools ratings are provided by GreatSchools.org and are for reference only. Ratings may not be available for all schools. Please verify school assignments and details with the local school district.


    Amenities

    Community & neighborhood


    Here at LGI Homes, we know that we're a new home builder that is different. Building homes with great value and great prices in excellent locations, such as Dallas-Fort Worth, Houston, San Antonio, Austin, Phoenix, Tucson, Albuquerque, Tampa, Orlando, Charlotte, Denver and Atlanta. In every one of our new home communities, we have assembled a team of dedicated home buying professionals who are ready and able to walk you through the home buying process, and help you find the perfect new home. Contact us now, and let us start you on your journey toward homeownership. You’ll be glad you did!