Carpenter Plan
Ready to build
2264 Dilip Drive, Manteca CA 95337
Home by Raymus Homes

Last updated 11/10/2025
The Price Range displayed reflects the base price of the homes built in this community.
You get to select from the many different types of homes built by this Builder and personalize your New Home with options and upgrades.
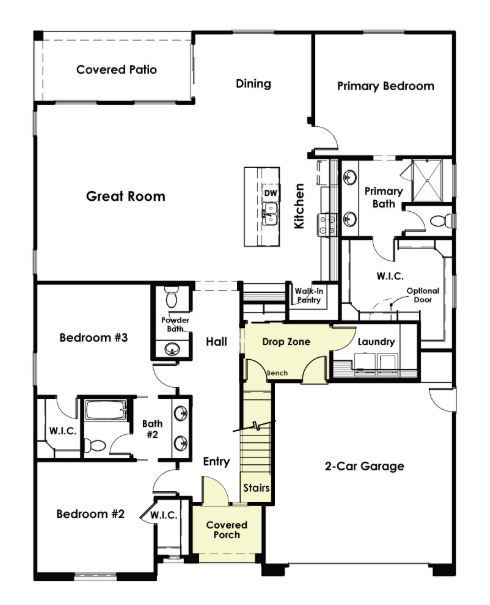
3 BR
2.5 BA
2 GR
2,281 SQ FT

Elevation B 1/59
Special offers
Explore the latest promotions at Artisan at Griffin Park. Contact Raymus Homes to learn more!
Military & First Responder Discount
Overview
1 Half Bathroom
1 Story
2 Bathrooms
2 Car Garage
2281 Sq Ft
3 Bedrooms
Covered Patio
Dining Room
Living Room
Primary Bed Downstairs
Single Family
Sprinkler System
Walk-In Closets
Carpenter Plan Info
Meet the Carpenter - a showstopping single story floor plan! This 3 bedroom, 2.5 bath retreat spans 2,281 sq. ft., with options to extend the floor plan upstairs to add up to 5 bedrooms and an additional 900+ sq. ft.
Generous Covered Patio expands your entertaining options outdoors while the open concept Kitchen-Dining-Great Room area, centered around an oversized Kitchen island, creates a warm, inviting gathering space. Oversized, secondary bedrooms are connected by a Jack-and-Jill bathroom. Spa-like Primary Bath will make you look forward to getting ready in the morning. Plus, the Primary closet - large enough to be another room - will have all your friends jealous! All bedrooms feature walk-in closets with custom closet organization.
Love the Carpenter floor plan but need more bedrooms? Check out the to explore how you can add an optional second story to acheive your lifestyle goals.
Floor plan center
View floor plan details for this property.
- Floor Plans
- Exterior Images
- Interior Images
- Other Media
Explore custom options for this floor plan.
- Choose Option
- Include Features
Neighborhood

Community location & sales center
2264 Dilip Drive
Manteca, CA 95337
2264 Dilip Drive
Manteca, CA 95337
888-393-0316
To Artisan Models Located at 2264 Dilip Drive, Manteca From I-5 North/South: 1. Take the exit for CA-120 East toward Manteca. 2. From CA-120 East, take the exit for South Main Street. 3. At the end of the exit ramp, turn right onto South Main Street. 4. Continue on South Main Street 5. Turn Right onto Lion Dr. 6. Turn Right onto Dilip Dr. 7. Your destination, 2264 Dilip Drive, will be on your right. From HWY 99North/South: 1. Take the exit for CA-120 West toward Manteca. 2. From CA-120 West, take the exit for South Main Street. 3. At the end of the exit ramp, turn Left and head over the Overpass onto South Main Street. 4. Continue on South Main Street. 5. Turn Right onto Lion Dr. 6. Turn Right onto Dilip Dr. 7. Your destination, 2264 Dilip Drive, will be on your right.
Nearby schools
Manteca Unified School District
Elementary-Middle school. Grades KG to 8.
- Public school
- Teacher - student ratio: 1:26
- Students enrolled: 1070
5700 Nile Rd, Manteca, CA, 95337
209-858-7370
Elementary-Middle school. Grades KG to 8.
- Public school
- Teacher - student ratio: 1:26
- Students enrolled: 1000
1600 Pagola Ave, Manteca, CA, 95337
209-858-7390
High school. Grades 9 to 12.
- Public school
- Teacher - student ratio: 1:23
- Students enrolled: 1693
1700 Thomas St, Manteca, CA, 95337
209-858-7410
Actual schools may vary. We recommend verifying with the local school district, the school assignment and enrollment process.
Amenities
Embrace the art of homeownership in a neighborhood tailored to your unique lifestyle needs, where every detail reflects the passion that transforms a house into a home.
Inspired by the meticulous artistry and care synonymous with handcrafted products, Artisan speaks to the essence of today's discerning homebuyer.
Each residence built by our skilled carpenters is a testament to the intersection of modern living and artisanal craftsmanship. Homes range from 1,668 to 3,342 square feet and offer up to six bedrooms. Like clay shaped by a potter, we've refined our home designs with thoughtful details for a finished product of distinguished livability.
With spacious home sites and multiple parks, Artisan offers the perfect backdrop for your next chapter. Centrally located just south of Highway 120 between I-5 and Highway 99, baked within the master-planned community of Griffin Park, Artisan boasts one of the best locations in Manteca - just minutes to Safeway, Costco, JCPenney, Living Spaces, Wal-Mart, AMC, and TONS of other shopping and dining locations!
Our Artisan model homes are open daily! Visit today to learn more about our gorgeous neighborhood, interest rate incentives, and how you can become an exclusive Raymus homeowner...
More info about Artisan at Griffin Park
Home details
Ready to build
Build the home of your dreams with the Carpenter plan by selecting your favorite options. For the best selection, pick your lot in Artisan at Griffin Park today!
Community & neighborhood
Local points of interest
- OutdoorRecreation
Utilities
- Electric PG&E (800) 743-5000
- Gas PG&E (800) 743-5000
- Water/wastewater City of Manteca (209) 456-8730
Social activities
- BBQAreas
- EventLawn
- PicnicArea
Health and fitness
- SportsFields
Community services & perks
- HOA fees: Unknown, please contact the builder
- Playground
- Park
- PlayLawn
Neighborhood amenities
Walmart Supercenter
1.25 miles away
1205 S Main St
Safeway
1.33 miles away
1187 S Main St
Prime Market
2.05 miles away
234 W Yosemite Ave
Petes Market
2.13 miles away
905 W Yosemite Ave
Raj Grocery Store
2.15 miles away
1034 W Yosemite Ave
Walmart Bakery
1.25 miles away
1205 S Main St
Dosanjh Nutrition
1.35 miles away
1165 S Main St
GNC
1.35 miles away
1165 S Main St
Shuga Momma Cakes
1.91 miles away
339 Edward Ave
Matsu Sushi
1.01 miles away
874 Lifestyle St
Curry Pizza House
1.01 miles away
878 Lifestyle St
Vitality Bowls
1.03 miles away
882 Lifestyle St
Red Robin Gourmet Burgers and Brews
1.04 miles away
873 Lifestyle St
Pete's Restaurant & Brewhouse
1.05 miles away
881 Lifestyle St
Vitality Bowls
1.03 miles away
882 Lifestyle St
Starbucks
1.33 miles away
1187 S Main St
Main Street Doughnuts
1.48 miles away
1041 S Main St
Starbucks
2.15 miles away
129 S Union Rd
Banana Republic Factory Store
1.03 miles away
910 Lifestyle St
JCPenney
1.13 miles away
1060 Perimeter Dr
Walmart Supercenter
1.25 miles away
1205 S Main St
Couture Co LLC
1.35 miles away
1169 S Main St
Big 5 Sporting Goods
1.44 miles away
1011 S Main St
Extream Sports Lounge
2.07 miles away
104 Pierce Ave
Nor Cal Taverns Inc
2.09 miles away
133 W Yosemite Ave
The 133 Club
2.09 miles away
133 W Yosemite Ave
The Starlite Room
2.09 miles away
140 El Portal Ave
Chili's
2.22 miles away
2262 Daniels St
Please note this information may vary. If you come across anything inaccurate, please contact us.
Back in the 1940s, when Antone Raymus began building Manteca’s first neighborhoods, he had no idea of the legacy he was creating. Founded on the guiding principles of Exceptional Customer Care, Superior Craftsmanship, and Investing in our Community, Antone’s passion for homebuilding thrived and morphed into what is known today as Raymus Homes.
Being proud locals, Raymus Homes designs with Manteca and its residents in mind. But, homes are only part of the equation. We believe in giving back – investing leadership, time, and financial resources back into the community we call home. Building a beautiful Manteca for generations to come is central to our mission and the core of who we are.
We look forward to welcoming you into our Raymus family of homeowners and invite you to join the ever-growing 5,900+ families who today call Raymus their home.
Raymus Homes isn’t like “other builders.” With us, it's quality over quantity every time. We limit our growth to a select number of homes each year because we choose to – just as we choose to maintain unparalleled excellence in every home we craft. During the design process, you’ll have the opportunity to select from countless options to personalize your home according to your lifestyle goals. Raymus’ strong relationships with its trade contractors – some going as far back as three generations – ensure consistency in craftsmanship and relentless attention to detail.
Always looking forward, we constantly adapt our floor plans to incorporate the latest design trends, build our homes using cutting-edge construction techniques, and offer green solutions to minimize our environmental impact and provide our homeowners with the latest in efficiency and comfort.
Take the next steps toward your new home
Carpenter Plan by Raymus Homes
saved to favorites!
To see all the homes you’ve saved, visit the My Favorites section of your account.
Discover More Great Communities
Select additional listings for more information
We're preparing your brochure
You're now connected with Raymus Homes. We'll send you more info soon.
The brochure will download automatically when ready.
Brochure downloaded successfully
Your brochure has been saved. You're now connected with Raymus Homes, and we've emailed you a copy for your convenience.
The brochure will download automatically when ready.
Way to Go!
You’re connected with Raymus Homes.
The best way to find out more is to visit the community yourself!