Cliffrose Plan
Ready to build
2726 W Brenta Way, Saint George UT 84770
Home by Visionary Homes

The Price Range displayed reflects the base price of the homes built in this community.
You get to select from the many different types of homes built by this Builder and personalize your New Home with options and upgrades.
-
3 BR
-
2 BA
-
2 GR
-
1,584 SQ FT

Exterior 1/50
Overview
-
1 Story
-
1584 Sq Ft
-
2 Bathrooms
-
2 Car Garage
-
3 Bedrooms
-
Primary Bed Downstairs
-
Single Family
Cliffrose Plan Info
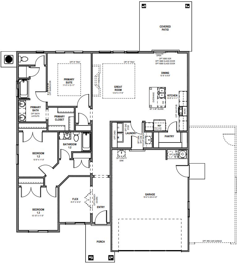
Enjoy living in The Cliffrose floor plan, featuring a stylish interior and exterior. With 3 bedrooms and 2 bathrooms, and showcasing an open-concept layout. A flex room off the entry creates the perfect space for a home office or living room. Discover a spacious pantry in the kitchen and an island for all your cooking needs. Off the great room, the primary suite showcases a luxurious bathroom and walk-in closet, while the other bedrooms and bathroom are down a hallway near the entry. This floorplan includes plenty of windows throughout for natural lighting to view the beautiful landscape in St. George.
Floor plan center
View floor plan details for this property.
- Floor Plans
- Exterior Images
- Interior Images
- Other Media
Neighborhood
Community location & sales center
2726 W Brenta Way
Saint George, UT 84770
2726 W Brenta Way
Saint George, UT 84770
Take I-15 S and W Dixie Dr to 230 S/W Sunbrook DrFollow W Sunbrook Dr until you reach Divario CanyonTurn left towards the Divario entranceTurn Right onto Divario Canyon Drive and continue straight for .5 milesTurn right onto Alcantara Drive, then turn left onto Brenta WayYour destination will be on the left, 2726 W Brenta Way<
Nearby schools
Washington District
High school. Grades 10 to 12.
- Public school
- Teacher - student ratio: 1:21
- Students enrolled: 1293
350 E 700 S, Saint George, UT, 84770
435-673-4682
Actual schools may vary. We recommend verifying with the local school district, the school assignment and enrollment process.
Amenities
Home details
Ready to build
Build the home of your dreams with the Cliffrose plan by selecting your favorite options. For the best selection, pick your lot in Divario - St. George today!
Community & neighborhood
Local points of interest
- Views
Health and fitness
- Golf Course
- Pool
- Trails
Community services & perks
- HOA fees: Unknown, please contact the builder
- Park
Visionary Homes began its journey in 2004 when Jeff Jackson and Justin Cooper merged their respective custom home building companies in Logan, Utah. Recognizing a need for high-quality affordable homes in the market, they formed Visionary Homes. "We are both homegrown," Justin said. "We started small, building one or two homes a year, and have grown it to where we are now."
In 2022, Visionary proudly became the Exclusive Homebuilder of the Utah Jazz. As a locally rooted company, we are honored to hold this title and use the partnership to continue to grow the affordable housing market both within Utah and beyond. With a diverse portfolio, Visionary homes offers a variety of products across many communities throughout Utah, including single-family homes, townhomes, and condos. Our homes are thoughtfully designed with the modern family in mind, catering to first-time buyers, those seeking upgrades, or investors in Real Estate.
At Visionary Homes, our passion is to edify all within our circle of influence. This means that we enhance and improve the lives of our team members, our customers, our industry partners and our communities through every step of the home-building and home-buying process.
We do this by creating thoughtfully designed communities and homes that provide a place for living, a place to experience life's moments, a place to call home. In the words of our President, Barrett Nelson, "At Visionary Homes, our expertise is creating and building a place where memories can be made and moments can happen. Simply put, our homes are built for living."
Take the next steps toward your new home
Cliffrose Plan by Visionary Homes