Placek Place
Congressional
200 Stafford Rd, Stevensville, MD, 21666
by Lacrosse Homes
From $774,900 This is the starting price for this plan and is subject to change.
- 5 Beds
- 2.5 Baths
- 2 Car garage
- 2,445 Sq Ft
Overview
Floor plan features
- 1 Half Bathroom
- 2 Stories
- Single Family
Floor plan description
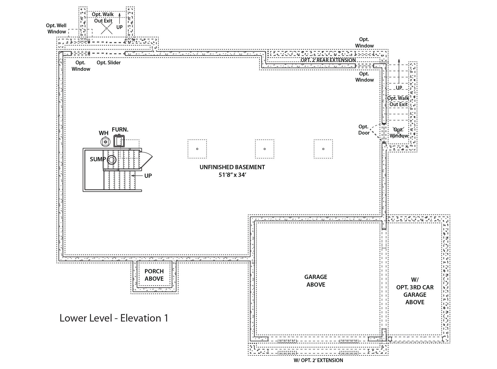
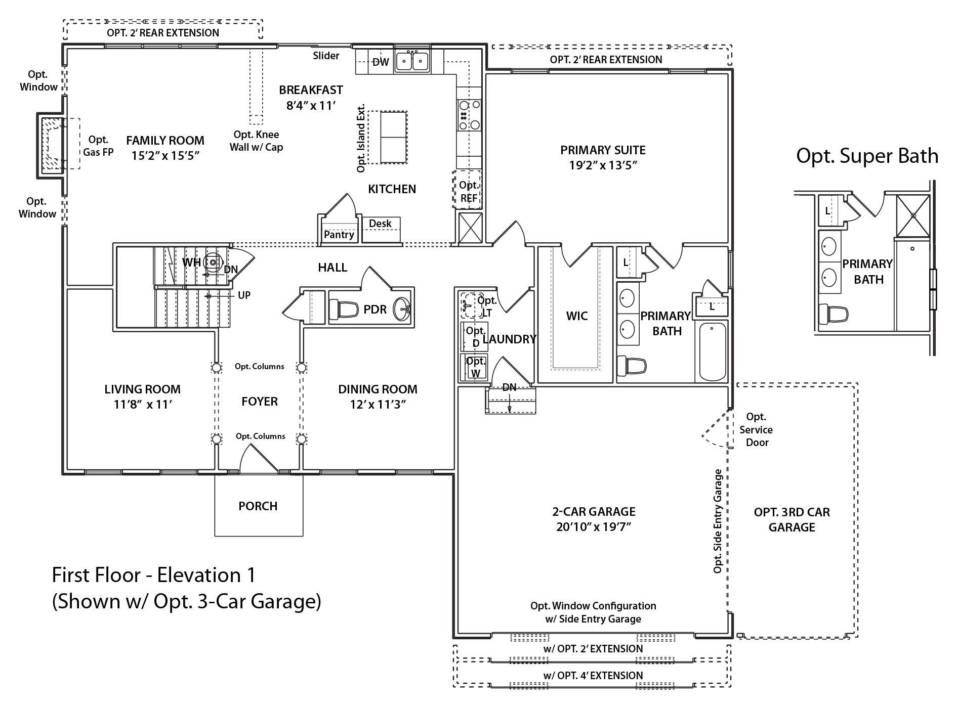
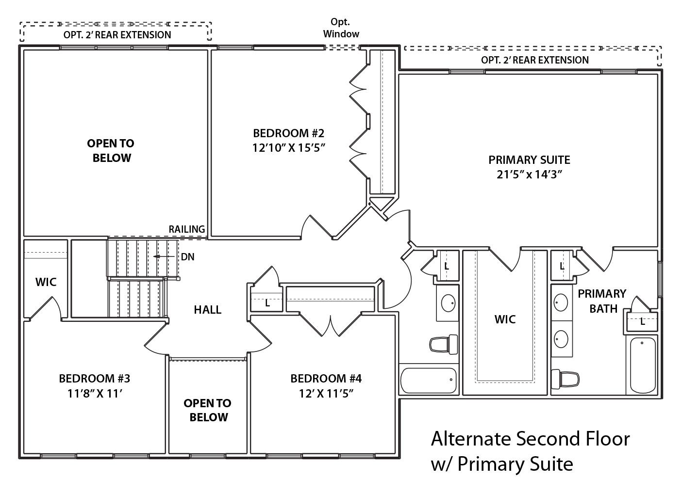
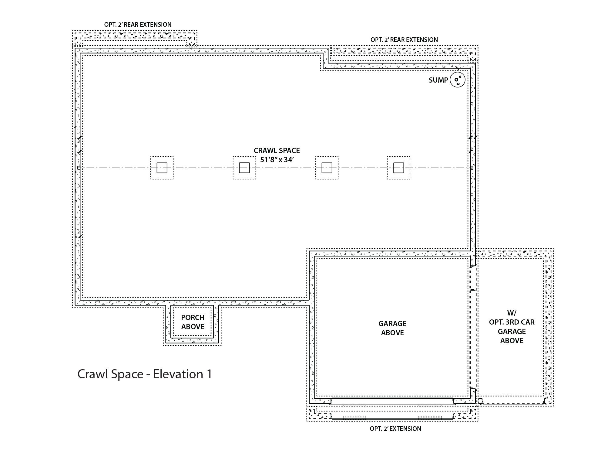
This two-story, two-car garage center hall design is a great multi-generational home option for families looking to accommodate lots of varying needs under one roof! The Congressional features a formal dining room, breakfast area, main level owner's suite and laundry room, 4 bedrooms, 2.5 baths, mud room access from the garage, and much more. This plan offers numerous customization opportunities -- choose to finish dual owner's suites -- one on the main level and a second on the upstairs level, or, create a large rec/play area for kids/family. The options are endless and you'll love designing the home that meets your lifestyle needs! A lower level offers continued customization options including a very spacious recreation room.
Explore this home
Explore custom options for this floor plan.
Special offers
Explore the latest promotions at Placek Place. to learn more!
$5,000 in Closing Help
$5,000 in Closing Help when you use our Preferred Lender
Community highlights
Community amenities
Beach
Fishing
Golf Cart Path/Access
Marina
Outdoor Recreation
Sports Fields
Trails
Views
Wooded Areas
About Placek Place
REFINED EASTERN SHORE LIVING. LIMITED HOMESITES, UNLIMITED SERENITY!
A prime location just minutes from the Chesapeake Bay Bridge, Placek Place is adjacent the popular waterfront community of Bay City located in Stevensville on Maryland’s Eastern Shore. We have a limited offering of 10 1/2 to 1-acre single family homesites. Explore your options today to begin living a Eastern Shore lifestyle! More info about Placek Place
Neighborhood
Community location & sales center
200 Stafford Rd Stevensville, MD 21666
200 Stafford Rd Stevensville, MD 21666
888-904-3113
Nearby schools
Queen Anne's County Public Schools
Matapeake Elementary School
Elementary school. Grades PK to 5.
Public school
Teacher - student ratio: 1:14
Students enrolled: 426
410-643-3105
651 Romancoke Rd, Stevensville, MD, 21666
Matapeake Middle School
Middle school. Grades 6 to 8.
Public school
Teacher - student ratio: 1:14
Students enrolled: 393
410-643-7330
671 Romancoke Rd, Stevensville, MD, 21666
Kent Island High School
High school. Grades 9 to 12.
Public school
Teacher - student ratio: 1:15
Students enrolled: 1164
410-604-2070
900 Love Point Rd, Stevensville, MD, 21666
GreatSchools ratings are provided by GreatSchools.org and are for reference only. Ratings may not be available for all schools. Please verify school assignments and details with the local school district.
Amenities
Community & neighborhood
Local points of interest
- Views
- Marina
- Beach
- Fishing
- GolfCartPath/Access
- OutdoorRecreation
- WoodedAreas
Health and fitness
- Trails
- SportsFields
Builder details
Lacrosse Homes

Lacrosse Homes offers a collection of uniquely designed single family home & multi-family home floor plans in some of the best, new home communities in Maryland. Whether it be an upgrade with a multi-family home in Stevensville, a luxurious, single family home in Easton, or a custom home in Kent Island Estates - Lacrosse Homes has the right new home for you near what you want & need. All of Lacrosse Homes' new home communities are ideally located around Maryland’s Eastern Shore. Each community offers easy access to major commuting routes, top-rated schools with great shopping, dining & entertainment nearby. Discover the right new home for you and your family today by contacting us today!
Take the next steps toward your new home
This listing's information was verified with the builder for accuracy 03/26/2026
Congressional Plan by Lacrosse Homes
saved to favorites!
To see all the homes you’ve saved, visit the My Favorites section of your account.
Discover More Great Communities
Select additional listings for more information
We're preparing your brochure
You're now connected with Lacrosse Homes. We'll send you more info soon.
The brochure will download automatically when ready.
Brochure downloaded successfully
Your brochure has been saved. You're now connected with Lacrosse Homes, and we've emailed you a copy for your convenience.
The brochure will download automatically when ready.
Way to Go!
You’re connected with Lacrosse Homes.
The best way to find out more is to visit the community yourself!