Brookfield
Cooper F
2500 Overlook Drive, Melissa, TX, 75454
by First Texas Homes
From $579,950 This is the starting price for this plan and is subject to change.
Yearly HOA fees: $700
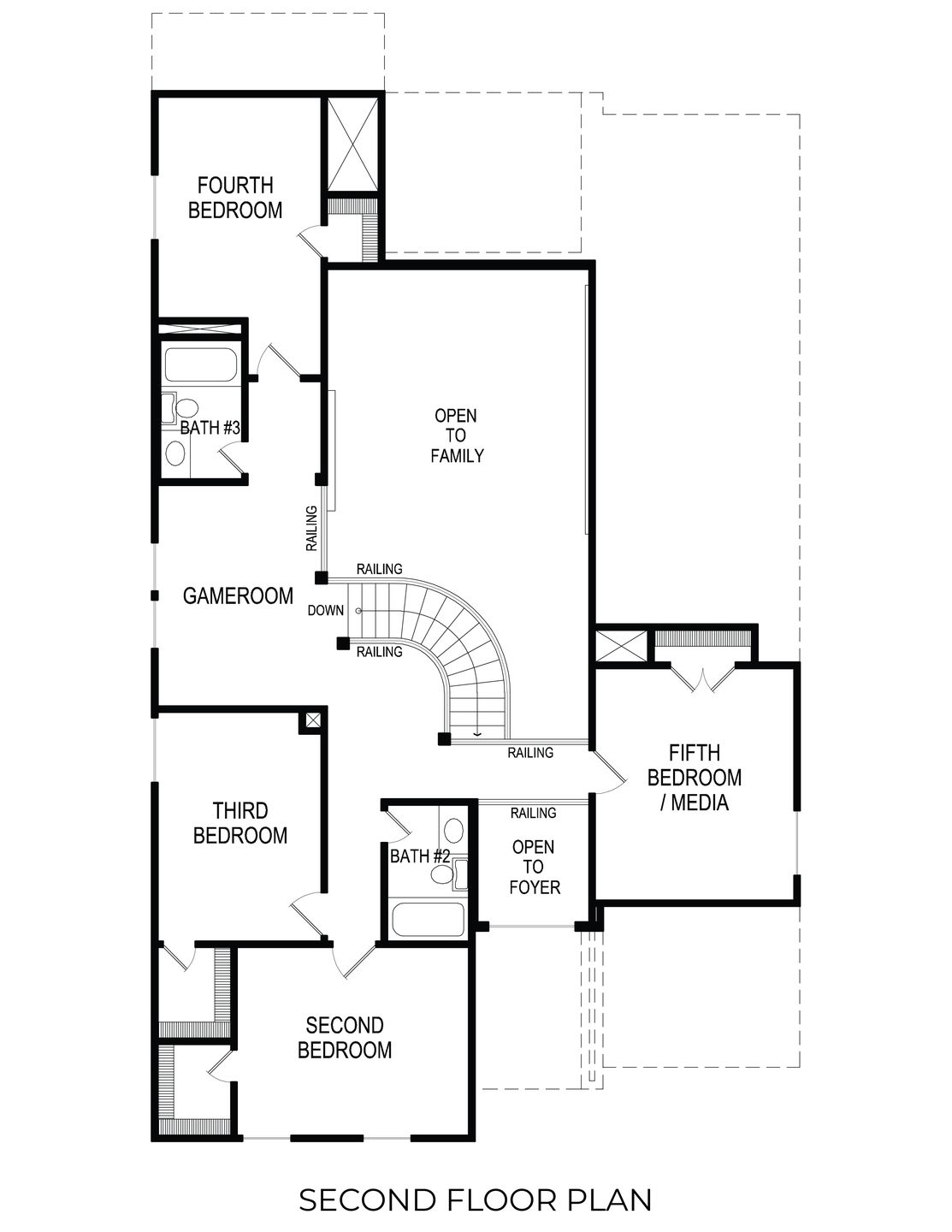
- 5 Beds
- 3.5 Baths
- 2 Car garage
- 3,200 Sq Ft
Overview
Floor plan features
- 1 Half Bathroom
- 2 Stories
- Covered Patio
- Fireplaces
- Play Room
- Primary Bed Downstairs
- Single Family
- Vaulted Ceiling
- Walk-In Closets
Floor plan description
Explore the Cooper F Floor Plan – New Home Design Available in Melissa, TX The Cooper F offers 5 bedrooms, 3 bathrooms, and 3200 sq. ft. of thoughtfully designed living space that adapts to your needs. From everyday routines to memorable moments, this layout is built to support how you live — with comfort, functionality, and style in mind. Features like a private study and convenient powder room, covered patio perfect for outdoor relaxation, upstairs game room and optional media room , create a flexible foundation for personalization and convenience. Whether you're relaxing, hosting, working from home, or simply enjoying daily life, Cooper F provides the right spaces in the right places. Available in select First Texas Homes communities across DFW, this plan can be tailored with a variety ...
Explore this home
Explore custom options for this floor plan.
Community highlights
Community amenities
Basketball
Community Center
Park
Playground
Pool
About Brookfield
Welcome to Brookfield, a beautifully planned master-planned community located in Melissa, TX, where First Texas Homes offers a premier selection of new construction homes. Whether you're looking for a move-in ready home or want to personalize your space from the ground up, our homes are designed with modern features, functional layouts, and the lasting quality you can count on. What makes Brookfield truly special is its location within the top-rated Melissa Independent School District and its close-knit, welcoming atmosphere. This vibrant community is thoughtfully designed to support your lifestyle today - and offer room to grow tomorrow. From open-concept living areas to elegant finishes and energy-efficient options, our homes in Brookfield are crafted for the way you live. Whether you're...
Neighborhood
Community location & sales center
2500 Overlook Drive Melissa, TX 75454
2500 Overlook Drive Melissa, TX 75454
888-985-1892
Head north on Highway 75. Exit right to Sam Rayburn/Highway 121 North. Turn right onto Melissa Road. As you come to Ford Sports Village on the left, turn right onto Brewer Steet. Turn left onto Meadow Park Drive. Turn left onto Fescue at the roundabout and then turn right onto Victory Way or Sunrise Lane to enter the community.
Schools near Brookfield
Melissa Independent School District
Public Elementary School
Sumeer Elementary
Grades KG to 5
214-386-2800
1910 Greer Way, Melissa, TX, 75454
Public Middle School
Melissa Middle School
Grades 7 to 8
972-837-4355
3150 Cardinal Dr, Melissa, TX, 75454
Class ratio
1:15
Enrollment
1232
Public High School
Melissa High School
Grades 9 to 12
972-837-4216
3030 Milrany Ln, Melissa, TX, 75454
Class ratio
1:15
Enrollment
1485
GreatSchools ratings are provided by GreatSchools.org and are for reference only. Ratings may not be available for all schools. Please verify school assignments and details with the local school district.
Amenities
Community & neighborhood
Local points of interest
- Amenity Center
- Pool
- Playground
- Sports Court
Health and fitness
- Pool
- Basketball
Community services & perks
- Playground
- Park
- Community Center
Builder details
First Texas Homes

At First Texas Homes, one of our keys to success is hiring top-quality people whose first priority is the needs of our customers. Our brilliant sales consultants and knowledgeable building managers always strive to provide the highest level of customer service. Founded out of over 45 years of family history in residential building and development, First Texas Homes has been building quality homes in Texas for more than a quarter-century. Our unique approach to homebuilding incorporates in-house architectural planning, with unparalleled design flexibility. We believe that allowing our customers to incorporate their vision, by making changes to our acclaimed floor plans, helps to turn a simple house into a welcoming home.This Unprecedented flexibility, unique to First Texas Homes, ensures that you will receive a truly custom-quality home, as well as the absolute best value for your new-home dollars. With great success in our Texas markets, and an ever-increasing presence in the most sought-after communities, First Texas is sure to be building in a neighborhood you’ll be proud to call ‘home’. As a recognized leader in the industry, First Texas Homes has established a proven track record of putting the needs of our customers first. We take great pride in our unrivaled customer service, and ensure total satisfaction by involving our buyers in every step of the building process. With First Texas Homes, you’ll get everything you’ve been looking for: exceptional quality, energy-saving construction, superior design flexibility, and, most importantly, the absolute best new-home value.
Take the next steps toward your new home
This listing's information was verified with the builder for accuracy 1 day ago
Cooper F Plan by First Texas Homes
saved to favorites!
To see all the homes you’ve saved, visit the My Favorites section of your account.
Discover More Great Communities
Select additional listings for more information
We're preparing your brochure
You're now connected with First Texas Homes. We'll send you more info soon.
The brochure will download automatically when ready.
Brochure downloaded successfully
Your brochure has been saved. You're now connected with First Texas Homes, and we've emailed you a copy for your convenience.
The brochure will download automatically when ready.
Way to Go!
You’re connected with First Texas Homes.
The best way to find out more is to visit the community yourself!