Coral Plan
Ready to build
7390 S Gray Jay Dr, Vail AZ 85641
Home by Meritage Homes
Last updated 22 hours ago
The Price Range displayed reflects the base price of the homes built in this community.
You get to select from the many different types of homes built by this Builder and personalize your New Home with options and upgrades.
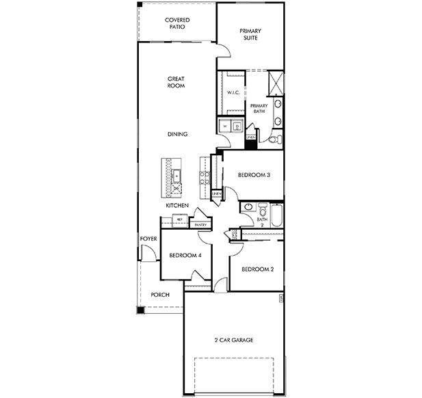
4 BR
2 BA
2 GR
1,602 SQ FT

Plan Diagram 1/1
Overview
1 Story
Green Construction
Primary Bed Downstairs
Single Family
Coral Plan Info
The Coral floorplan in Tucson, Arizona is a single-story home with a covered patio just off the great room. The primary suite location provides ultimate quiet and privacy.
Floor plan center
View floor plan details for this property.
- Floor Plans
- Exterior Images
- Interior Images
- Other Media
Neighborhood
Community location & sales center
7390 S Gray Jay Dr
Vail, AZ 85641
7390 S Gray Jay Dr
Vail, AZ 85641
888-890-4970
From the I-10 heading east, take exit 257 toward Houghton Rd. Turn left onto Houghton Rd and continue for 4 mi. Turn right onto Valencia Rd. In 2.6 mi, Valencia Rd. turns into Old Spanish Trail. Turn right onto S Monument View Wy.
Schools near Rincon Crest at Rocking K
- Vail Unified District
Actual schools may vary. Contact the builder for more information.
Amenities
Home details
Green program
Setting the standard for Energy Efficiency
Ready to build
Build the home of your dreams with the Coral plan by selecting your favorite options. For the best selection, pick your lot in Rincon Crest at Rocking K today!
Community & neighborhood
Local points of interest
- Rancho Rustico
- Saguaro National Park
- Davis-Monthan Air Force Base
- Reid Park Zoo
- Pima Air and Space Museum
- Walmart
- U of A's Arizona Stadium
Open the door to Life. Built. Better.® with an experienced homebuilder known for quality construction, designer-curated interiors, award-winning energy efficiency and a simplified buying process. Since 1985, Meritage Homes® has delivered more than 180,000 homes across Arizona, California, Colorado, Utah, Texas, Florida, Georgia, North Carolina, South Carolina and Tennessee. Take the next step toward your dream home and discover the Meritage difference.
Take the next steps toward your new home
Coral Plan by Meritage Homes
saved to favorites!
To see all the homes you’ve saved, visit the My Favorites section of your account.
Discover More Great Communities
Select additional listings for more information
We're preparing your brochure
You're now connected with Meritage Homes. We'll send you more info soon.
The brochure will download automatically when ready.
Brochure downloaded successfully
Your brochure has been saved. You're now connected with Meritage Homes, and we've emailed you a copy for your convenience.
The brochure will download automatically when ready.
Way to Go!
You’re connected with Meritage Homes.
The best way to find out more is to visit the community yourself!