Angel Hill
Creighton Farmhouse
1070 S Angel Street, Layton, UT, 84041
by Ivory Homes
From $1,095,000 This is the starting price for this plan and is subject to change.
- 3 Beds
- 2.5 Baths
- 3 Car garage
- 2,640 Sq Ft
Overview
Floor plan features
- 1 Half Bathroom
- Single Family
Floor plan description
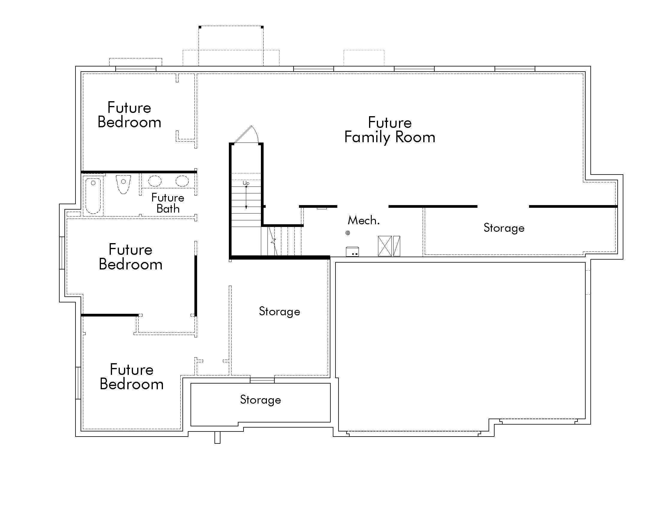
Walk into our Creighton rambler and immediately you'll feel at home. Its bright and open floor plan features vaulted ceilings and lots of great space for entertaining, including a formal living room and spacious family room. The kitchen is the perfect place to create not only meals, but memories as your family cooks together and enjoys the oversized island, wrap-around countertops and corner pantry. An inviting owner's suite includes a unique coffered ceiling and a grand bath with a garden tub, separate shower, double sinks and walk-in closet. Two additional bedrooms share a full bath. But wait, need a little extra space? Don't forget the upstairs bonus room!
Explore this home
Explore custom options for this floor plan.
Community highlights
About Angel Hill
Tucked just off Angel Street, Angel Hill is a quiet new community in one of Layton’s most sought-after areas. With large 1/3 to 1/2 acre lots, there’s plenty of room to build the luxury home you’ve always wanted. The neighborhood features a private street, mature trees, and a peaceful setting—perfect for those looking for space, privacy, and a beautiful place to call home. Welcome to Angel Hill in Layton- where spacious homes meet peaceful living and timeless charm. ... More info about Angel Hill
Neighborhood
Community location & sales center
1070 S Angel Street Layton, UT 84041
1070 S Angel Street Layton, UT 84041
888-249-5908
From I-15: Take the Layton Parkway exit in Layton and head west onto Layton Parkway. Continue to the intersection at Angel St and then turn left onto Angel St. In a quarter mile you will find Angel Hills on the right-hand side. ...
Nearby schools
Davis School District
Shoreline Junior High
Middle school. Grades 6 to 8.
Public school
Teacher - student ratio: 1:26
Students enrolled: 1187
801-402-7700
1150 South Westside Drive, Layton, UT, 84041
GreatSchools ratings are provided by GreatSchools.org and are for reference only. Ratings may not be available for all schools. Please verify school assignments and details with the local school district.
Amenities
Community & neighborhood
Builder details
Ivory Homes
Welcome to Ivory Homes, Utah's Number One Homebuilder® for 34 years. Our architects and designers bring decades of experience to every home plan we offer. As ProBuilder Magazine's National Homebuilder of the Year, know you're in good hands with a locally owned and operated company that understands Utah's rich landscape and climate. We care about your home today and its value tomorrow!
What makes a home, a home? It’s a place where you can relax. Somewhere you can plan for the future as you build your legacy. A place that will keep your loved ones warm in the winter and cool in the hot summer. Where memories will be made as well as kept as the years go by. At Ivory Homes® we know what makes a home great, and we are honored to be Utah’s most successful homebuilding company.
This year, we are celebrating 34 years on top with the completion of 20,000 new homes and counting. This is experience, design and quality you can count on when purchasing a new home with Ivory Homes®.
It’s been quite a journey getting to 34 years as Utah’s Number One Homebuilder®. As our CEO Clark Ivory says, “Successful companies always change but their principles never do”. This is the driving philosophy behind Ivory Homes. Ivory’s leadership understands the need for change and innovation without losing focus on core values.
We go beyond homebuilding to build communities and new homes that will last. Each year we set our sights higher. As we celebrate 34 fantastic years as being Utah’s Number One Homebuilder® we know we won’t be stopping there.
Take the next steps toward your new home
This listing's information was verified with the builder for accuracy 4 days ago
Creighton Farmhouse Plan by Ivory Homes
saved to favorites!
To see all the homes you’ve saved, visit the My Favorites section of your account.
Discover More Great Communities
Select additional listings for more information
We're preparing your brochure
You're now connected with Ivory Homes. We'll send you more info soon.
The brochure will download automatically when ready.
Brochure downloaded successfully
Your brochure has been saved. You're now connected with Ivory Homes, and we've emailed you a copy for your convenience.
The brochure will download automatically when ready.
Way to Go!
You’re connected with Ivory Homes.
The best way to find out more is to visit the community yourself!