Dali Plan
Ready to build
246 E 8000 S, Midvale UT 84070
Home by Garbett Homes
at The Mill

The Price Range displayed reflects the base price of the homes built in this community.
You get to select from the many different types of homes built by this Builder and personalize your New Home with options and upgrades.
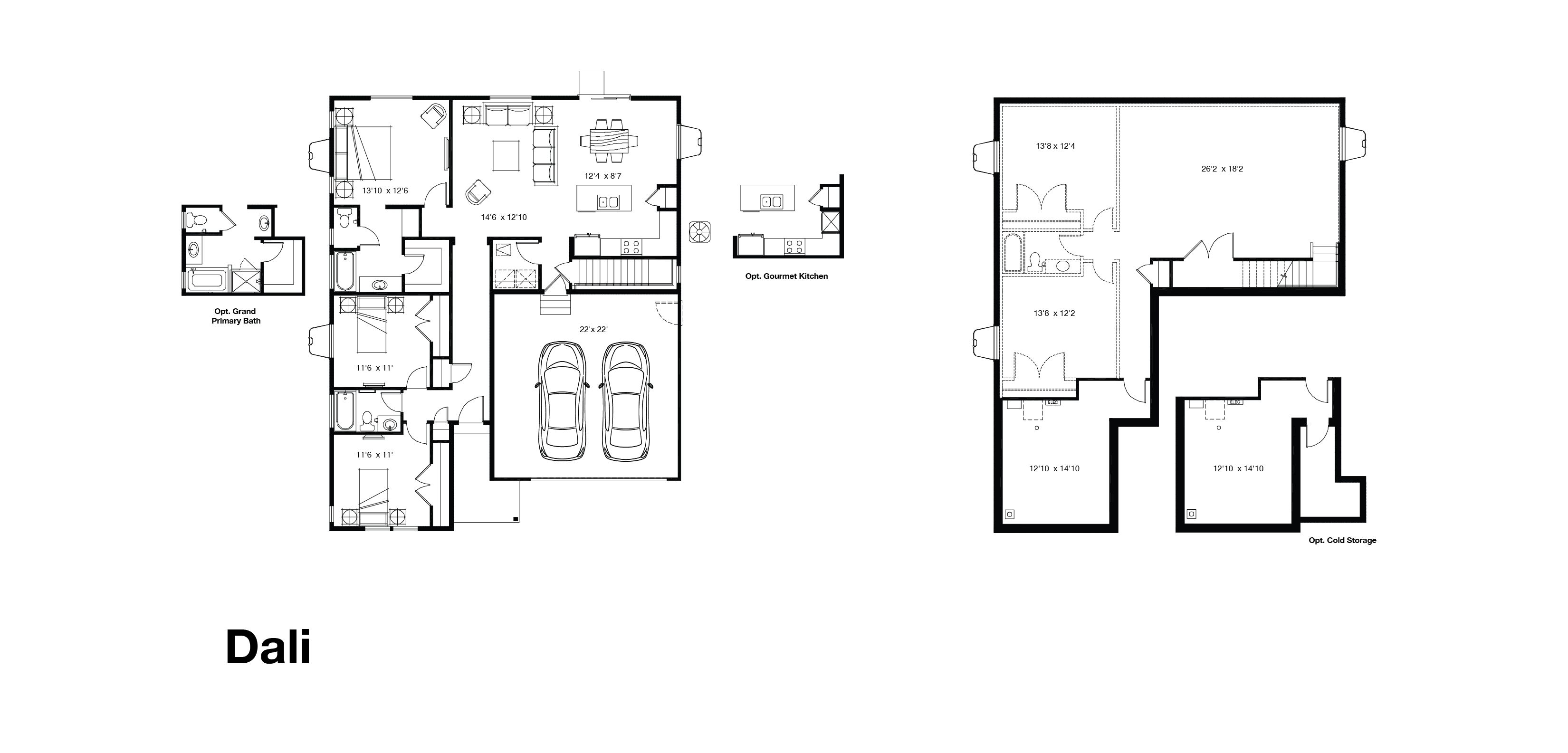
3 BR
2 BA
2 GR
1,450 SQ FT

Dali 1/21
Special offers
Explore the latest promotions at The Mill. Contact Garbett Homes to learn more!
4.750% (5.500% APR)- Employee Pricing Towards Rate Buydown
Overview
1 Story
1450 Sq Ft
2 Bathrooms
2 Car Garage
3 Bedrooms
Primary Bed Downstairs
Single Family
Walk-In Closets
Dali Plan Info
Curb appeal and an inviting covered entry draw you into this well-appointed rambler. Upon entering, secondary bedrooms and a full guest bath start this home off right. Pulling you in further with ample light and open space, find the welcoming great room with adjoining kitchen, well suited for entertaining. Off the great room you’ll discover the private master suite with a spacious walk-in closet and secluded bathroom. A convenient, but out of the way, garage entry and laundry room complete this modern yet classic home.
Floor plan center
View floor plan details for this property.
- Floor Plans
- Exterior Images
- Interior Images
- Other Media
Explore custom options for this floor plan.
- Choose Option
- Include Features
Neighborhood
Community location & sales center
246 E 8000 S
Midvale, UT 84070
246 E 8000 S
Midvale, UT 84070
Located along 8000 S/Wasatch Ave, approximately two blocks east of State Street
Nearby schools
Canyons School District
Elementary school. Grades KG to 5.
- Public school
- Teacher - student ratio: 1:20
- Students enrolled: 722
7830 S Chapel St, Midvale, UT, 84047
801-826-8725
Middle school. Grades 6 to 8.
- Public school
- Teacher - student ratio: 1:18
- Students enrolled: 907
7852 S Pioneer St, Sandy, UT, 84070
801-826-7300
High school. Grades 9 to 12.
- Public school
- Teacher - student ratio: 1:23
- Students enrolled: 2296
7350 S 900 E, Midvale, UT, 84047
801-826-6000
Actual schools may vary. We recommend verifying with the local school district, the school assignment and enrollment process.
Amenities
-Located along 8000 S/Wasatch Ave, minutes away from Union Park
-Efficiency + by Garbett Homes for more efficient, low cost, comfortable living
-Total of 72 single-family homesites, near the Midvale/Sandy boarder
-2 rambler and 3 two-story homes plans, with 3-7 bedrooms and total square feet from approximately 2,598-3,319
-All new, modern elevations of our most popular line-up of home plans on 3,700+ sq. ft. lots
-Convenient access to shopping, dining and entertainment at this ideally situated Midvale community.
More info about The Mill
Home details
Green program
Better Home. Better Air. Better Life.
Ready to build
Build the home of your dreams with the Dali plan by selecting your favorite options. For the best selection, pick your lot in The Mill today!
Community & neighborhood
Local points of interest
- Convenient access to shopping, dining and entertainment at this ideally situated Midvale community.
- Fashion Place Mall
- Gardner Village
- The Shops at South Town
- Midvale Plaza
- Alta View Hospital
- Highland Ridge Hospital
- Fashion Place Mall
- Harmon's Grocery 7th Street
- Midvale City Park
- Copperview Recreation Center
- Gardner Village Indoor Soccer Arena
- Union Park
- Post Office
- Unified Fire Authority 125
- TRAX Station
- Library
- Unified Police Dept. Midvale
- Rio Tinto Stadium
- Jordan Commons
- South Towne Exposition Center
- Midvale Main Street Theatre
- U of U Health Greenwood
Community services & perks
- HOA fees: Unknown, please contact the builder
- Park
Neighborhood amenities
Ocean Mart
0.91 mile away
115 W 9000 S
Market
1.02 miles away
9160 S 300 W
Cash N Carry
1.42 miles away
8750 S 700 E
Walmart Supercenter
1.59 miles away
9151 S Quarry Bend Dr
Costco Wholesale
1.74 miles away
11100 S Auto Mall Dr
Buono Bakery
0.75 mile away
662 E Union Sq
Nothing Bundt Cakes
0.88 mile away
10389 S State St
Lone Pine Bakery
1.01 miles away
834 E 9400 S
The Vitamin Shoppe
1.04 miles away
10515 S State St
Einstein Bros Bagels
1.14 miles away
72 E 10600 S
Mulan Chinese Restaurant
0.21 mile away
9651 S State St
Tropical Smoothie Cafe
0.21 mile away
9645 S State St
Crisp & Green
0.25 mile away
9710 S State St
Zimbu Himalayan Bistro
0.25 mile away
9710 S State St
Tropical Smoothie Cafe
0.21 mile away
9645 S State St
Beans & Brews
0.25 mile away
9680 S State St
Starbucks
0.64 mile away
10130 S State St
El Barril Sandwich & Crepes
0.74 mile away
9460 S Union Sq
Battle Grounds Sandy
0.74 mile away
9860 S 700 E
Target
0.64 mile away
10130 S State St
Marshalls
0.73 mile away
10180 S State St
Old Navy
0.73 mile away
10210 S State St
Foot Solutions
0.79 mile away
9445 S Union Sq
H Bar
0.63 mile away
9685 S Monroe St
Chili's
0.94 mile away
10430 S State St
Bout Time Pub
1.20 miles away
31 W 10600 S
Sunday's Best
1.22 miles away
10672 S State St
Buffalo Wild Wings
1.94 miles away
11266 S State St
Please note this information may vary. If you come across anything inaccurate, please contact us.
Over the last 35 years Garbett Homes has built a legacy of modern, beautiful, award-winning homes. With a focus on giving each homebuyer the most innovative homes the state of Utah has to offer. From 1988 onwards, this family-owned company has embodied the values of Integrity, Social Responsibility, Quality and Continuous Innovation.
Garbett Homes is currently led by President and CEO Bryson C. Garbett. Who chose to continue his family’s legacy while studying to obtain his MD. The rigors and challenges of medical school shaped Bryson into the leader he is today. Granting him not only the discipline and work ethic needed to lead a company but the vision to allow Garbett Homes to continue to be the state’s leader in energy efficient homebuilding.
The next steps in that journey include the transition to all-electric homes, eliminating the challenges presented by natural gas. Continued advancements in water conservation with grassless landscaped yards, and eventually Net Zero Homes. All of these elements combine to make Garbett Homes the forward-thinking homebuilder we are known for.
Take the next steps toward your new home
Dali Plan by Garbett Homes
saved to favorites!
To see all the homes you’ve saved, visit the My Favorites section of your account.
Discover More Great Communities
Select additional listings for more information
We're preparing your brochure
You're now connected with Garbett Homes. We'll send you more info soon.
The brochure will download automatically when ready.
Brochure downloaded successfully
Your brochure has been saved. You're now connected with Garbett Homes, and we've emailed you a copy for your convenience.
The brochure will download automatically when ready.
Way to Go!
You’re connected with Garbett Homes.
The best way to find out more is to visit the community yourself!