Elysium Plan
Ready to build
1200 Royal Tesla Ct, Henderson NV 89012
Home by Livv Homes
at Neo

Last updated 11/13/2025
The Price Range displayed reflects the base price of the homes built in this community.
You get to select from the many different types of homes built by this Builder and personalize your New Home with options and upgrades.
4 BR
4 BA
4 GR
6,635 SQ FT

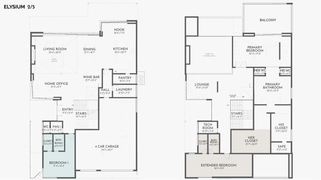
Elysium 1/58
Overview
2 Stories
4 Bathrooms
4 Bedrooms
4 Car Garage
6635 Sq Ft
Dining Room
Fireplaces
Living Room
Multi Family
Office
Primary Bed Upstairs
Walk-In Closets
Elysium Plan Info
Big on space and character, this 6,635 SF floor plan is for those who clamor for the superlative in all. Exquisite style meets superior mass in a design that is easily adapted to fit your preferences. A 4-car garage, gym, office, media room – the possibilities are endless.
Floor plan center
View floor plan details for this property.
- Floor Plans
- Exterior Images
- Interior Images
- Other Media
Neighborhood

Community location & sales center
1200 Royal Tesla Ct
Henderson, NV 89012
1200 Royal Tesla Ct
Henderson, NV 89012
888-774-2521
From the 215 E, exit Stephanie St and turn right. Turn left on Horizon Ridge Pkwy, then turn right on Viento Puntero and follow it to the community gate on the right. (Community Gate is currently under construction). Contact your Livv advisor for more information and access.
Schools near Neo
- Clark County School District
Actual schools may vary. Contact the builder for more information.
Amenities
Home details
Ready to build
Build the home of your dreams with the Elysium plan by selecting your favorite options. For the best selection, pick your lot in Neo today!
Community & neighborhood
Local points of interest
- Hillside with Strip Views
- Las Vegas Strip
- Lake Mead and its countless boating facilities are just a short 20m drive away.
- The ski and snowboarding slopes of Mount Charleston can be reached in under an hour.
- Views
- MountainViews
Utilities
- Electric NV Energy (702) 402-5555
- Gas Southwest Gas (877) 860-6020
- Water/wastewater City of Henderson Utility Service (Water & Waste) (702) 267-5900
Community services & perks
- HOA Fees: $270/month - $3,240/year
- Pool and Landscape
- DogPark
At Livv, we are more than a home builder—we are innovators dedicated to creating intelligent, sustainable, and luxurious living experiences. Our homes are designed to be net-zero ready, producing as much or more energy than they consume through renewable systems and advanced energy storage. With communities like Neo in Las Vegas, we are shaping eco-friendly, guard-gated neighborhoods that integrate smart technologies tailored to the needs of modern living. Every Livv home features an “intelligent nervous system” that learns from daily patterns, automatically optimizing lighting, temperature, and energy flow for comfort and efficiency. From contemporary single-story models like Velour to expansive two-story designs such as Elysium and Joelene, we provide customizable options that reflect diverse lifestyles and preferences. In all we do, we are redefining luxury homebuilding by merging sustainability, cutting-edge technology, and architectural excellence into a seamless living experience.
Take the next steps toward your new home
Elysium Plan by Livv Homes
saved to favorites!
To see all the homes you’ve saved, visit the My Favorites section of your account.
Discover More Great Communities
Select additional listings for more information
We're preparing your brochure
You're now connected with Livv Homes. We'll send you more info soon.
The brochure will download automatically when ready.
Brochure downloaded successfully
Your brochure has been saved. You're now connected with Livv Homes, and we've emailed you a copy for your convenience.
The brochure will download automatically when ready.
Way to Go!
You’re connected with Livv Homes.
The best way to find out more is to visit the community yourself!