Fusion Plan 5 Plan
Ready to build
27177 Mission Blvd, Hayward CA 94541
Home by Homes Built For America
at Fusion
The Price Range displayed reflects the base price of the homes built in this community.
You get to select from the many different types of homes built by this Builder and personalize your New Home with options and upgrades.
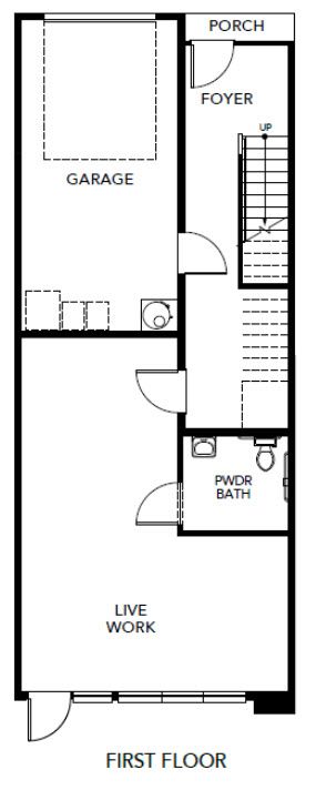
3 BR
2.5 BA
1 GR
2,280 SQ FT

Interior 1/6
Overview
1 Car Garage
1 Half Bathroom
2 Bathrooms
2280 Sq Ft
3 Bedrooms
3 Stories
Deck
Family Room
Porch
Primary Bed Upstairs
Townhome
Walk-In Closets
Fusion Plan 5 Plan Info
Fusion Plan 5 (2280 sq. ft.) is a townhome with 3 bedrooms, 2.5 bathrooms and 1-car garage. Features include deck, family room, porch, primary bed upstairs and walk-in closets.
Floor plan center
View floor plan details for this property.
- Floor Plans
- Exterior Images
- Interior Images
- Other Media
Explore custom options for this floor plan.
- Choose Option
- Include Features
Neighborhood
Community location & sales center
27177 Mission Blvd
Hayward, CA 94541
27177 Mission Blvd
Hayward, CA 94541
888-410-2518
Schools near Fusion
- Hayward Unified School District
- San Lorenzo Unified School District
Actual schools may vary. Contact the builder for more information.
Amenities
Home details
Ready to build
Build the home of your dreams with the Fusion Plan 5 plan by selecting your favorite options. For the best selection, pick your lot in Fusion today!
Community & neighborhood
Community services & perks
- HOA fees: Unknown, please contact the builder
From our very first beginnings in 2008, The True Life Companies (our parent company), knew we were creating something unique. Our goal was simple: create desirable communities in high-need markets. To achieve this was more complex, and our founding partners brought their decades of business insights and experience together with an assembled team of like-minded professionals — dedicated people with relevant, proven industry experience and a tireless enthusiasm to create new housing options and economic opportunities that not only support growing cities but also reflect our cherished American values. As we’ve grown, we’ve built on our vision with tireless enthusiasm, creative collaboration and consensus building. At Homes Built For America, we encourage one another, work together and are passionate about contributing to our company and to the world around us. Each and every community is built upon smart planning and a sincere commitment to doing the right thing - what we call our ‘bedrock of excellence’. We work with cities eager for new lasting housing solutions that serve new generations and who recognize the opportunity we offer to answer their housing needs. At the end of the day, we recognize that the American dream is a journey, and it is one we are proud to be on with you.
Take the next steps toward your new home
Fusion Plan 5 Plan by Homes Built For America
saved to favorites!
To see all the homes you’ve saved, visit the My Favorites section of your account.
Discover More Great Communities
Select additional listings for more information
We're preparing your brochure
You're now connected with Homes Built For America. We'll send you more info soon.
The brochure will download automatically when ready.
Brochure downloaded successfully
Your brochure has been saved. You're now connected with Homes Built For America, and we've emailed you a copy for your convenience.
The brochure will download automatically when ready.
Way to Go!
You’re connected with Homes Built For America.
The best way to find out more is to visit the community yourself!