Skip main navigation
Floor Plan A home design you can choose to customize and build in this community, on your choice of homesite. Ready to build

Grady

858 W Regatta Ln, Stansbury Park, UT, 84074

by Ivory Homes

From $445,000 This is the starting price for this plan and is subject to change.

  • 2 Beds
  • 2 Baths
  • 2 Car garage
  • 1,298 Sq Ft

    Overview

    Floor plan features

    • Single Family

    Floor plan description

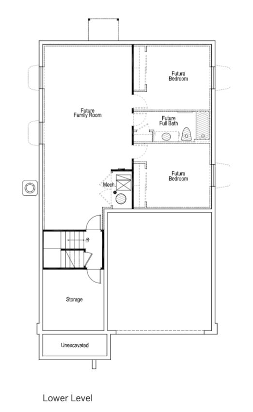
    The Grady, a charming rambler-style home, offers a perfect blend of comfort and simplicity. With up to four bedrooms and three bathrooms, this home spans a total of 2547 square feet. Its single-level design showcases an efficient layout, making everyday living a breeze. The inviting living spaces and spacious bedrooms create an environment of tranquility and warmth, while the master suite ensures privacy and convenience. The Grady is a testament to the beauty of a well-designed, compact space, and it's perfect for those who appreciate a cozy yet stylish living environment.


    Explore this home

    Explore custom options for this floor plan.


    Community highlights

    About Sagewood Village Cottages

    Ivory Homes is excited to bring unparalleled value to Stansbury Park. Sagewood Village will be one of Ivory Home's premier communities in the state, with great amenities, unbeatable prices, and different home types for every stage of life. Sagewood Village Cottages offers excellent single-family homes just 25 minutes from downtown Salt Lake City. Why pay so much more for so much less in the Salt Lake Valley? There will be incredible amenities, with 5 acres set aside for a future recreation center or community park, over 2 miles of open trails, 2 pocket parks, and some beautiful community monuments and landscaping. Located just off Highway 38 in Stansbury Park, you can enjoy the quiet life outside the city with easy access to shopping and anything else you will need. See why s...

    Ivory Homes is excited to bring unparalleled value to Stansbury Park. Sagewood Village will be one of Ivory Home's premier communities in the state, with great amenities, unbeatable prices, and different home types for every stage of life. Sagewood Village Cottages offers excellent single-family homes just 25 minutes from downtown Salt Lake City. Why pay so much more for so much less in the Salt Lake Valley? There will be incredible amenities, with 5 acres set aside for a future recreation center or community park, over 2 miles of open trails, 2 pocket parks, and some beautiful community monuments and landscaping. Located just off Highway 38 in Stansbury Park, you can enjoy the quiet life outside the city with easy access to shopping and anything else you will need. See why so many people are now choosing Stansbury Park and Sagewood Village Cottages. Ivory Homes is launching Sagewood Village in Stansbury Park, offering affordable homes with great amenities 25 minutes from Salt Lake City, ideal for those seeking value and quality living outside the city. Over 2 Miles of Open Trails, 2 Future Pocket Parks, Future Recreation Center or Community Park... More info about Sagewood Village Cottages

    Have questions about the amenities?

    Get more details

    Your free brochure has been sent via email

    Request a tour

    Community location & sales center
    Grady

    Sagewood Village Cottages
    Ivory Homes
    858 W Regatta Ln, Stansbury Park, UT 84074

    888-885-2831


    Neighborhood

    Community map

    Community location & sales center

    888-885-2831

    Please enter a valid location or select an item from the list.
    Driving directions to sales center

    Nearby schools

    Tooele District

    Stansbury High School

    GreatSchools
    rating
    GreatSchools rating: 4 out of 10

    High school. Grades 9 to 12.

    Public school

    Teacher - student ratio: 1:25

    Students enrolled: 2010

    435-882-2479

    5300 N Aberdeen Ln, Stansbury Park, UT, 84074

    GreatSchools ratings are provided by GreatSchools.org and are for reference only. Ratings may not be available for all schools. Please verify school assignments and details with the local school district.


    Amenities

    Community & neighborhood


    Builder details

    Ivory Homes

    Ivory Homes Logo

    Welcome to Ivory Homes, Utah's Number One Homebuilder® for 34 years. Our architects and designers bring decades of experience to every home plan we offer. As ProBuilder Magazine's National Homebuilder of the Year, know you're in good hands with a locally owned and operated company that understands Utah's rich landscape and climate. We care about your home today and its value tomorrow!

    What makes a home, a home? It’s a place where you can relax. Somewhere you can plan for the future as you build your legacy. A place that will keep your loved ones warm in the winter and cool in the hot summer. Where memories will be made as well as kept as the years go by. At Ivory Homes® we know what makes a home great, and we are honored to be Utah’s most successful homebuilding company.

    This year, we are celebrating 34 years on top with the completion of 20,000 new homes and counting. This is experience, design and quality you can count on when purchasing a new home with Ivory Homes®.

    It’s been quite a journey getting to 34 years as Utah’s Number One Homebuilder®. As our CEO Clark Ivory says, “Successful companies always change but their principles never do”. This is the driving philosophy behind Ivory Homes. Ivory’s leadership understands the need for change and innovation without losing focus on core values.

    We go beyond homebuilding to build communities and new homes that will last. Each year we set our sights higher. As we celebrate 34 fantastic years as being Utah’s Number One Homebuilder® we know we won’t be stopping there.



    This listing's information was verified with the builder for accuracy 4 days ago