Griffin Plan
Ready to build
95 Timber Trail, Easton PA 18045
Home by Tuskes Homes
at Wolf's Run

Last updated 2 days ago
The Price Range displayed reflects the base price of the homes built in this community.
You get to select from the many different types of homes built by this Builder and personalize your New Home with options and upgrades.
3 BR
2.5 BA
2 GR
1,906 SQ FT

Exterior 1/41
Overview
1 Half Bathroom
2 Stories
Multi Family
Primary Bed Downstairs
Griffin Plan Info
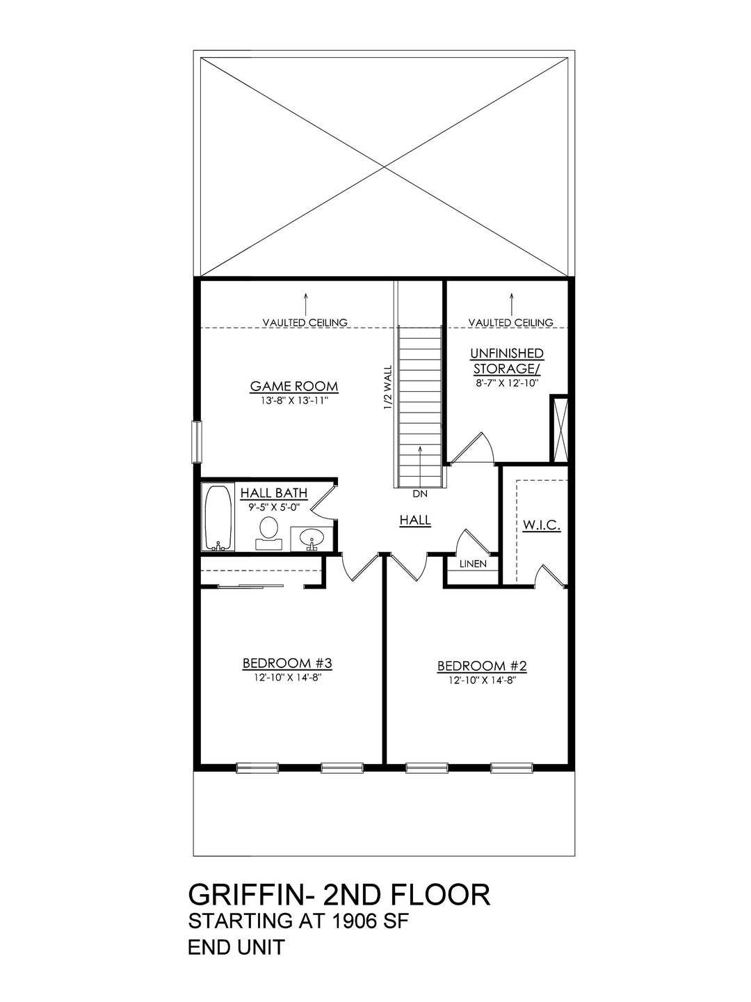
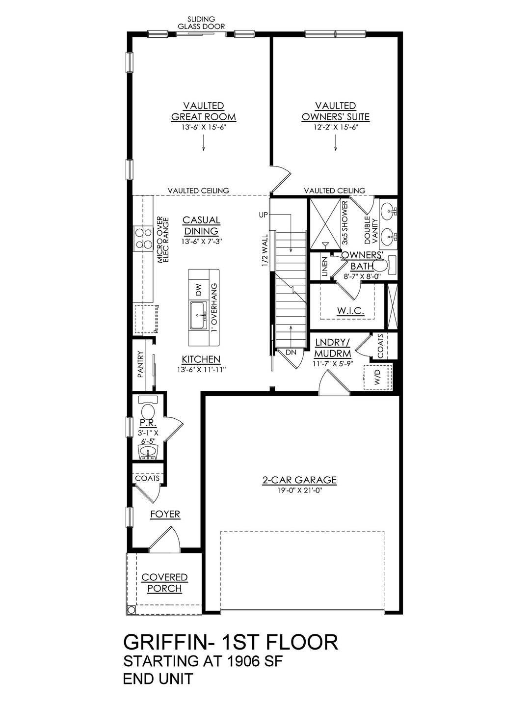
The Griffin’s plan offer flexible living spaces that are perfect for multi-generational families or those who prefer extra privacy. As you enter through the Foyer, you'll be greeted by a convenient coat closet and a Powder Room, ideal for guests. The Casual Dining area flows into the Kitchen, featuring an island with overhang, plenty of storage in the pantry, and beautiful granite or quartz countertops. The Great Room boasts a vaulted ceiling and sliding glass doors, inviting natural light and outdoor access. Retreat to the 1st floor Owners' Suite, also with a vaulted ceiling and a luxurious Bath including a double vanity, 3' x 5' shower, and walk-in closet. A perfectly located Laundry Room and Mudroom can also be found on the main floor of this home near the 2-Car Garage. On the second floor, a Game Room provides extra living space for family gatherings. Two additional Bedrooms, one with a walk-in closet, and a shared Hall Bath are also located on this level. Some images, videos, virtual tours shown may be from a previously built Tuskes home of similar design. Actual options, colors, and selections may vary. Contact us for details!
Floor plan center
View floor plan details for this property.
- Floor Plans
- Exterior Images
- Interior Images
- Other Media
Neighborhood
Community location & sales center
95 Timber Trail
Easton, PA 18045
95 Timber Trail
Easton, PA 18045
From 78 and 22, take 33N. Take 248 exit and make left onto 248/ Nazareth Rd. Make a left at the light after the shopping center onto Corriere Rd. Corriere Rd. to Van Buren Rd. Left on Van Buren. The community is approximately 1/4 mile down the road on the right.
Schools near Wolf's Run
- Easton Area School District
Actual schools may vary. Contact the builder for more information.
Amenities
Home details
Ready to build
Build the home of your dreams with the Griffin plan by selecting your favorite options. For the best selection, pick your lot in Wolf's Run today!
Community & neighborhood
Community services & perks
- HOA fees: Unknown, please contact the builder
With over 50 years of experience welcoming thousands of families home to a better quality of life, Tuskes Homes offers what no other builder in the Lehigh Valley area can. As a third generation, family-owned, local builder, we are dedicated to building lifetime relationships with homeowners as well as quality homes. We’re not just your home builder, we’re your neighbors, too. Tuskes Homes is proud to build quality homes that are as much for everyday living as they are for grand entertaining. Every lifestyle and taste can be satisfied in one of our many designs. Take a tour of a Tuskes-built home and you’ll have no doubts that they are among the very best new homes in the Lehigh Valley. Tuskes Homes believes that you owe it to yourself to build the home you really want. Our homes and our neighborhoods, are designed to make your life easier, more comfortable, and more enjoyable. Simply put, everything we do is intended to enhance your style of living. We believe, as you do, that “home” encompasses much more than four walls and a door. It’s your refuge and your retreat. A place to reenergize, relax and unwind with family and friends. Inside, and out, the emphasis is on helping you live a healthy, happy lifestyle. The process of building a home is fun and exciting when you select the right builder. Our long history, and excellent partnerships with expert suppliers, subcontractors, and nationally recognized brand name materials, make it possible for Tuskes Homes to build a home you’ll absolutely love! CEO, Charles Tuskes believes that giving customers great service is just good business, so the Tuskes building team pays close attention to your wishes and desires – it’s known as The Tuskes Touch.
Take the next steps toward your new home
Griffin Plan by Tuskes Homes
saved to favorites!
To see all the homes you’ve saved, visit the My Favorites section of your account.
Discover More Great Communities
Select additional listings for more information
We're preparing your brochure
You're now connected with Tuskes Homes. We'll send you more info soon.
The brochure will download automatically when ready.
Brochure downloaded successfully
Your brochure has been saved. You're now connected with Tuskes Homes, and we've emailed you a copy for your convenience.
The brochure will download automatically when ready.
Way to Go!
You’re connected with Tuskes Homes.
The best way to find out more is to visit the community yourself!