Build on Your Land - Legacy Collection (SW Washington)
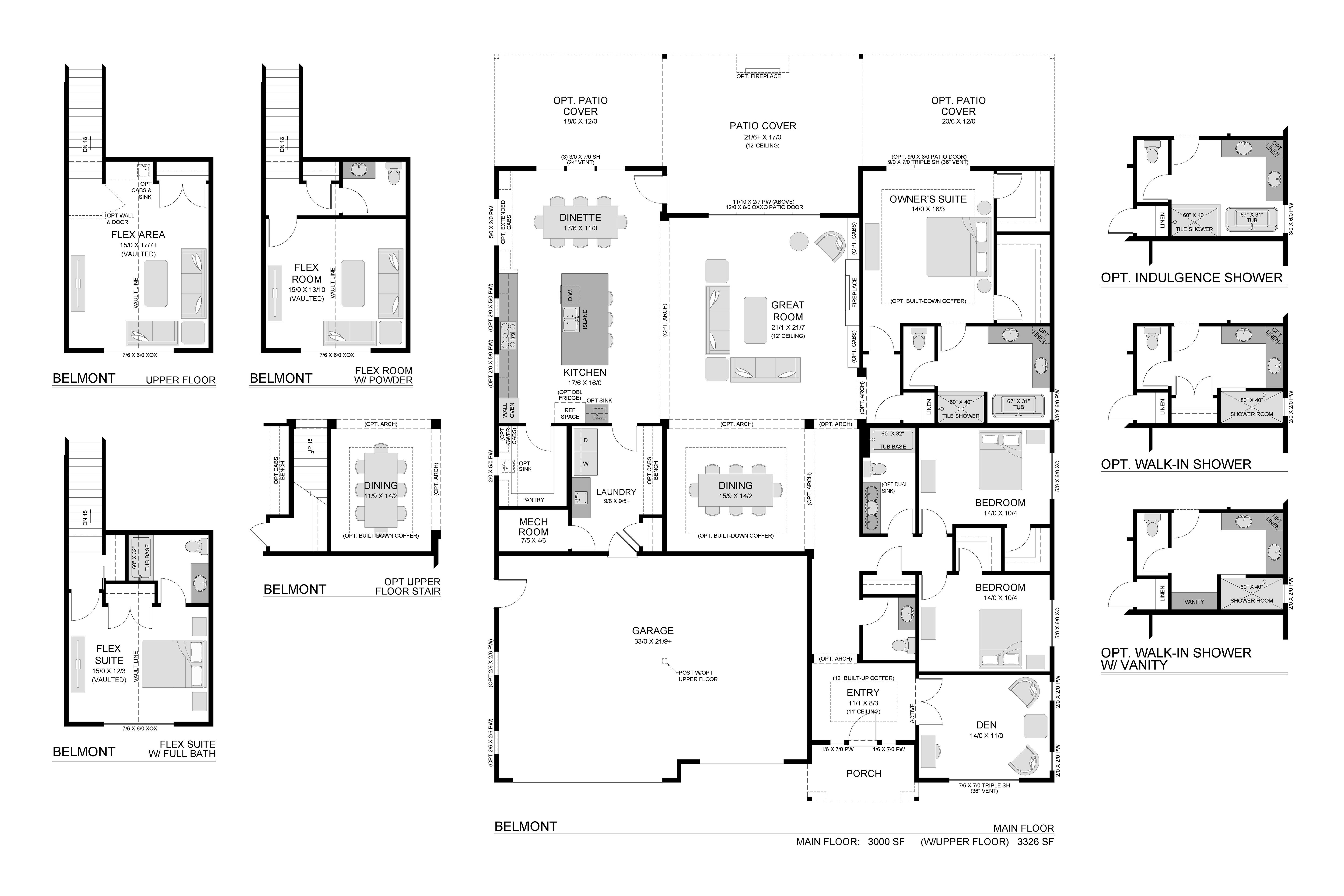
Heritage Belmont LX (Single-Story)
11815 NE 113th Street, Suite 110, Vancouver, WA, 98662
by New Tradition Homes
From $799,900 This is the starting price for this plan and is subject to change.
- 3 Beds
- 2.5 Baths
- 3 Car garage
- 3,000 Sq Ft
Overview
Floor plan features
- 1 Half Bathroom
- 1 Story
- Primary Bed Downstairs
- Single Family
Floor plan description
The Belmont is NT’s largest single-level home, thoughtfully designed for those who want generous space with seamless flow. At the center of the home, the open-concept great room with 11-foot ceilings is open to the kitchen and dining areas, creating an ideal setting for everyday living and easy entertaining. The spacious kitchen features a large pantry and optional windows for extra natural light. With a dinette that opens to the covered patio for relaxed indoor-outdoor living. Nearby, the oversized laundry room offers convenient access to the 3-car garage. The Owner’s Retreat provides a quiet escape with a spacious bedroom, dual walk-in closets, dual vanities, and a soaking tub. This side of the home also includes two secondary bedrooms, a full bath, a powder bath, and a dedicated den—per...
Explore this home
Explore custom options for this floor plan.
Special offers
Explore the latest promotions at Build on Your Land - Legacy Collection (SW Washington). to learn more!
Hometown Heroes...
New Tradition Homes Salutes our Hometown Heroes! To say thank you for your service, we offer a special program giving $3,000 towards the purchase of a New Tradition Home for Military Personnel (active & veterans), Firefighters and Police Officers.
Community highlights
About Build on Your Land - Legacy Collection (SW Washington)
Enjoy a New Tradition Home Wherever You Want It! With our Build On Your Land program, you enjoy all the benefits of a New Tradition home virtually anywhere in Vancouver, Tri Cities, and Winlock, WA. You could purchase your own lot and then build your ideal home. It is a wonderful solution when you can’t imagine leaving your neighborhood, but can’t find a home there to suit your needs. If you love where you live, it’s easier than you think to have your dream home and your dream address. Need help finding your perfect house? Contact us today or visit one of our knowledgeable New Home Specialists at any of our Sales Centers for assistance. More info about Build on Your Land - Legacy Collection (SW Washington)
Green program
100% ENERGY STAR Certified Homes
More InfoNeighborhood
Community location & sales center
11815 NE 113th Street, Suite 110 Vancouver, WA 98662
11815 NE 113th Street, Suite 110 Vancouver, WA 98662
888-347-0423
Amenities
Community & neighborhood
Neighborhood amenities
Safeway
0.73 mile away
3707 Main St
Harvest Market
0.74 mile away
300 W 15th St
Grocery Cocktail & Social
0.99 mile away
115 W 7th St
Walmart Neighborhood Market
1.00 miles away
2201 Grand Blvd
Goody's Market
1.23 miles away
3814 Kauffman Ave
Bleu Door Bakery
0.47 mile away
2411 Main St
Walmart Bakery
1.00 miles away
2201 Grand Blvd
Sunrise Bagels
1.15 miles away
808 Harney St
Bleu Door Bakery
0.47 mile away
2411 Main St
Esan Thai Food Cart
0.47 mile away
2315 Main St
Dairy Queen Grill & Chill
0.47 mile away
2707 Main St
Peking Garden
0.48 mile away
2101 Main St
Uptown Barrel Room
0.48 mile away
2011 Main St
Mon Ami
0.54 mile away
1906 Main St
Relevant Coffee
0.56 mile away
1703 Main St
Starbucks
0.58 mile away
409 E Mill Plain Blvd
Starbucks
0.73 mile away
3707 Main St
Black Rock Coffee Bar
0.79 mile away
1001 Broadway St
Lil Dudes & Divas
0.53 mile away
1815 Main St
The Difference
0.82 mile away
110 E Evergreen Blvd
Wild Fern Boutique
0.87 mile away
901 Main St
Crown Bridal
0.89 mile away
600 Hathaway Rd
Most Everything
0.95 mile away
815 Washington St
Thirsty Sasquach
0.49 mile away
2110 Main St
Tip Top Too LLC
0.51 mile away
2100 Main St
Elbow Room
0.51 mile away
1800 Broadway St
Underbar
0.53 mile away
1701 1/2 Broadway St
The Infirmary
0.62 mile away
1708 Washington St
Please note this information may vary. If you come across anything inaccurate, please contact us.
Builder details
New Tradition Homes
New Tradition Homes began in 1987 with the Helmes family dream to build new homes of high quality, enduring design and lasting value. We named our company New Tradition Homes to demonstrate the combined excitement of building new lives, new memories, and new traditions in a new home. Today we are one of the largest homebuilders in Washington State, having built thousands of homes. Personalized Service and Customer Satisfaction From the very beginning, we have been dedicated to personalized service and customer satisfaction. We recognize the flexibility needed to meet the ever-changing needs of our homebuyers. Our in-house design team is continually updating floor plans to make sure that our homes represent the best in new home design. We also offer a wide menu of personalized options on every home that we build. New Tradition Homes has become the regional leader in developing innovative and energy-efficient construction technologies. Through on-going research and dedication we continue to build homes that are healthier, more durable and more efficient than standard new homes. Every New Tradition Homes is ENERGY STAR Certified and comes with a HERS home energy rating score. This certification means that every home is third-party verified to meet our high standards. Our ongoing commitment is to provide homebuyers beautiful, better-built homes at an affordable price. We’ve built many homes and communities over the years, but we have not forgotten our roots – One family’s dedication to help other families build new traditions in a new home. We stand behind our homes and our communities and the high quality, enduring design and lasting value that they demonstrate.
Take the next steps toward your new home
This listing's information was verified with the builder for accuracy 1 day ago
Heritage Belmont LX (Single-Story) Plan by New Tradition Homes
saved to favorites!
To see all the homes you’ve saved, visit the My Favorites section of your account.
Discover More Great Communities
Select additional listings for more information
We're preparing your brochure
You're now connected with New Tradition Homes. We'll send you more info soon.
The brochure will download automatically when ready.
Brochure downloaded successfully
Your brochure has been saved. You're now connected with New Tradition Homes, and we've emailed you a copy for your convenience.
The brochure will download automatically when ready.
Way to Go!
You’re connected with New Tradition Homes.
The best way to find out more is to visit the community yourself!