Skip main navigation
Floor Plan A home design you can choose to customize and build in this community, on your choice of homesite. Ready to build

Heritage Laurelhurst LX

1158 N Paradise Avenue, Ridgefield, WA, 98642

by New Tradition Homes

From $1,256,900 This is the starting price for this plan and is subject to change.

  • 5 Beds
  • 3.5 Baths
  • 3 Car garage
  • 3,445 Sq Ft

    Overview

    Floor plan features

    • 1 Half Bathroom
    • 2 Stories
    • Primary Bed Upstairs
    • Single Family

    Floor plan description

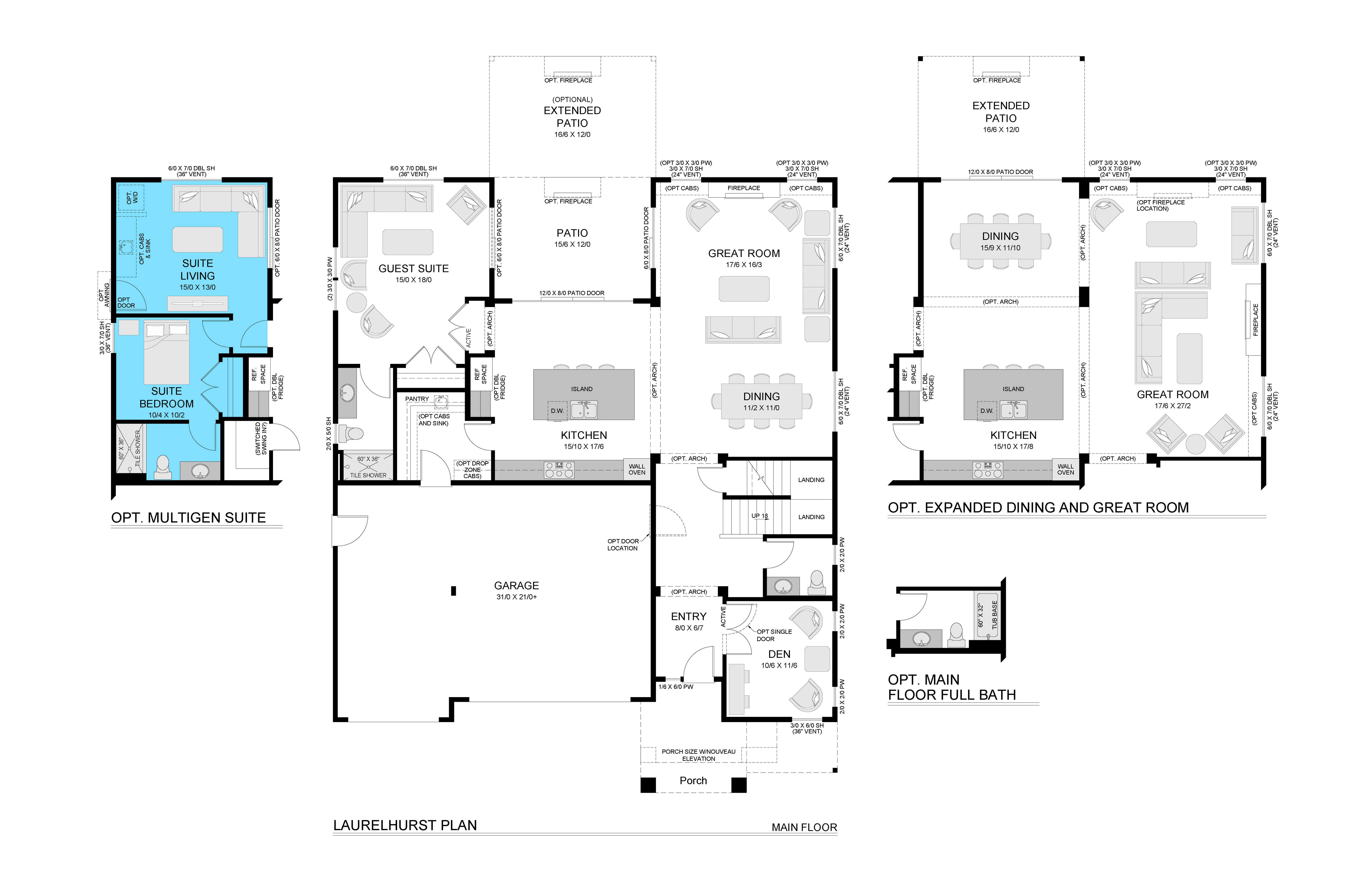
    A standout plan built for entertaining, the Laurelhurst offers two levels of thoughtfully designed living space—plus an included 3-car garage. Step into a welcoming entry with a double-door den or home office, then move into the open-concept dining area and great room. One of the largest kitchens in the New Tradition lineup anchors the heart of the home, complete with a generous center island, eating bar, and a slider to a covered patio—outdoor fireplace optional. Want more room to gather and dine? Choose the expanded Great Room/Dining layout for even more space to live and entertain. On the main level, a flexible guest suite includes a full bath, closet, and optional slider to the patio—ideal for multigenerational living or weekend guests. Upstairs, you’ll find two standard bedrooms, a fu...

    A standout plan built for entertaining, the Laurelhurst offers two levels of thoughtfully designed living space—plus an included 3-car garage. Step into a welcoming entry with a double-door den or home office, then move into the open-concept dining area and great room. One of the largest kitchens in the New Tradition lineup anchors the heart of the home, complete with a generous center island, eating bar, and a slider to a covered patio—outdoor fireplace optional. Want more room to gather and dine? Choose the expanded Great Room/Dining layout for even more space to live and entertain. On the main level, a flexible guest suite includes a full bath, closet, and optional slider to the patio—ideal for multigenerational living or weekend guests. Upstairs, you’ll find two standard bedrooms, a full bath with double vanity, a large flex room, and a conveniently located laundry room. The luxurious owner’s suite includes a spacious walk-in closet and spa-inspired bath, with options for an indulgence shower or oversized walk-in shower.


    Explore this home

    Explore custom options for this floor plan.


    Special offers

    Explore the latest promotions at Paradise Pointe. to learn more!

    Savings

    Hometown Heroes...

    New Tradition Homes Salutes our Hometown Heroes! To say thank you for your service, we offer a special program giving $3,000 towards the purchase of a New Tradition Home for Military Personnel (active & veterans), Firefighters and Police Officers.


    Community highlights

    Community amenities

    • Greenbelt

    • Park

    • Trails

    About Paradise Pointe

    Built around 15 acres of preserved green space, Paradise Pointe is a master-planned community that blends nature, design, and community. Winding trails will connect into the larger Ridgefield trail system, while parks and open spaces create room to breathe and a true sense of place. Just minutes from new shopping, dining, charming downtown Ridgefield, and the Columbia River marina, Paradise Pointe offers the best of Northwest living. Here you’ll find rare 7,500+ sq. ft. homesites and a wide selection of single-level and two-story floor plans from our Classic Series — crafted by one of Washington’s most trusted builders. With pricing starting from the low 800s, Paradise Pointe delivers both value and quality for today’s homebuyers. And with quick access to I-5 and only 20 minutes to PDX A...

    Built around 15 acres of preserved green space, Paradise Pointe is a master-planned community that blends nature, design, and community. Winding trails will connect into the larger Ridgefield trail system, while parks and open spaces create room to breathe and a true sense of place. Just minutes from new shopping, dining, charming downtown Ridgefield, and the Columbia River marina, Paradise Pointe offers the best of Northwest living. Here you’ll find rare 7,500+ sq. ft. homesites and a wide selection of single-level and two-story floor plans from our Classic Series — crafted by one of Washington’s most trusted builders. With pricing starting from the low 800s, Paradise Pointe delivers both value and quality for today’s homebuyers. And with quick access to I-5 and only 20 minutes to PDX Airport, the community is ideally located for work, travel, and play. Limited greenbelt homesites are available—don’t miss the chance to create your ideal home in Ridgefield’s premier neighborhood. More info about Paradise Pointe

    Green program

    100% ENERGY STAR Certified Homes

    More Info

    Have questions about the amenities?

    Get more details

    Your free brochure has been sent via email

    Request a tour

    Community location & sales center
    Heritage Laurelhurst LX

    Paradise Pointe
    New Tradition Homes
    1158 N Paradise Avenue, Ridgefield, WA 98642

    888-342-1062

    Hours

    Mon - Sat 10:00am-5:00pm


    Neighborhood

    Community map

    Community location & sales center

    888-342-1062

    Please enter a valid location or select an item from the list.
    Driving directions to sales center

    Amenities

    Community & neighborhood

    Local points of interest

    • Greenbelt

    Health and fitness

    • Trails

    Community services & perks

    • Park

    Builder details

    New Tradition Homes

    New Tradition Homes Logo

    New Tradition Homes began in 1987 with the Helmes family dream to build new homes of high quality, enduring design and lasting value. We named our company New Tradition Homes to demonstrate the combined excitement of building new lives, new memories, and new traditions in a new home. Today we are one of the largest homebuilders in Washington State, having built thousands of homes. Personalized Service and Customer Satisfaction From the very beginning, we have been dedicated to personalized service and customer satisfaction. We recognize the flexibility needed to meet the ever-changing needs of our homebuyers. Our in-house design team is continually updating floor plans to make sure that our homes represent the best in new home design. We also offer a wide menu of personalized options on every home that we build. New Tradition Homes has become the regional leader in developing innovative and energy-efficient construction technologies. Through on-going research and dedication we continue to build homes that are healthier, more durable and more efficient than standard new homes. Every New Tradition Homes is ENERGY STAR Certified and comes with a HERS home energy rating score. This certification means that every home is third-party verified to meet our high standards. Our ongoing commitment is to provide homebuyers beautiful, better-built homes at an affordable price. We’ve built many homes and communities over the years, but we have not forgotten our roots – One family’s dedication to help other families build new traditions in a new home. We stand behind our homes and our communities and the high quality, enduring design and lasting value that they demonstrate.



    This listing's information was verified with the builder for accuracy 2 days ago