Heritage Series Plan Three Plan
Ready to build
5380 Soledad Circle, Parker CO 80134
Home by Celebrity Homes
at Pradera

Last updated 03/12/2026
The Price Range displayed reflects the base price of the homes built in this community.
You get to select from the many different types of homes built by this Builder and personalize your New Home with options and upgrades.
4 BR
3.5 BA
3 GR
3,344 SQ FT

Heritage Series Plan Three 1/55
Overview
1 Half Bathroom
2 Stories
Basement
Breakfast Area
Covered Patio
Dining Room
Family Room
Fireplaces
Loft
Mud Room
Patio
Porch
Primary Bed Upstairs
Single Family
Study
Vaulted Ceiling
Walk-In Closets
Heritage Series Plan Three Plan Info
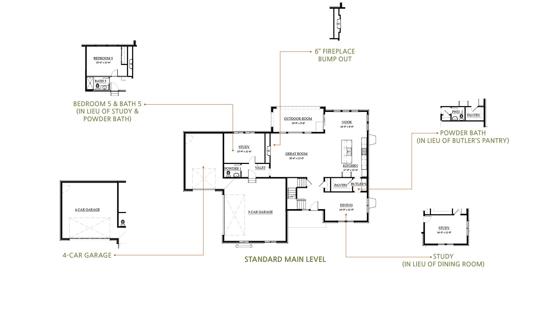
This spacious two-story home features an open kitchen, great room and nook with adjacent outdoor room, a formal dining room, private study, and 3-car garage. Upstairs is the primary suite, a loft and three secondary bedrooms. The basement can be finished for additional living space and up to two additional bedrooms. This plan won the 2023 Parade of Homes People's Choice Award!
Floor plan center
View floor plan details for this property.
- Floor Plans
- Exterior Images
- Interior Images
- Other Media
Explore custom options for this floor plan.
- Choose Option
- Include Features
Neighborhood

Community location & sales center
5380 Soledad Circle
Parker, CO 80134
5380 Soledad Circle
Parker, CO 80134
888-438-6112
From Downtown Denver: Take I-25 south to the Founders Parkway exit and go east 1.6 miles to Crowfoot Valley Road. Go north on Crowfoot Valley 3.4 miles to Pradera Parkway. Go right on Pradera Parkway and follow signs to the sales office. From DIA: Take E-470 (toll road) south to Parker Road. Go south 5.6 miles from Main Street in the town of Parker to Bayou Gulch Road. Go west (right) on Bayou Gulch 1.5 miles to Pradera Parkway. Go left on Pradera Parkway and follow signs to the sales office. From Colorado Springs: Take I-25 north to the Founders Parkway exit and go east 1.6 miles to Crowfoot Valley Road. Go north on Crowfoot Valley 3.4 miles to Pradera Parkway. Go right on Pradera Parkway and follow signs to the sales office.
Nearby schools
Douglas County School District
Mountain View Elementary School
Elementary school. Grades KG to 2.
Public school
Teacher - student ratio: 1:18
Students enrolled: 335
303-387-8675
8502 N Pinery Pkwy, Parker, CO, 80134
Northeast Elementary School
Elementary school. Grades 3 to 5.
Public school
Teacher - student ratio: 1:15
Students enrolled: 292
303-387-8600
6598 N State Highway 83, Parker, CO, 80134
Sagewood Middle School
Middle school. Grades 6 to 8.
Public school
Teacher - student ratio: 1:16
Students enrolled: 824
303-387-4300
4725 Fox Sparrow Rd, Parker, CO, 80134
Ponderosa High School
High school. Grades 9 to 12.
Public school
Teacher - student ratio: 1:18
Students enrolled: 1402
303-387-4000
7007 Bayou Gulch Rd, Parker, CO, 80134
Actual schools may vary. We recommend verifying with the local school district, the school assignment and enrollment process.
Amenities
Home details
Ready to build
Build the home of your dreams with the Heritage Series Plan Three plan by selecting your favorite options. For the best selection, pick your lot in Pradera today!
Community & neighborhood
Local points of interest
- Castlewood Canyon State Park
- Parker Recreation Center
- Challenger Regional Park
- Parker Field House
- H2O Brien Outdoor Pool
- Park Meadows Mall
- Castle Rock Outlet Mall
- Views
Social activities
- Club House
Health and fitness
- Castle Rock Recreation Center
- Golf Course
- Pool
- Trails
Community services & perks
- The Club at Pradera
- Private Golf Course
- Playground
- Park
- Community Center
Neighborhood amenities
King Soopers
3.53 miles away
12959 S Parker Rd
Sprouts Farmers Market
3.78 miles away
5650 Allen Way
Natural Grocers
3.84 miles away
4510 Trail Boss Dr
Leevers Supermarket, Inc
3.91 miles away
2195 N State Highway 83
Walmart Supercenter
3.96 miles away
133 Sam Walton Ln
Smallcakes Cupcakery
3.85 miles away
34 E Allen St
GNC
3.95 miles away
62 Founders Pkwy
Walmart Bakery
3.96 miles away
133 Sam Walton Ln
The Bundt Shoppe
4.77 miles away
7437 Village Square Dr
Subway
3.52 miles away
13097 S Parker Rd
Butterfield's Ice Cream
3.53 miles away
13039 S Parker Rd
Papa Murphy's Take 'n' Bake
3.53 miles away
13029 S Parker Rd
Stroh Ranch Shopping Center, A Regency Centers Property
3.53 miles away
12959 S Parker Rd
Carl's Jr
3.59 miles away
12987 S Parker Rd
Starbucks
3.53 miles away
12959 S Parker Rd
Java Mountain Roasters
3.63 miles away
19033 E Cody Ave
The Exchange Coffee House
3.65 miles away
1415 Westbridge Dr
Starbucks
3.69 miles away
5010 Founders Pkwy
Dutch Bros Coffee
3.81 miles away
248 Metzler Dr
Target
3.69 miles away
5010 Founders Pkwy
Kohl's
3.90 miles away
4800 Milestone Ln
Claire's Inside Walmart
3.96 miles away
133 Sam Walton Ln
Walmart Supercenter
3.96 miles away
133 Sam Walton Ln
Apricot Lane Boutique
4.23 miles away
658 Genoa Way
Parker Pour House
3.60 miles away
12919 Stroh Ranch Ct
Qdoba Mexican Eats
3.83 miles away
78 E Allen St
Applebee's Grill + Bar
3.95 miles away
390 W Allen St
Outback Steakhouse
4.02 miles away
4687 Milestone Ln
Chili's
4.21 miles away
800 New Memphis Ct
Please note this information may vary. If you come across anything inaccurate, please contact us.
Creating sought-after South Denver new home communities for 60+ years At Celebrity Homes we understand that the value of your home and lifestyle extends beyond the walls of your house. That’s why we put so much thought and care into the details of the community you’ll call home. Things like quiet streets with lots of cul-de-sacs and sidewalks that make way for bikes, trikes and sidewalk chalk games, are as important to us they are to you. When we design our communities here in Douglas County, we aren’t trying to build as many homes for sale as quickly as possible and move on to the next. Our goal is to create special neighborhoods that will stand the test of time and provide long-lasting value to our residents. That’s why we take the time to establish active HOA’s that organize resident events and produce community newsletters and why we create spaces for interaction and recreation like community pools, clubhouses, tennis facilities, parks, playgrounds and trails.
Take the next steps toward your new home
Heritage Series Plan Three Plan by Celebrity Homes
saved to favorites!
To see all the homes you’ve saved, visit the My Favorites section of your account.
Discover More Great Communities
Select additional listings for more information
We're preparing your brochure
You're now connected with Celebrity Homes. We'll send you more info soon.
The brochure will download automatically when ready.
Brochure downloaded successfully
Your brochure has been saved. You're now connected with Celebrity Homes, and we've emailed you a copy for your convenience.
The brochure will download automatically when ready.
Way to Go!
You’re connected with Celebrity Homes.
The best way to find out more is to visit the community yourself!