Hillspire II Plan
Ready to build
12439 Ridgeline Dr, Colorado Springs CO 80921
Home by Classic Homes
at Flying Horse

Last updated 09/27/2025
The Price Range displayed reflects the base price of the homes built in this community.
You get to select from the many different types of homes built by this Builder and personalize your New Home with options and upgrades.
5 BR
4 BA
3 GR
3,747 SQ FT

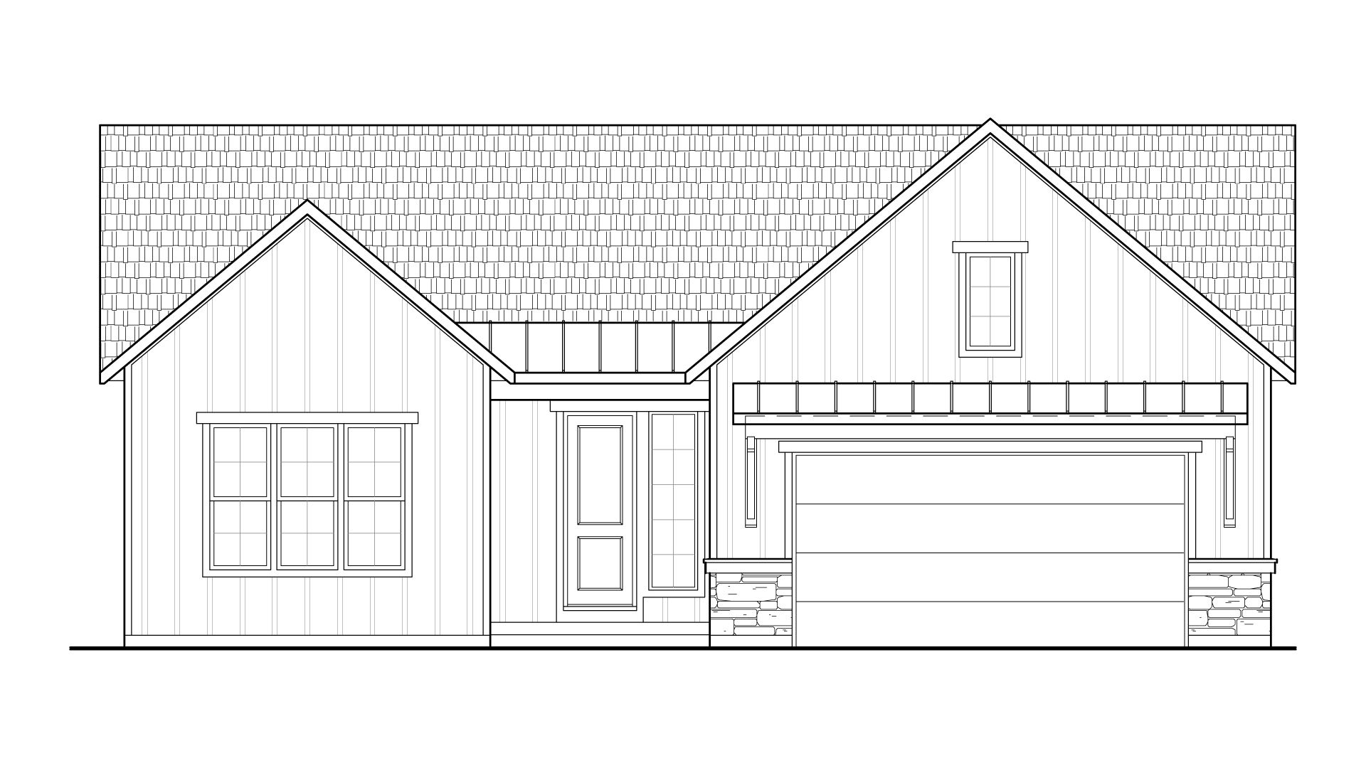
Elevation A 1/5
Overview
1 Story
3 Car Garage
3747 Sq Ft
4 Bathrooms
5 Bedrooms
Basement
Bonus Room
Breakfast Area
Covered Patio
Deck
Dining Room
Disabled Access
Family Room
Fireplaces
Flex Room
Game Room
Guest Room
Living Room
Media Room
Mud Room
Multigenerational
Office
Patio
Play Room
Porch
Single Family
Study
Vaulted Ceiling
Walk-In Closets
Hillspire II Plan Info
The Hillspire II w/ basement is a “to be built” home and includes 2 beds, 2.5 baths, 2-car garage, open-concept Kitchen, Dining, and Great Room, plus a dedicated Study and spacious primary suite. Options include finished basement, up to 5 beds and 4.5 baths, dual Studies, rec room, wet bar, powder baths, Jack & Jill layout, and optional 3-car garage. For cleaner floor plans and more photos please visit builder website.
Floor plan center
View floor plan details for this property.
- Floor Plans
- Exterior Images
- Interior Images
- Other Media
Neighborhood
Community location & sales center
12439 Ridgeline Dr
Colorado Springs, CO 80921
12439 Ridgeline Dr
Colorado Springs, CO 80921
From I-25, exit #153 at Interquest Parkway. Follow straight for about 4 miles then turn left (west) at light onto Flying Horse Club Drive. Go to first round-a-bout and turn Left (3rd exit) onto Barossa Valley Road. Go to next round-a-bout and turn Right (1st exit) onto Veneto Way. Turn Left onto Ridgeline Drive. The model is on the right at 12439 Ridgeline Drive, Colorado Springs, CO 80921.
Nearby schools
Academy District 20
Elementary school. Grades PK to 5.
- Public school
- Teacher - student ratio: 1:18
- Students enrolled: 526
1810 N Gate Blvd, Colorado Spgs, CO, 80921
719-234-3815
Middle school. Grades 6 to 8.
- Public school
- Teacher - student ratio: 1:17
- Students enrolled: 803
1810 N Gate Blvd, Colorado Spgs, CO, 80921
719-234-1800
High school. Grades 9 to 12.
- Public school
- Teacher - student ratio: 1:18
- Students enrolled: 1087
1810 N Gate Blvd, Colorado Spgs, CO, 80921
719-234-2800
Actual schools may vary. We recommend verifying with the local school district, the school assignment and enrollment process.
Amenities
Home details
Ready to build
Build the home of your dreams with the Hillspire II plan by selecting your favorite options. For the best selection, pick your lot in Flying Horse today!
Community & neighborhood
Local points of interest
- Western Mining Museum (5 minutes)
- The Shops at Briargate (10 minutes)
- The Shoppes at Flying Horse
- King Soopers and Safeway grocery stores are within 10 minutes off Exit #158 (Baptist Rd.)
- Sky Sox Baseball (15 minutes)
- Garden of The Gods (20 minutes)
- Downtown Colorado Springs (20 minutes)
- The Broadmoor World Arena (25 minutes)
- World Class Colorado Ski Resorts (2 hours)
- Easy access to I-25 makes it an excellent choice for working in Colorado Springs, Castle Rock or Denver, Colorado
- Interquest Parkway and North Gate Blvd (5 minutes)
- Briargate YMCA (10 minutes)
- Icon and Regal Movie Theaters (5 minutes)
- United States Air Force Academy (5 minutes)
- Santa Fe Trail (5 minutes)
- Fox Run Regional Park (5 minutes)
- Greenbelt
- Views
- Pond
Social activities
- Social Fitness Membership to The Club at Flying Horse
- Club House
Health and fitness
- Golf Course
- Tennis
- Pool
- Trails
- Volleyball
- Basketball
- Soccer
- Baseball
Community services & perks
- HOA fees: Yes, please contact the builder
- The Club at Flying Horse
- Playground
- Park
- Community Center
Neighborhood amenities
Sprouts Farmers Market
2.15 miles away
13415 Voyager Pkwy
Garden of the Gods Catering and Events
3.39 miles away
9633 Prominent Pt
King Soopers
3.44 miles away
9225 N Union Blvd
Safeway
3.63 miles away
8750 N Union Blvd
Walmart Supercenter
4.31 miles away
8250 Razorback Rd
JJN Home Health Agency Inc
2.46 miles away
515 Fox Run Cir
Einstein Bros Bagels
3.07 miles away
9268 Forest Bluffs Vw
Bakery of Colorado Springs
3.15 miles away
9150 Lexington Dr
Williams-Sonoma
3.30 miles away
1885 Briargate Pkwy
The Steakhouse at Flying Horse
0.77 mile away
1880 Weiskopf Pt
Ivy's Chinese Cafe
1.15 miles away
11550 Ridgeline Dr
Taco Express
1.16 miles away
11661 Voyager Pkwy
Bourbon Brothers, LLC
1.18 miles away
1830 Jet Stream Dr
Southern Hospitality Southern Kitchen Colorado Springs, LLC
1.18 miles away
1830 Jet Stream Dr
Mission Coffee Roasters Inc
1.08 miles away
11641 Ridgeline Dr
Really Good Office Coffee
1.09 miles away
11641 Ridgeline Dr
Coffee & Tea Zone
1.39 miles away
12225 Voyager Pkwy
Dunkin'
1.71 miles away
1391 Interquest Pkwy
Clean Juice
1.85 miles away
1268 Interquest Pkwy
Something New Boutique
1.09 miles away
11590 Ridgeline Dr
Dragons Breath Glass
2.19 miles away
10035 Federal Dr
Apricot Lane Boutique
2.54 miles away
13271 Bass Pro Dr
Lillie Avenue
2.54 miles away
13271 Bass Pro Dr
Target
3.12 miles away
9670 Prominent Pt
The Parkway Tavern
1.39 miles away
12225 Voyager Pkwy
Fuzzy's Taco Shop
1.74 miles away
1375 Interquest Pkwy
UVA Wine Bar
1.85 miles away
1268 Interquest Pkwy
Colorado Mountain Brewery
2.06 miles away
1110 Interquest Pkwy
CycleBar
2.15 miles away
13375 Voyager Pkwy
Please note this information may vary. If you come across anything inaccurate, please contact us.
Classic Homes is a locally owned Colorado Springs based home builder and the only builder to have received the Better Business Bureau’s “Excellence in Customer Service” award on three separate occasions and is also the only builder to be designated as Colorado Springs Best Homebuilder by The Gazette for 15 years running, and the Colorado Springs Business Journal for 13 consecutive years — a true testament to the care and commitment Classic Homes shows our customers and neighbors before, during, and after they’ve become members of the communities we create. In 2018, Classic Homes was recognized as the #1 Best Workplace (Large Companies) in Colorado Springs. We’ve built our reputation based on a sincere and unwavering belief that we must always strive for quality, value, and customer satisfaction in the process of delivering a home to our buyers. Builder Magazine rated the Classic Homes team the #3 Most Productive Builder in the United States.Our selection of building materials, trade contractor partners, and the dedication of our employees is driven by Classic’s mission and value statements, and by the knowledge that we are not merely building homes, but communities, creating new friends and neighbors in the process.
Take the next steps toward your new home
Hillspire II Plan by Classic Homes
saved to favorites!
To see all the homes you’ve saved, visit the My Favorites section of your account.
Discover More Great Communities
Select additional listings for more information
We're preparing your brochure
You're now connected with Classic Homes. We'll send you more info soon.
The brochure will download automatically when ready.
Brochure downloaded successfully
Your brochure has been saved. You're now connected with Classic Homes, and we've emailed you a copy for your convenience.
The brochure will download automatically when ready.
Way to Go!
You’re connected with Classic Homes.
The best way to find out more is to visit the community yourself!