Julia Plan
Ready to build
Port Saint Lucie FL 34987
Home by Kolter Homes

Last updated 2 days ago
The Price Range displayed reflects the base price of the homes built in this community.
You get to select from the many different types of homes built by this Builder and personalize your New Home with options and upgrades.
2 BR
2 BA
2 GR
1,968 SQ FT

Exterior 1/43
Special offers
Explore the latest promotions at PGA Village Verano. Contact Kolter Homes to learn more!
2-1 Rate Buydown = 4.875% 1st Year Rate
Overview
1 Story
1968 Sq Ft
2 Bathrooms
2 Bedrooms
2 Car Garage
Single Family
Study
Julia Plan Info
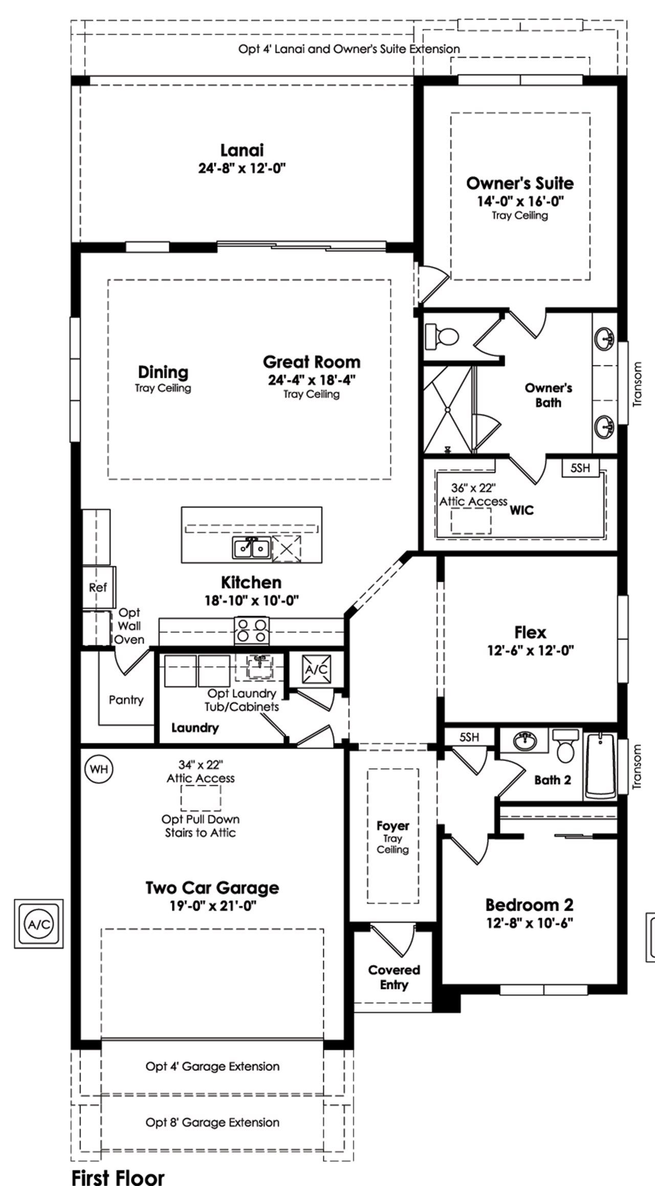
The Kitchen serves as the command center of the Julia floorplan. For the chef in the family, there's lots of space to work and house your tools of the trade with substantial countertop area, cabinetry and pantry. From the island, the view opens up light & bright across the Dining area and Great Room out to the covered Lanai. Owner's Suite highlights include a tray ceiling, spacious walk-in closet and separate vanities in the Owner’s Bath. You can personalize the Julia floorplan with structural options that include three different exterior choices; second-floor Bonus Room variations; Snore Room, Fitness/Study or Bedroom 3 in lieu of Flex; In-Law Suite in lieu of Flex & Bedroom 2; four-foot rear extension of home, and if you're looking for more stow space, add light Attic storage and/or extend the Garage. To learn about all the ways you can have this home built around you, contact a PGA Village Verano New Home Guide.
Floor plan center
View floor plan details for this property.
- Floor Plans
- Exterior Images
- Interior Images
- Other Media
Explore custom options for this floor plan.
- Choose Option
- Include Features
Neighborhood
Community location & sales center
9250 SW Visconti Way
Port Saint Lucie, FL 34987
9250 SW Visconti Way
Port Saint Lucie, FL 34987
888-595-5744
Take I-95 to Crosstown Parkway (Exit 120). Turn west to the stop light. Turn right into the entrance to PGA Village Verano. Proceed to the guardhouse for directions to the Welcome Center.
Schools near PGA Village Verano
- St. Lucie Schools
Actual schools may vary. Contact the builder for more information.
Amenities
Home details
Ready to build
Build the home of your dreams with the Julia plan by selecting your favorite options. For the best selection, pick your lot in PGA Village Verano today!
Community & neighborhood
Local points of interest
- Views
- Lake
- WaterFront Lots
Social activities
- Club House
Health and fitness
- Golf Course
- Tennis
- Pool
- Trails
- Basketball
Community services & perks
- HOA Fees: $511/month
- Playground
- Community Center
Neighborhood amenities
Publix
0.21 mile away
9335 SW Commerce Centre Dr
Lucky Island Petro LLC
0.99 mile away
8490 Commerce Centre Dr
Sprouts Farmers Market
1.59 miles away
1759 NW Saint Lucie West Blvd
Walmart Supercenter
1.85 miles away
1675 NW Saint Lucie West Blvd
Fresh Market
1.97 miles away
10844 SW Village Pkwy
Shedcake Lady
1.41 miles away
2425 SW Gay Cir
Smallcakes Cupcakery
1.41 miles away
2084 NW Courtyard Cir
The Vitamin Shoppe
1.46 miles away
1756 SW Saint Lucie West Blvd
GNC
1.65 miles away
1707 NW Saint Lucie West Blvd
Liz's Cupcake Shoppe
1.73 miles away
10448 SW Westlawn Blvd
One Twenty One Bar & Grill
0.89 mile away
8540 Commerce Centre Dr
Sam Snead's Tavern
0.89 mile away
8540 Commerce Centre Dr
SNB Enterprises LLC
0.96 mile away
694 SW Lake Charles Cir
Tutto Fresco
0.97 mile away
9501 Brandywine Ln
Lucky Island Petro LLC
0.99 mile away
8490 Commerce Centre Dr
Two Parrots Coffee Co LLC
0.69 mile away
838 SW Munjack Cir
Dunkin'
1.36 miles away
1820 SW Fountainview Blvd
Starbucks
1.54 miles away
1789 NW Saint Lucie West Blvd
Tropical Smoothie Cafe
1.65 miles away
1707 NW Saint Lucie West Blvd
Ioan Donuts Holdings LLC
1.72 miles away
140 SW Chamber Ct
Real Athletic Wear
1.59 miles away
250 NW Peacock Blvd
Cato Fashions
1.65 miles away
1707 NW Saint Lucie West Blvd
Bealls Florida
1.73 miles away
1713 NW Saint Lucie West Blvd
Ross Dress For Less
1.73 miles away
1721 NW Saint Lucie West Blvd
Walmart Supercenter
1.85 miles away
1675 NW Saint Lucie West Blvd
Taplow Pub
0.83 mile away
1916 Perfect Dr
Sam Snead's Tavern
0.89 mile away
8540 Commerce Centre Dr
Carrabba's Italian Grill
1.06 miles away
1900 SW Fountainview Blvd
Outback Steakhouse
1.36 miles away
1950 NW Courtyard Cir
Chili's
1.40 miles away
2050 NW Courtyard Cir
Please note this information may vary. If you come across anything inaccurate, please contact us.
Kolter Homes offers new homes buyers more than two decades of experience creating incredible homes and lifestyles throughout the Southeast. Our team of experienced professionals is committed to delivering Kolter Homes’ mission of “Creating Better Communities.” We know we are not just building a house, but a lifestyle, and we start by building in the most sought-after locations. We offer exceptional amenities paired with the natural features and benefits of the area, be they mountains, lakes, beaches, shopping, culture or work opportunities. We then enable homebuyers to create truly personalized homes through our inspiring design galleries. With unparalleled finish choices and personalized options, each home is unique to its owners, and built with an eye to the future using healthy energy-efficient construction techniques, materials, products and standards that create lasting value and a better home.
Take the next steps toward your new home
Julia Plan by Kolter Homes
saved to favorites!
To see all the homes you’ve saved, visit the My Favorites section of your account.
Discover More Great Communities
Select additional listings for more information
We're preparing your brochure
You're now connected with Kolter Homes. We'll send you more info soon.
The brochure will download automatically when ready.
Brochure downloaded successfully
Your brochure has been saved. You're now connected with Kolter Homes, and we've emailed you a copy for your convenience.
The brochure will download automatically when ready.
Way to Go!
You’re connected with Kolter Homes.
The best way to find out more is to visit the community yourself!