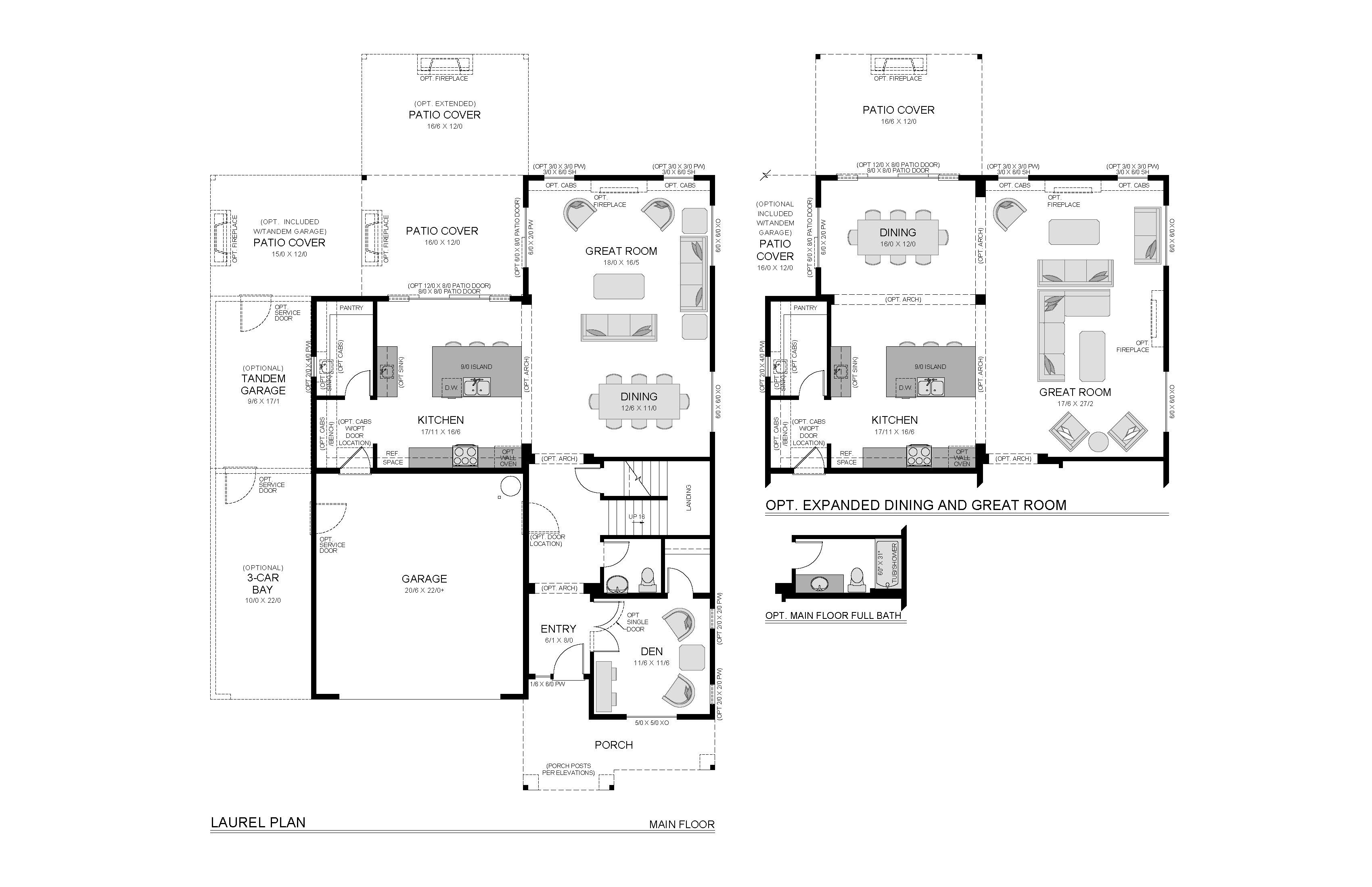
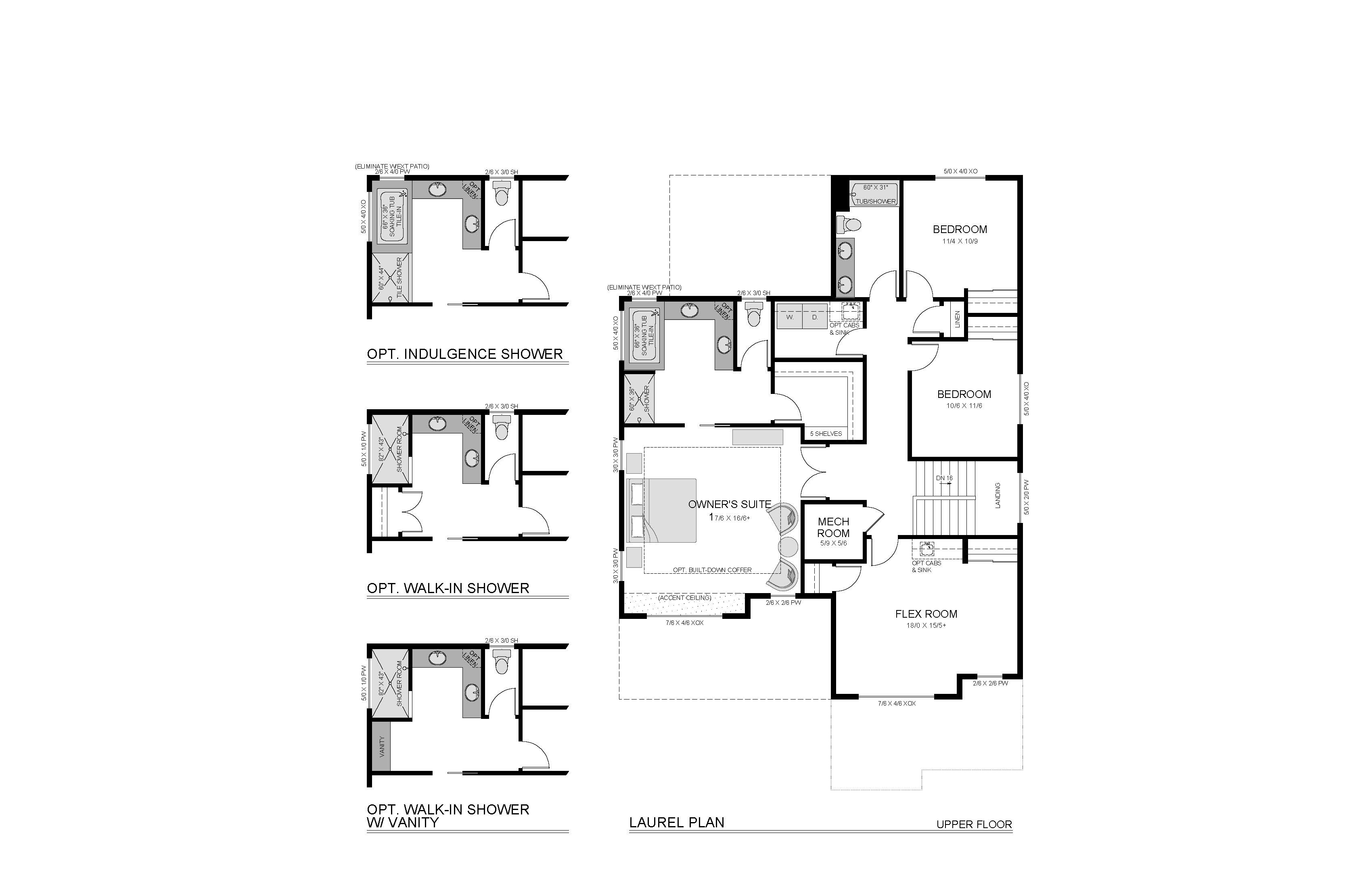
Laurel Plan
Ready to build
112 W 19th Street, La Center WA 98629
Home by New Tradition Homes
Last updated 16 hours ago
The Price Range displayed reflects the base price of the homes built in this community.
You get to select from the many different types of homes built by this Builder and personalize your New Home with options and upgrades.
3 BR
2.5 BA
2 GR
2,926 SQ FT

Exterior 1/9
Special offers
Explore the latest promotions at Stephens Hillside Farm. Contact New Tradition Homes to learn more!
Hometown Heroes...
Overview
1 Half Bathroom
2 Bathrooms
2 Car Garage
2 Stories
2926 Sq Ft
3 Bedrooms
Primary Bed Upstairs
Single Family
Laurel Plan Info
Introducing this charming two-story residence, The Laurel is a perfect blend of modern sophistication and comfortable living. This 3-bedroom, 2.5-bathroom home boasts a thoughtful design with an inviting atmosphere. As you step through the front door, past the office and half bath, you’ll immediately notice the seamless flow of the open concept kitchen and living area, creating a warm and welcoming space for both daily living and entertaining. A dedicated office space on the main floor provides the perfect environment for remote work or a private study. This versatile room could also make for a great guest room. Ascend the staircase to discover a thoughtfully designed layout that includes three bedrooms and a generous upstairs bonus room. The bedrooms offer comfort and privacy, while the bonus room provides additional space for recreation, a home gym, or a media room—allowing you to tailor this area to your lifestyle. The spacious owner’s suite is a true retreat, featuring a double vanity in the ensuite bathroom, providing a touch of luxury and functionality.
Floor plan center
View floor plan details for this property.
- Floor Plans
- Exterior Images
- Interior Images
- Other Media
Neighborhood
Community location & sales center
112 W 19th Street
La Center, WA 98629
112 W 19th Street
La Center, WA 98629
888-540-3660
Schools near Stephens Hillside Farm
- La Center School District
Actual schools may vary. Contact the builder for more information.
Amenities
Home details
Green program
100% ENERGY STAR Certified Homes
Ready to build
Build the home of your dreams with the Laurel plan by selecting your favorite options. For the best selection, pick your lot in Stephens Hillside Farm today!
Community & neighborhood
Local points of interest
- Greenbelt
- Views
Health and fitness
- Trails
Community services & perks
- HOA fees: Unknown, please contact the builder
- Playground
- Park
Neighborhood amenities
El Toro Market
4.15 miles away
629 Goerig St
Rosauers Supermarkets
4.20 miles away
101 S 47th Ave
Grocery Outlet
4.22 miles away
1325 Lewis River Rd
Tienda Jalisco Norte
4.22 miles away
615 Park St
Safeway
4.64 miles away
1725 Pacific Ave
Sweet Nettie Cakes
0.19 mile away
1534 E Caples Ct
Sadie & Josie's Bakery Inc
0.59 mile away
582 NW Pacific Hwy
East West Botanicals
4.16 miles away
600 S 74th Pl
Killa Bites
5.06 miles away
510 Pioneer St
Bucky's Pizza
0.50 mile away
630 E Birch Ave
Podunk Pizza Co
0.50 mile away
630 E Birch Ave
El Rancho Viejo
0.63 mile away
121 E 4th St
Stonehill Coffee House
0.63 mile away
209 E 4th St
4th Street Bar & Grill
0.63 mile away
107 E 4th St
Stonehill Coffee House
0.63 mile away
209 E 4th St
Luckman Coffee Company
4.11 miles away
1230 Lewis River Rd
Starbucks
4.19 miles away
4300 S Settler Dr
Dutch Bros Coffee
4.38 miles away
435 Beechwood St
Cowlitz Trading Post
2.16 miles away
1 Cowlitz Way
Marshall Rousso
2.16 miles away
1 Cowlitz Way
Ruby Blue
2.16 miles away
1 Cowlitz Way
Tie Dye By You
3.58 miles away
39511 NE Christensen Rd
The Empress Estate
5.73 miles away
460 Empress Ln
La Center Tavern
0.63 mile away
107 E 4th St
Last Frontier Casino
0.63 mile away
105 W 4th St
Last Frontier Lounge
0.63 mile away
105 W 4th St
Palace Casino
0.71 mile away
318 NW Pacific Hwy
360 Bar
2.16 miles away
1 Cowlitz Way
Please note this information may vary. If you come across anything inaccurate, please contact us.
New Tradition Homes began in 1987 with the Helmes family dream to build new homes of high quality, enduring design and lasting value. We named our company New Tradition Homes to demonstrate the combined excitement of building new lives, new memories, and new traditions in a new home. Today we are one of the largest homebuilders in Washington State, having built thousands of homes. Personalized Service and Customer Satisfaction From the very beginning, we have been dedicated to personalized service and customer satisfaction. We recognize the flexibility needed to meet the ever-changing needs of our homebuyers. Our in-house design team is continually updating floor plans to make sure that our homes represent the best in new home design. We also offer a wide menu of personalized options on every home that we build. New Tradition Homes has become the regional leader in developing innovative and energy-efficient construction technologies. Through on-going research and dedication we continue to build homes that are healthier, more durable and more efficient than standard new homes. Every New Tradition Homes is ENERGY STAR Certified and comes with a HERS home energy rating score. This certification means that every home is third-party verified to meet our high standards. Our ongoing commitment is to provide homebuyers beautiful, better-built homes at an affordable price. We’ve built many homes and communities over the years, but we have not forgotten our roots – One family’s dedication to help other families build new traditions in a new home. We stand behind our homes and our communities and the high quality, enduring design and lasting value that they demonstrate.
Take the next steps toward your new home
Laurel Plan by New Tradition Homes
saved to favorites!
To see all the homes you’ve saved, visit the My Favorites section of your account.
Discover More Great Communities
Select additional listings for more information
We're preparing your brochure
You're now connected with New Tradition Homes. We'll send you more info soon.
The brochure will download automatically when ready.
Brochure downloaded successfully
Your brochure has been saved. You're now connected with New Tradition Homes, and we've emailed you a copy for your convenience.
The brochure will download automatically when ready.
Way to Go!
You’re connected with New Tradition Homes.
The best way to find out more is to visit the community yourself!