Lexington Plan
Ready to build
Merrillville IN 46410
Home by Accent Homes Inc.

The Price Range displayed reflects the base price of the homes built in this community.
You get to select from the many different types of homes built by this Builder and personalize your New Home with options and upgrades.
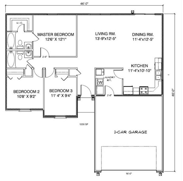
3 BR
2 BA
2 GR
1,200 SQ FT

Exterior 1/44
Overview
1 Story
1200 Sq Ft
2 Bathrooms
2 Car Garage
3 Bedrooms
Living Room
Single Family
Walk-In Closets
Lexington Plan Info
Accent Homes newest ranch plan designed for first home buyers who want it all. This home features a master suite with a private 3/4 bath and a walk it closet. The great room is open to the kitchen to accommodate a spacious atmosphere. Off the kitchen is a laundry room/mud room which leads to the 2 car garage. Price shown includes a $50,000 lot allowance and Tap/Permit Fees for Merrillville. This plan will be available in The Preserve when new street is completed. Get more info at; accenthomesnwi.com.
Floor plan center
View floor plan details for this property.
- Floor Plans
- Exterior Images
- Interior Images
- Other Media
Neighborhood
Sales office location
3764
Merrillville, IN 46410
3764 W 68th Ave Merrillville In 46410
Merrillville, IN 46410
888-471-9181
Please click Accent Homes Logo above to open our website to get directions and maps.
Nearby schools
Merrillville Community School
Elementary school. Grades KG to 4.
- Public school
- Teacher - student ratio: 1:14
- Students enrolled: 351
5901 Waite St, Merrillville, IN, 46410
219-650-5303
Elementary-Middle school. Grades 5 to 6.
- Public school
- Teacher - student ratio: 1:14
- Students enrolled: 855
1400 W 61st Ave, Merrillville, IN, 46410
219-650-5306
Middle school. Grades 7 to 8.
- Public school
- Teacher - student ratio: 1:14
- Students enrolled: 919
199 E 70th Ave, Merrillville, IN, 46410
219-650-5308
High school. Grades 9 to 12.
- Public school
- Teacher - student ratio: 1:16
- Students enrolled: 2042
276 E 68th Pl, Merrillville, IN, 46410
219-650-5307
Actual schools may vary. We recommend verifying with the local school district, the school assignment and enrollment process.
Amenities
Home details
Ready to build
Build the home of your dreams with the Lexington plan by selecting your favorite options. For the best selection, pick your lot in Lake and Porter Counties today!
Community & neighborhood
Community services & perks
- HOA fees: Unknown, please contact the builder
Neighborhood amenities
Van Tils Supermarket
1.21 miles away
7241 Taft St
Supermercado Mi Poblanita
1.73 miles away
7895 Taft St
The Hot Spot
1.87 miles away
5695 Cleveland St
Ruler Foods
2.45 miles away
6110 Broadway
Strack & Van Til
2.78 miles away
6001 Broadway
J L Bakery Consultants Inc
0.77 mile away
7025 Forest Ridge Dr
Angel Cakes LLC
2.42 miles away
1111 W 56th Ave
Cute As A Cupcake! Cupcakery & Bake Shop LLC
3.08 miles away
4067 W 92nd Pl
Meijer Bakery
3.11 miles away
611 E 81st Ave
Captain's House
0.75 mile away
2644 W 65th Pl
Toast & Jam
0.84 mile away
7311 Mallard Ln
Bill's Grill
0.94 mile away
7307 Forest Ridge Dr
Super Chinese Restaurant
1.21 miles away
7235 Taft St
Dairy Queen
1.24 miles away
7305 Taft St
Ms. Peaches Juice and Smoothie Bar
1.91 miles away
2290 W 81st Ave
Dunkin'
1.97 miles away
2050 W 81st Ave
Starbucks
2.60 miles away
725 W 81st Ave
Dunkin'
2.84 miles away
5775 Broadway
Lake Station Donuts Inc
2.86 miles away
5775 Broadway
MS Elle's Especially For You
0.90 mile away
5371 72nd Ave
Family Dollar
1.21 miles away
7241 Taft St
Lerin Johnson Bridal Hair & Makeup
1.38 miles away
2257 W 60th Dr
Family Dollar
1.70 miles away
5124 Pine Island Ct
We're Gorgeous Boutique
1.73 miles away
7871 Taft St
The Dawg House Pub
1.55 miles away
3790 W 80th Ln
Veterans' Cafe & Grill
1.69 miles away
7805 Taft St
Shipwreck Bar & Grill
2.45 miles away
840 S Broad St
R-Place
2.45 miles away
65 W 68th Pl
Karma Cigar Bar
2.53 miles away
850 W 81st Ave
Please note this information may vary. If you come across anything inaccurate, please contact us.
Accent Homes, Inc began in 1971 as F.O. Morin & Co., as an entity set up to handle real estate investments for Frank Morin, a real estate salesperson who specialized in new construction sales. In 1972, Mr. Morin asked his brothers, Rick and Dean to join him in a venture building new homes. The brothers started construction on their first home in the fall of 1972 on a lot on the edge of the Town Of DeMotte. The home was completed and promptly sold followed by another and another. The company was incorporated as Morin Bros. Inc and continued building homes around the DeMotte area until the first oil crisis in the mid 1970's stopped the flow of buyers from Lake and Porter counties from moving south.
The company had taken a lot in trade on a new house. The lot was located in a little known subdivision called Lakes of the Four Seasons. A speculative house was built on the lot and quickly sold. A new market had been discovered. For the balance of the 1970's the company built 40 to 60 homes per year in this newly discovered area.
In the early 1980's the Federal Reserve made radical policy changes which resulted in a devastating housing recession. The company struggled, as did all building companies, but survived. The situation created by the recession caused the brothers to split up the company and each work independently. The basic corporate structure was retained by Frank Morin and the name was changed to Accent Homes, Inc. The company struggled and survived until the market began to revive in the mid 80's.
The company’s dedication to providing high quality and affordable homes propelled them to the position of being the largest volume single family homebuilder in Northwest Indiana by the early 1990's. The company has been building 80 to 90 homes per year for the past several years and that volume promises to grow to over 100 homes per year.
Take the next steps toward your new home
Lexington Plan by Accent Homes Inc.
saved to favorites!
To see all the homes you’ve saved, visit the My Favorites section of your account.
Discover More Great Communities
Select additional listings for more information
We're preparing your brochure
You're now connected with Accent Homes Inc.. We'll send you more info soon.
The brochure will download automatically when ready.
Brochure downloaded successfully
Your brochure has been saved. You're now connected with Accent Homes Inc., and we've emailed you a copy for your convenience.
The brochure will download automatically when ready.
Way to Go!
You’re connected with Accent Homes Inc..
The best way to find out more is to visit the community yourself!