Lillie Plan
Ready to build
8672 Hope Farm Ln, Mechanicsville VA 23111
Home by Eagle Construction of VA, LLC
at Brunswick

Last updated 18 hours ago
The Price Range displayed reflects the base price of the homes built in this community.
You get to select from the many different types of homes built by this Builder and personalize your New Home with options and upgrades.
2 BR
2 BA
2 GR
1,692 SQ FT

Exterior 1/27
Overview
1 Story
1692 Sq Ft
2 Bathrooms
2 Bedrooms
2 Car Garage
Breakfast Area
Green Construction
Mud Room
Primary Bed Downstairs
Townhome
Walk-In Closets
Lillie Plan Info
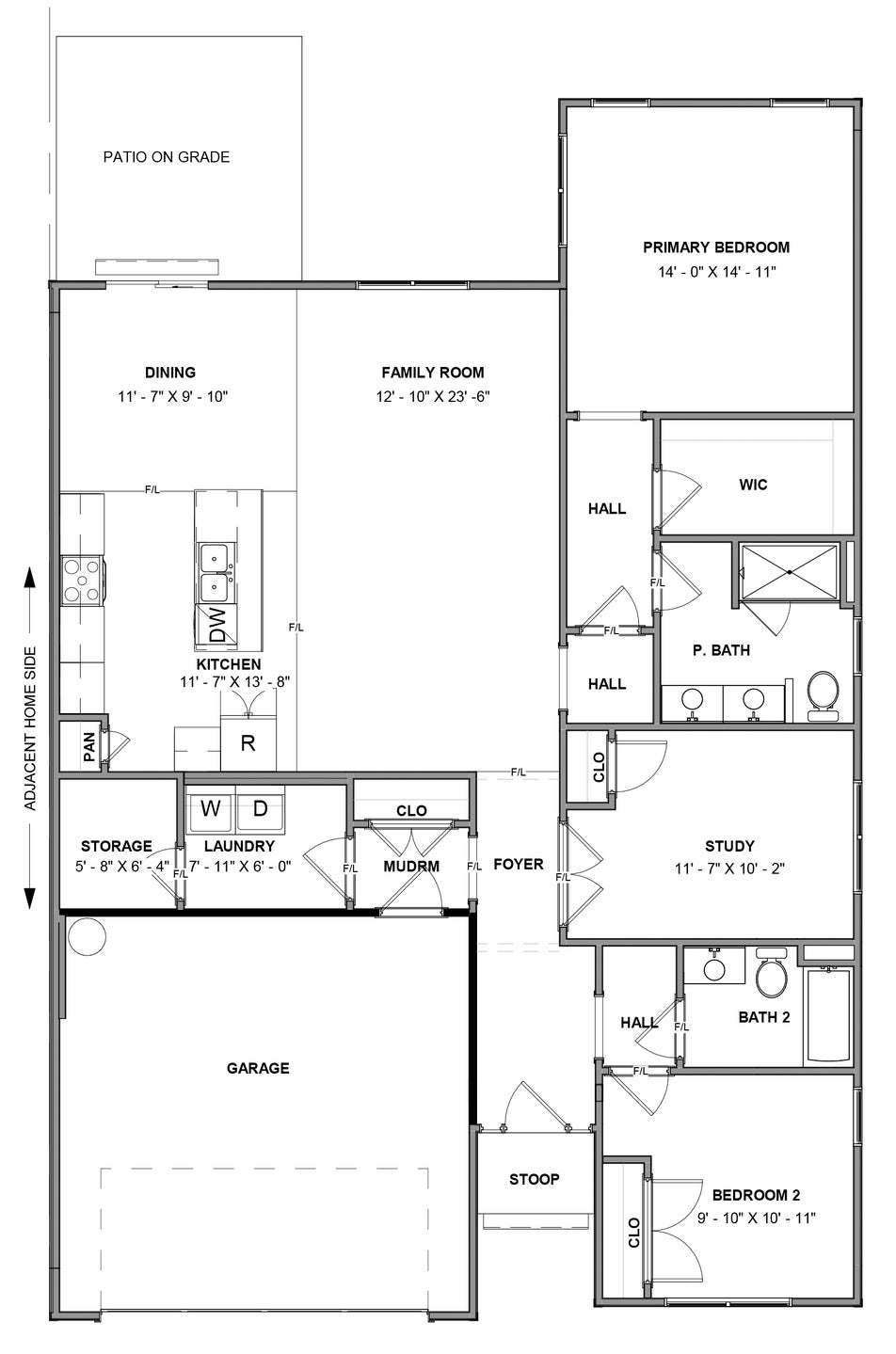
The Lillie is the one level townhome you've been looking for. Complete with 2-car garage, the Lillie provides just the right amount of space. Enter from your garage and into the laundry room and mud room, complete with an additional storage closet. A study with French doors provides the perfect space to set up your home office, play room for the grandkids, or anything that renews your energy. The open concept layout offers a kitchen with pantry and large island overlooking the dining area and family room, perfect for keeping everyone connected. Your primary bedroom is tucked down a hallway with a spacious primary bath and large walk-in closet. At the front of the home you'll find an additional bedroom and full bath.
Floor plan center
View floor plan details for this property.
- Floor Plans
- Exterior Images
- Interior Images
- Other Media
Explore custom options for this floor plan.
- Choose Option
- Include Features
Neighborhood
Community location & sales center
8672 Hope Farm Ln
Mechanicsville, VA 23111
8672 Hope Farm Ln
Mechanicsville, VA 23111
Nearby schools
Hanover County Public Schools
Elementary school. Grades PK to 5.
- Public school
- Teacher - student ratio: 1:12
- Students enrolled: 615
7425 Mech Elementary Dr, Mechanicsvlle, VA, 23111
804-723-3640
Middle school. Grades 6 to 8.
- Public school
- Teacher - student ratio: 1:14
- Students enrolled: 1131
9450 Atlee Station Rd, Mechanicsvlle, VA, 23116
804-723-2160
High school. Grades 9 to 12.
- Public school
- Teacher - student ratio: 1:15
- Students enrolled: 1526
9414 Atlee Station Rd, Mechanicsvlle, VA, 23116
804-723-2100
Actual schools may vary. We recommend verifying with the local school district, the school assignment and enrollment process.
Amenities
Home details
Ready to build
Build the home of your dreams with the Lillie plan by selecting your favorite options. For the best selection, pick your lot in Brunswick today!
Community & neighborhood
Community services & perks
- HOA fees: Unknown, please contact the builder
Neighborhood amenities
Walmart Supercenter
1.15 miles away
7430 Bell Creek Rd
Food Lion
1.26 miles away
8319 Bell Creek Rd
ALDI
1.48 miles away
7003 Mechanicsville Tnpk
Publix
1.48 miles away
6603 Mechanicsville Tpke
BJ's Wholesale Club
1.86 miles away
7260 Bell Creek Rd
Walmart Bakery
1.15 miles away
7430 Bell Creek Rd
Williams Bakery
1.46 miles away
8084 Mechanicsville Tpke
sweetFrog
2.07 miles away
7225 Bell Creek Rd
Williams Bakery
2.54 miles away
9502 Chamberlayne Rd
Lark Baking Co & Market
2.90 miles away
6102 Brashier Blvd
Pasta House Italian Ristorante
0.85 mile away
8196 Atlee Rd
More Than Greek
0.90 mile away
8161 Atlee Rd
The Ville
1.20 miles away
7526 Mechanicsville Tpke
Bruster's Real Ice Cream
1.22 miles away
8309 Bell Creek Rd
Bell Cafe
1.25 miles away
8319 Bell Creek Rd
Starbucks
1.21 miles away
8300 Bell Creek Rd
Bell Cafe
1.25 miles away
8319 Bell Creek Rd
Starbucks
1.40 miles away
7297 Battle Hill Dr
Starbucks
1.48 miles away
7325 Bell Creek Rd
Tropical Smoothie Cafe
1.70 miles away
7152 Mechanicsville Tpke
Claire's Inside Walmart
1.15 miles away
7430 Bell Creek Rd
Walmart Supercenter
1.15 miles away
7430 Bell Creek Rd
Logo Advantage
1.31 miles away
8007 Mechanicsville Tpke
Madi Savvy Style LLC
1.34 miles away
8324 Bell Creek Rd
Kohl's
1.53 miles away
7390 Bell Creek Rd
The Ville
1.20 miles away
7526 Mechanicsville Tpke
Sportspage Bar & Grille Mechanicsville
1.25 miles away
8319 Bell Creek Rd
Outback Steakhouse
1.35 miles away
7420 Bell Creek Rd
Applebee's Grill + Bar
1.47 miles away
7396 Bell Creek Rd
Gus' Italian Cafe & Sports Bar
1.65 miles away
7358 Bell Creek Rd
Please note this information may vary. If you come across anything inaccurate, please contact us.
There are no ordinary moments. Moments are winks in time that capture the magic of everyday life and bring us closer to the people, places and things that matter. Building homes doesn't start with plans, it begins with people - working together to create opportunities for life's moments to happen, and inspiring us to make the most of every one. At Eagle, we believe there are no ordinary moments, but countless extraordinary ones. Ones we inspire. Ones we create. Ones we share. At Eagle, we are committed to the craft, our culture, the community and above all, our customers. As one of Virginia's most trusted builders since 1984, our commitment is surpassed only by our passion for crafting experiences that transcend construction. We take pride and ownership in everything we do by:
Take the next steps toward your new home
Lillie Plan by Eagle Construction of VA, LLC
saved to favorites!
To see all the homes you’ve saved, visit the My Favorites section of your account.
Discover More Great Communities
Select additional listings for more information
We're preparing your brochure
You're now connected with Eagle Construction of VA, LLC. We'll send you more info soon.
The brochure will download automatically when ready.
Brochure downloaded successfully
Your brochure has been saved. You're now connected with Eagle Construction of VA, LLC, and we've emailed you a copy for your convenience.
The brochure will download automatically when ready.
Way to Go!
You’re connected with Eagle Construction of VA, LLC.
The best way to find out more is to visit the community yourself!