Livingston Plan
Ready to build
201 Lantern Lane, Milton DE 19968
Home by Fernmoor Homes

The Price Range displayed reflects the base price of the homes built in this community.
You get to select from the many different types of homes built by this Builder and personalize your New Home with options and upgrades.
3 BR
2.5 BA
2 GR
2,029 SQ FT

Elevation A (with optional screen porch) 1/8
Overview
1 Half Bathroom
2 Bathrooms
2 Car Garage
2 Stories
2029 Sq Ft
3 Bedrooms
Basement
Dining Room
Living Room
Loft
Porch
Primary Bed Downstairs
Single Family
Study
Walk-In Closets
Livingston Plan Info
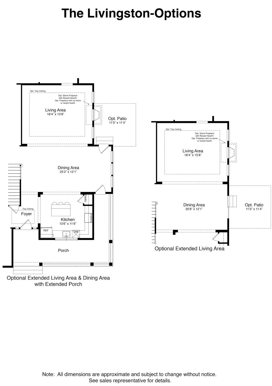
Wishing for your bedroom to be on the first-floor but don’t want to give up the look and feel of a two-story home? You came to the right place. The Livingston allows for everyday living on the first floor, (including an Owner’s Suite with private bath) with two Bedrooms for guests or children on the second floor IN ADDITION to a Loft and unfinished attic storage space. A corner Kitchen with island opens to separate Dining and Living Rooms. Your side yard is accessed by a door from the Dining Room, and you can eventually do a sun room, screened porch or patio. Let’s not forget the Study and 2-car Rear Garage accessed via the Laundry Room and the Full Basement. The Livingston combines the best of one- story and two-story living. Master Suite on the first floor 9’ first floor ceilings Full basement Natural gas appliances Energy Star Certified top freezer refrigerator Energy Star Certified built-in dishwasher 30” free-standing gas range Hardwood flooring in foyer with stain-resistant carpet throughout 42” Maple cabinetry and granite countertops in kitchen Cultured marble bath vanity tops Professional landscaping with irrigated flower boxes Maintenance-free vinyl siding with stone accents 30-year architectural shingles 92+ efficiency natural gas furnace 14.5 SEER A/C unit Energy Star Certified programmable thermostat
Floor plan center
View floor plan details for this property.
- Floor Plans
- Exterior Images
- Interior Images
- Other Media
Neighborhood

Community location & sales center
201 Lantern Lane
Milton, DE 19968
201 Lantern Lane
Milton, DE 19968
888-315-2257
Heritage Creek is located in Sussex County, Delaware, between Routes 1, 9 and 113. We are just 12 miles from Lewes, 16 miles from Rehoboth, and 32 miles from Dover.
Schools near Heritage Creek
- Cape Henlopen School District
Actual schools may vary. Contact the builder for more information.
- Lydia Black Cannon Museum
- Milton Theatre (restored)
- Milton Historical Society
Amenities
Each one of our Classic and Heritage series single-family homes and attached Carriage series homes is built with your wants and needs in mind. Newly designed homes at Heritage Creek include features such as full basements, first-floor owner’s suites, kitchens with granite countertops, natural gas cooking and heating and more.
Heritage Creek’s enviable location, charm, clubhouse with pool, fitness center and more set the stage for a lifestyle of year-round recreation and leisure.
Winner of 5 Regal Awards from the Home Builders’ Association of Delaware: Best Multi-Family Home 2,001-3,000 Sq. Ft.-the Hancock, Best Interior Merchandising-Clubhouse, Best Exterior Merchandising-Clubhouse, Best Home Design-the Jefferson, Best Single-Family Home-the Jefferson. More info about Heritage Creek
Home details
Ready to build
Build the home of your dreams with the Livingston plan by selecting your favorite options. For the best selection, pick your lot in Heritage Creek today!
Community & neighborhood
Local points of interest
- Dogfish Head Craft Brewery
- Governors Walk Park
- Milton Memorial Park
- Prime Hook National Wildlife Reserve
- Prime Hook National Wildlife Refuge (lecture programs, bird walks and educational activities)
- Cape Henlopen State Park (camping, fishing, bird watching)
- Trap Pond State Park (boating, trails)
- Redden State Forest (hunting, trails)
- The Nature Conservancy Ponders Tract (wildlife watching)
- Delaware Seashore State Park (right on the beach, fishing, trails, boating)
- Tour de Sussex (cycling event)
- Tanger Outlets Rehoboth Beach
- Midway Par 3
- The Rookery
- Cape Henlopen State Park
- Heritage Creek is located in Sussex County, Delaware, between Routes 1, 9 and 113.
- Just 12 miles from Lewes
- 16 miles from Rehoboth Beach
- 16 Mile Brewery
- Fenwick Wine Cellars
- Nassau Valley Vineyards
- Eating Rehoboth/Eating Lewes (weekly walking food tours through Rehoboth/Lewes)
- 32 miles from Dover
- Breakwater Harbor/Harbor of Refuge
- Bethany Beach
- Broadkill Beach
- Indian River Bay
- Dewey Beach
- South Delaware Lighthouse Tour
- Mid-Atlantic Symphony Orchestra
- Coastal Concerts
- Rehoboth Beach Bandstand
- The Freeman Stage
- Rehoboth Beach Film Society (indie and old films, member-based)
- Movies at Midway (contemporary movies)
- The Clayton Theatre (single-screen)
- Clear Space Theatre Company (live theatre)
- Short Drive to Delaware Beaches
- Minutes from downtown Milton
- Dover Downs Hotel & Casino
- Harrington Raceway & Casino
- Baywood Greens
- Bear Trap Dunes
- Hooper’s Landing
- Marina
- Beach
Social activities
- Rehoboth Beach Jazz Festival
- Rehoboth Beach Independent Film Festival
- Sea Witch Festival
- Farmer & Foodie Festival
- Boast the Coast Maritime Festival
- Decorating Delmarva
- Gathering Area with TV’s
- Card & Game Rooms
- Multi-purpose tables for cards/games/parties/meetings
- Billiards with TV’s
- Bar with TV
- Swimming Pool and Outdoor BBQ with Fireplace
- Club House
Health and fitness
- Fitness Center with TV’s
- Golf Course
- Pool
- Trails
Community services & perks
- HOA fees: Unknown, please contact the builder
- Clubhouse
- Park
Neighborhood amenities
Milton Delux
1.14 miles away
116 Magnolia St
Food Lion
1.96 miles away
110 Broadkill Rd
Super Tienda Xela Corp
6.30 miles away
11 N King St
Walmart Supercenter
6.73 miles away
4 College Park Ln
Redner's Warehouse Markets
6.79 miles away
515 College Park Ln
Old World Bread
6.48 miles away
32191 Nassau Rd
Ortiz Bakery
6.64 miles away
113 Lewes Georgetown Hwy
Walmart Bakery
6.73 miles away
4 College Park Ln
Little Brick Cakery
6.99 miles away
32806 Ocean Reach Dr
Cantina Ultima
1.06 miles away
102 Federal St
Modern Mixture Too
1.06 miles away
102 Federal St
Irish Eyes Pub & Restaurant
1.10 miles away
105 Union St
Tequila Real Mexican Grill
1.15 miles away
122 Mulberry St
King's Homemade Ice Cream
1.25 miles away
302 Union St
Dunkin'
6.76 miles away
20550 Dupont Blvd
Starbucks
6.79 miles away
201 College Park Ln
Swell Joe Coffee Co LLC
6.99 miles away
17382 Coastal Hwy
Starbucks
9.00 miles away
18578 Coastal Hwy
Notting Hill Coffee
9.03 miles away
124 2nd St
Family Dollar
1.88 miles away
122 Broadkill Rd
Rainbow
5.11 miles away
16192 Coastal Hwy
Southern Style Clothing
6.50 miles away
104 N Race St
Cato Fashions
6.64 miles away
6 College Park Ln
It's Fashion
6.64 miles away
6 College Park Ln
Irish Eyes Pub & Restaurant
1.10 miles away
105 Union St
Hookahzz LLC
5.11 miles away
16192 Coastal Hwy
the Greene Turtle Sports Bar & Grille
7.33 miles away
17388 N Village Main Blvd
FISH ON
7.39 miles away
17300 N Village Main Blvd
One 13 Tavern
8.01 miles away
12327 Dupont Blvd
Please note this information may vary. If you come across anything inaccurate, please contact us.
Whether close to the city for easy commuting or near the beach for coastal living, Fernmoor Homes has a location for you. We build in Central and Southern New Jersey, Pennsylvania and Southern Delaware, areas rich with interstate highways, history, entertainment, shopping, dining and leisure activities. In NewJersey and Delaware, the Atlantic Ocean and its beaches provide a much needed respite from the hot summers. But don’t call it “the shore” in our Delaware communities—they prefer “the beach”.In Chester County, Pennsylvania enjoy a County rich in History and centrally located to King of Prussia, Philadelphia and Lancaster, PA. No matter where you choose, you will find the same term: outstanding. As in, outstanding value built into every Fernmoor home or apartment. We include more options and innovative floor plans as standard, allowing you to get the best for the best price.With more than 30 years of experience, Jeffrey Fernbach, President of Fernmoor Homes, leads a team of seasoned professionals that understand a home is more than bricks and beams; it is the start of a new life adventure and a place from which to make new memories. He and his team also know a community is more than a collection of homes; it is a gathering place for neighbors, friends and family. As a family-owned company, Fernmoor Homes is committed to our homeowners and rental residents. Because we are family-owned, we will work with our home buyers to meet their needs in a new home, even if it is different from what is on our standard floor plan. We are not a cookie-cutter builder who won’t listen to your ideas. With this in mind, Fernmoor Homes provides innovative living choices across New Jersey and Delaware, from single-family homes, townhomes and condominiums to active-adult communities and luxury rentals. We have received awards from the Shore Builders’ League of New Jersey, the New Jersey Builders’ Association, the Home Builders’ Association of Delaware. We can’t wait to work with you!
Take the next steps toward your new home
Livingston Plan by Fernmoor Homes
saved to favorites!
To see all the homes you’ve saved, visit the My Favorites section of your account.
Discover More Great Communities
Select additional listings for more information
We're preparing your brochure
You're now connected with Fernmoor Homes. We'll send you more info soon.
The brochure will download automatically when ready.
Brochure downloaded successfully
Your brochure has been saved. You're now connected with Fernmoor Homes, and we've emailed you a copy for your convenience.
The brochure will download automatically when ready.
Way to Go!
You’re connected with Fernmoor Homes.
The best way to find out more is to visit the community yourself!