Madison Plan
Ready to build
Panama City Beach FL 32413
Home by Kolter Homes

Last updated 2 days ago
The Price Range displayed reflects the base price of the homes built in this community.
You get to select from the many different types of homes built by this Builder and personalize your New Home with options and upgrades.
3 BR
3 BA
2 GR
2,281 SQ FT

Exterior 1/37
Overview
1 Story
2 Car Garage
2281 Sq Ft
3 Bathrooms
3 Bedrooms
Single Family
Study
Madison Plan Info
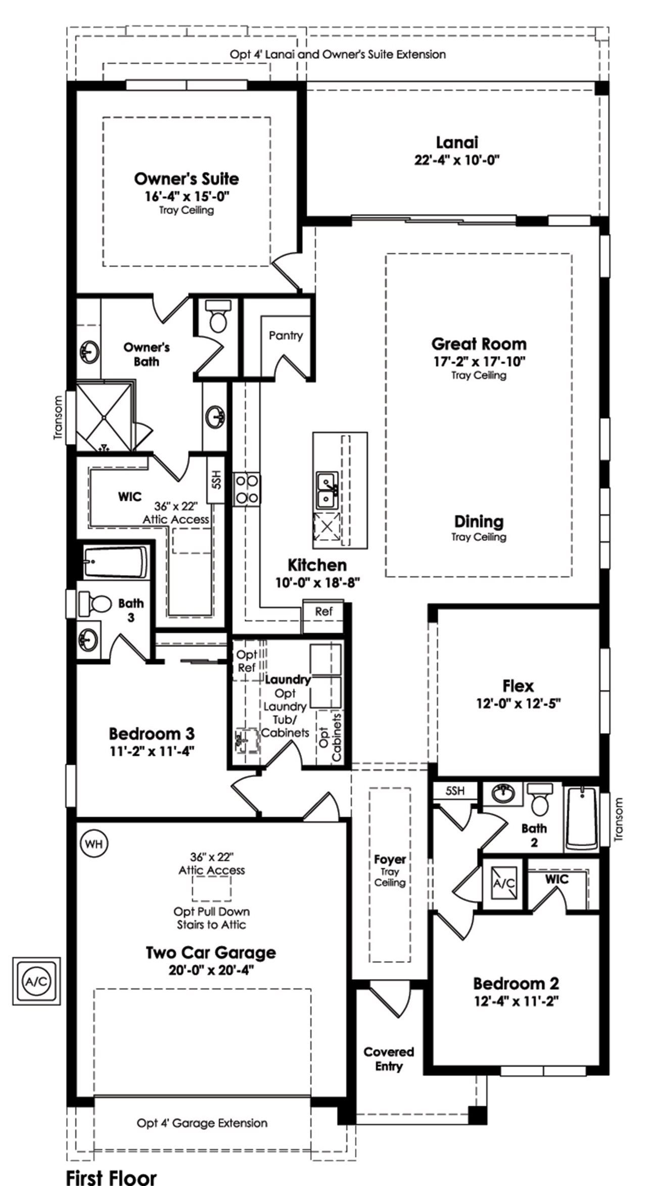
Flexibility is core to the layout this one-story, 3-Bedroom home. The centrally located island Kitchen anchors the Madison, and the Great Room, Dining area and Flex space can serve both casual and formal living. One example is to utilize the Flex space as a formal Dining Room, allowing you to expand the Great Room and use the Dining area for cards, games or billiards, and add an optional fireplace. The secondary bedrooms are located in the front of the Madison, with the Owner’s Suite comfortably tucked off the Great Room in the rear. Highlights of this sanctuary include a coffered ceiling, split vanities, and wrap-around Walk-In Closet that gives you the option to add a door from your Closet directly into the Laundry. You can personalize the Madison floorplan with structural options that include nine different exterior choices; Sunroom; second-floor Bonus Room variations; Fitness/Study or Bedroom 4 in lieu of Flex; In-Law Suite or second Owner’s Suite in lieu of Flex & Bedroom 2. To learn about all the ways you can have this home built around you, contact a Salt Grass at Ward Creek New Home Guide.
Floor plan center
View floor plan details for this property.
- Floor Plans
- Exterior Images
- Interior Images
- Other Media
Explore custom options for this floor plan.
- Choose Option
- Include Features
Neighborhood
Community location & sales center
573 Millbridge Dr
Panama City Beach, FL 32413
573 Millbridge Dr
Panama City Beach, FL 32413
888-712-3606
Schools near Salt Grass at Ward Creek
- Bay District Schools
Actual schools may vary. Contact the builder for more information.
Amenities
Home details
Ready to build
Build the home of your dreams with the Madison plan by selecting your favorite options. For the best selection, pick your lot in Salt Grass at Ward Creek today!
Community & neighborhood
Health and fitness
- Tennis
- Pool
- Volleyball
- Basketball
Community services & perks
- HOA fees: Unknown, please contact the builder
Kolter Homes offers new homes buyers more than two decades of experience creating incredible homes and lifestyles throughout the Southeast. Our team of experienced professionals is committed to delivering Kolter Homes’ mission of “Creating Better Communities.” We know we are not just building a house, but a lifestyle, and we start by building in the most sought-after locations. We offer exceptional amenities paired with the natural features and benefits of the area, be they mountains, lakes, beaches, shopping, culture or work opportunities. We then enable homebuyers to create truly personalized homes through our inspiring design galleries. With unparalleled finish choices and personalized options, each home is unique to its owners, and built with an eye to the future using healthy energy-efficient construction techniques, materials, products and standards that create lasting value and a better home.
Take the next steps toward your new home
Madison Plan by Kolter Homes
saved to favorites!
To see all the homes you’ve saved, visit the My Favorites section of your account.
Discover More Great Communities
Select additional listings for more information
We're preparing your brochure
You're now connected with Kolter Homes. We'll send you more info soon.
The brochure will download automatically when ready.
Brochure downloaded successfully
Your brochure has been saved. You're now connected with Kolter Homes, and we've emailed you a copy for your convenience.
The brochure will download automatically when ready.
Way to Go!
You’re connected with Kolter Homes.
The best way to find out more is to visit the community yourself!