Montarbor Plan
Ready to build
Peyton CO 80831
Home by Campbell Homes

The Price Range displayed reflects the base price of the homes built in this community.
You get to select from the many different types of homes built by this Builder and personalize your New Home with options and upgrades.
5 BR
3.5 BA
2-3 GR
3,845 SQ FT

The Montarbor 1/21
Special offers
Explore the latest promotions at Meridian Ranch. Contact Campbell Homes to learn more!
Ground-up New Build - Outdoor Living and Flex Cash!
Quick Move-in Homes - $50,000 Total Buyer Credits including Flex Cash!
Overview
1 Half Bathroom
2 Car Garage
2 Stories
3 Bathrooms
3845 Sq Ft
5 Bedrooms
Basement
Bonus Room
Dining Room
Fireplaces
Game Room
Living Room
Loft
Porch
Primary Bed Upstairs
Single Family
Study
Vaulted Ceiling
Walk-In Closets
Montarbor Plan Info
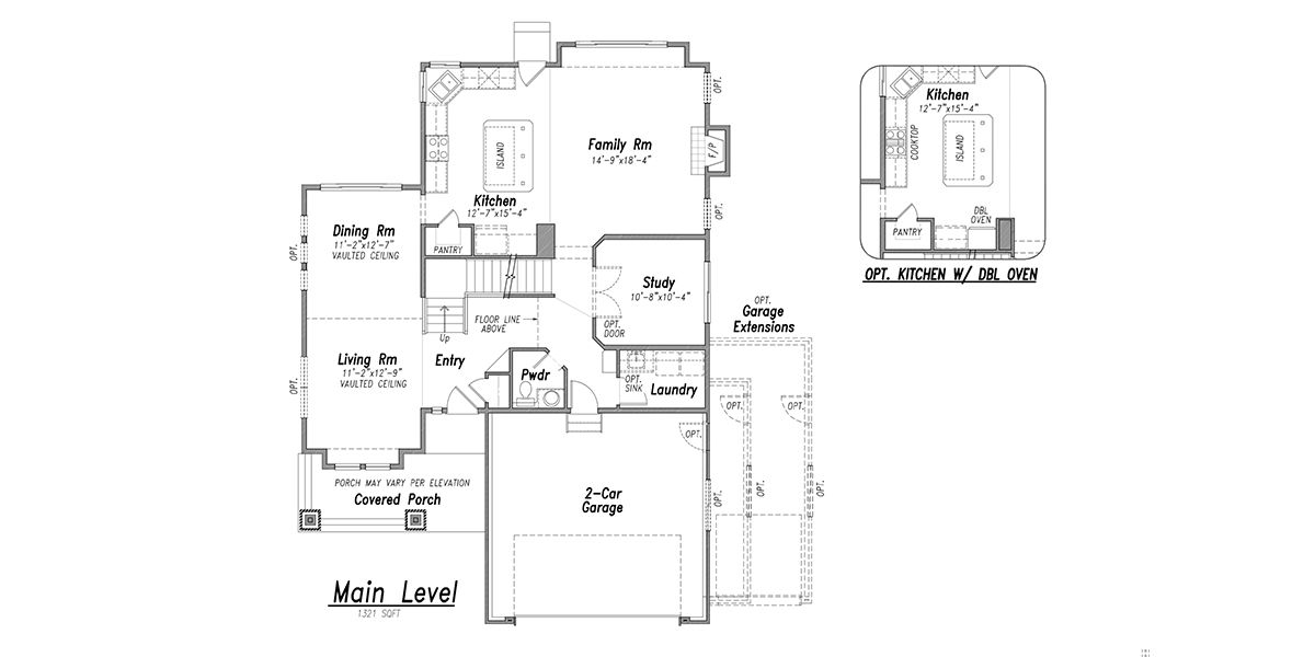
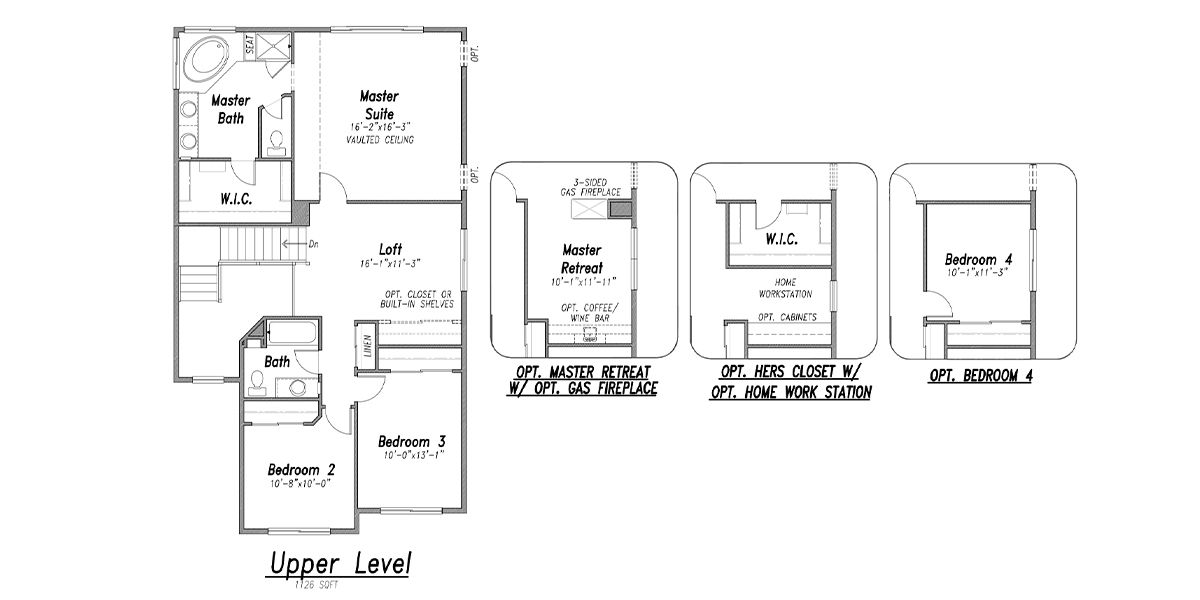
Vaulted ceilings in the living and dining room open up the space the second you walk in the door. As you walk to the back of the home, you pass a study with optional French doors and a convenient 1/2 bath. In the back of the home the spacious kitchen is open to the large family room with gas fireplace and access and to backyard. Upstairs the master suite also has vaulted ceilings and a luxurious bath. The loft can remain as standard or you have the option of making it a bedroom, additional master closet space and a workstation, or even a master retreat with a 3-sided fireplace and coffee or wine bar! In the finished basement there are two more bedrooms, each with walk-in closets, plus a full bath, and plenty of space for exercising or entertaining in the rec rooms. Dream the dream, because it's all here for you with plenty of options to make it your own.
Floor plan center
View floor plan details for this property.
- Floor Plans
- Exterior Images
- Interior Images
- Other Media
Neighborhood
Community location & sales center
13070 Monument Vista Drive
Peyton, CO 80831
13070 Monument Vista Drive
Peyton, CO 80831
888-868-8150
From I-25, take exit 149. Go east on Woodmen Rd; past Powers Blvd; turn left on Meridian Rd; right on Rex Rd; right on Rolling Ranch Dr.; Right on Monument Vista Dr.; Home is on the corner.S
Nearby schools
Falcon School District No. 49
Elementary school. Grades PK to 5.
- Public school
- Teacher - student ratio: 1:15
- Students enrolled: 680
10480 Rainbow Bridge Dr, Peyton, CO, 80831
719-494-2909
Middle school. Grades 6 to 8.
- Public school
- Teacher - student ratio: 1:18
- Students enrolled: 937
9755 Towner Ave, Peyton, CO, 80831
719-495-5232
High school. Grades 9 to 12.
- Public school
- Teacher - student ratio: 1:22
- Students enrolled: 1248
10255 Lambert Rd, Peyton, CO, 80831
719-495-5520
Actual schools may vary. We recommend verifying with the local school district, the school assignment and enrollment process.
Amenities
Home details
Ready to build
Build the home of your dreams with the Montarbor plan by selecting your favorite options. For the best selection, pick your lot in Meridian Ranch today!
Community & neighborhood
Local points of interest
- The Shops at Meridian Ranch
- Antler Creek Golf Course
- Falcon Regional Park
- Safeway
- St. Francis Medical
- High Prairie Library
- Views
- Pond
- GolfCartPath/Access
- MountainViews
Social activities
- Club House
- EventLawn
- FirePit
- OutdoorPatioWithFirepit
Health and fitness
- Meridian Ranch Recreation Center
- Golf Course
- Pool
- Trails
- FitnessCenter
- HeatedOutdoorPool/Spa
- HotTub
- IndoorPool
- LapPool
- OutdoorPool
Community services & perks
- HOA fees: Unknown, please contact the builder
- The Shops at Meridian Ranch
- Playground
- Park
- Community Center
- DogPark
- PlayLawn
- SplashPad
- Waterpark
Neighborhood amenities
Safeway
3.61 miles away
7655 McLaughlin Rd
Walmart Supercenter
3.95 miles away
11550 Meridian Market Vw
Walmart Supercenter
8.31 miles away
5550 E Woodmen Rd
Garden of the Gods Catering and Events
8.68 miles away
9633 Prominent Pt
King Soopers
9.05 miles away
6030 Stetson Hills Blvd
T Cakes
1.01 miles away
12362 Grand Teton Dr
Reliv Independent Distributors
3.40 miles away
9580 Bennison Ter
Walmart Bakery
3.95 miles away
11550 Meridian Market Vw
Walmart Bakery
8.31 miles away
5550 E Woodmen Rd
The Good Vibe Company
1.01 miles away
6985 N Meridian Rd
Latigo Trails Equestrian
1.80 miles away
13710 Halleluiah Trl
Bad Ass Coffee of Hawaii
1.81 miles away
11910 Tourmaline Dr
Bad Ass Coffee of Hawaii
1.81 miles away
11910 Tourmaline Dr
Starbucks
3.61 miles away
7655 McLaughlin Rd
Dutch Bros Coffee
3.77 miles away
7510 Falcon Market Pl
Bare Beans Espresso
4.20 miles away
7110 Old Meridian Rd
Starbucks
5.99 miles away
8193 Carmela Grv
Walmart Supercenter
3.95 miles away
11550 Meridian Market Vw
Erbn Boutique
5.94 miles away
7047 Jagged Rock Cir
Ballerina Boutique
6.11 miles away
7230 Brentwood Dr
Annie's Skin Care Boutique
7.13 miles away
5925 East Ln
Walmart Supercenter
8.31 miles away
5550 E Woodmen Rd
Purple Toad
1.93 miles away
11870 Stapleton Dr
South Forty Saloon
3.08 miles away
6735 Main St
The Bar
3.70 miles away
7685 McLaughlin Rd
The Chicken Coop
6.24 miles away
11627 Black Forest Rd
Birdcall-Colorado Springs
8.44 miles away
6510 Tuff Blvd
Please note this information may vary. If you come across anything inaccurate, please contact us.
A lot of builders talk about “quality construction” as if it were an amenity, but at Campbell Homes, we see it differently. To Campbell Homes, quality is simply doing the right thing every time out, no matter what the project. It means designing the best plans, investing in the best building materials, and hiring the best team of craftsmen to see the job through. No exceptions. No shortcuts. Locally owned by Randy Deming, Mike Hausman, and Mel Shade, Campbell Homes has been shaping the future of Colorado Springs since 1965 when founded by Jon Campbell. As natives of this community, Campbell Homes promises to take your home as seriously as you do! Named “Builder of the Year” three times by the Housing and Building Association of Colorado Springs for continued service and contributions to our community and commitments to the housing industry, Campbell Homes prides itself on being a good neighbor.
Take the next steps toward your new home
Montarbor Plan by Campbell Homes
saved to favorites!
To see all the homes you’ve saved, visit the My Favorites section of your account.
Discover More Great Communities
Select additional listings for more information
We're preparing your brochure
You're now connected with Campbell Homes. We'll send you more info soon.
The brochure will download automatically when ready.
Brochure downloaded successfully
Your brochure has been saved. You're now connected with Campbell Homes, and we've emailed you a copy for your convenience.
The brochure will download automatically when ready.
Way to Go!
You’re connected with Campbell Homes.
The best way to find out more is to visit the community yourself!