K. Hovnanian's® Four Seasons at Sandstone
Morse
2196 Myla Way, Elyria, OH, 44035
by K. Hovnanian's® Four Seasons 65 TrustBuilder reviews
From $491,490 This is the starting price for this plan and is subject to change.
- 2 Beds
- 2.5 Baths
- 3 Car garage
- 2,311 Sq Ft
Overview
Floor plan features
- 1 Half Bathroom
- 1 Story
- Single Family
Floor plan description
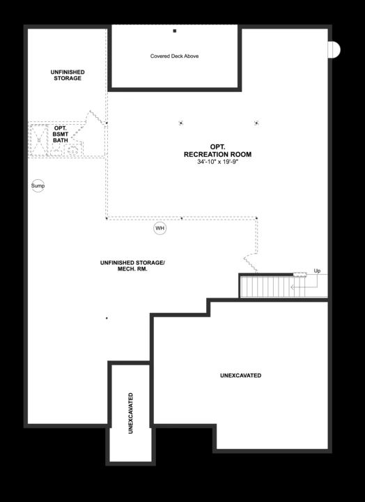
Welcoming foyer leading to half bath and private home office with barn doors. HovHall with convenient access to laundry room and 3 car garage. Spacious great room with vaulted ceiling and large windows. Kitchen with corner walk-in pantry and large island. Dining area with sliding door to covered deck. Secluded primary suite with large sitting room. Primary bath with large seated shower and walk-in closet. Oversized unfinished basement can be fitted with an optional rec room and full bath.
Explore this home
Explore custom options for this floor plan.
Special offers
Explore the latest promotions at K. Hovnanian's® Four Seasons at Sandstone. to learn more!
Unlock Exclusive Incentives Today!
Take advantage of exclusive incentives – available for a limited time!
Community highlights
Community amenities
Billiards
Club House
Dog Park
Fire Pit
Fitness Center
Game Room
Outdoor Pool
Pickleball
Shuffleboard
Trails
About K. Hovnanian's® Four Seasons at Sandstone
Welcome to K. Hovnanian's® Four Seasons at Sandstone, a resort-style 55+ community in Amherst Township, OH. Experience a luxury, low-maintenance lifestyle in our beautiful single-family new-construction homes, offering up to 3 beds, 3 baths, and 2,162 sq. ft. Enjoy endless opportunities for relaxation, recreation, and socializing, with incredible amenities, including a clubhouse, pool, fitness center, and more. This 55-and-over active lifestyle community in Amherst Township features luxury in every element. Stroll along the tranquil walking paths as you bring your furry friend to the dog park, get your workout in at the fitness center, or challenge your neighbors to a round of pickleball or shuffleboard. Relax poolside at the cabana or gather with friends at the clubhouse and share a meal ...
Neighborhood
Community location & sales center
2196 Myla Way Elyria, OH 44035
2196 Myla Way Elyria, OH 44035
888-886-5642
Amenities
Community & neighborhood
Social activities
- Club House
- Billiards
- FirePit
- GameRoom
- Shuffleboard
Health and fitness
- Trails
- FitnessCenter
- OutdoorPool
- Pickleball
Community services & perks
- DogPark
Neighborhood amenities
Fowl's Farm Market
1.75 miles away
43655 Telegraph Rd
Piggy's Main Street Market
2.47 miles away
136 E Main St
Giant Eagle
2.49 miles away
2201 Kresge Dr
ALDI
2.51 miles away
2241 Kresge Dr
Save-A-Lot
2.58 miles away
1965 Cooper Foster Park Rd
The Hive Cake Studio
0.69 mile away
7664 Leavitt Rd
Kiedrowski's Bakery
1.59 miles away
46388 Telegraph Rd
Mama Jo Homestyle Pies
2.55 miles away
1969 Cooper Foster Park Rd
Kiedrowskis Bakery
2.67 miles away
2267 Cooper Foster Park Rd
Kiedrowski's Simply Delicious Bakery
2.67 miles away
2267 Cooper Foster Park Rd
Moosehead BBQ Grill
0.69 mile away
7660 Leavitt Rd
Chop Shop
0.82 mile away
7505 Leavitt Rd
Dairy Queen Grill & Chill
0.85 mile away
7502 Leavitt Rd
On the Rocks LLC
1.10 miles away
8701 Leavitt Rd
Big VS Ice Cream
1.14 miles away
46045 Telegraph Rd
Starbucks
1.69 miles away
46402 Ohio Turnpike Plz
Arabica Coffee Bistro
1.81 miles away
254 Park Ave
Dunkin'
2.76 miles away
5494 Leavitt Rd
BIGGBY Coffee
2.87 miles away
5320 Leavitt Rd
Pulp Juice and Smoothie Bar
2.88 miles away
5305 Leavitt Rd
Molnar Outdoor
1.68 miles away
9191 Leavitt Rd
Januzzi-Shoes For You
2.06 miles away
207 N Leavitt Rd
Pediatric Footwear
2.06 miles away
207 N Leavitt Rd
Sports Stop Sportswear
2.06 miles away
450 Washington St
Lularoe Rebekah Leigh
2.39 miles away
43620 Middle Ridge Rd
Rc's Brewhouse
1.38 miles away
1243 Park Ave
Captain's Club
1.69 miles away
232L Park Ave
Wild Bill's Whiskey Still
1.69 miles away
W 518 W Main St
The Brew Kettle
1.83 miles away
300 Church St
Park Bar and Grille
1.85 miles away
249 Park Ave
Please note this information may vary. If you come across anything inaccurate, please contact us.
Builder details
K. Hovnanian's® Four Seasons

4.3 out of 5 stars
65 Reviews in the Cleveland Area
VIEW RATINGS & REVIEWSK. Hovnanian® Homes is a nationally recognized homebuilder that has been committed to excellence since 1959. To succeed for 50 years as a company, it helps to have a clear vision of what you stand for. Kevork S. Hovnanian had that vision when he created his homebuilding company. Today, K. Hovnanian® Homes® is still going strong by adhering to the principles set in place by its founder. He envisioned a homebuilding company whose homes would provide lasting advantages for years to come.
TrustBuilder reviews
Take the next steps toward your new home
This listing's information was verified with the builder for accuracy 1 day ago
Morse Plan by K. Hovnanian's® Four Seasons
saved to favorites!
To see all the homes you’ve saved, visit the My Favorites section of your account.
Discover More Great Communities
Select additional listings for more information
We're preparing your brochure
You're now connected with K. Hovnanian's® Four Seasons. We'll send you more info soon.
The brochure will download automatically when ready.
Brochure downloaded successfully
Your brochure has been saved. You're now connected with K. Hovnanian's® Four Seasons, and we've emailed you a copy for your convenience.
The brochure will download automatically when ready.
Way to Go!
You’re connected with K. Hovnanian's® Four Seasons.
The best way to find out more is to visit the community yourself!