Nantucket Plan
Ready to build
111 Singh Boulevard, South Lyon MI 48178
Home by Singh Homes

The Price Range displayed reflects the base price of the homes built in this community.
You get to select from the many different types of homes built by this Builder and personalize your New Home with options and upgrades.
4 BR
2.5 BA
2 GR
2,794 SQ FT

Nantucket - Elevation E 1/18
Overview
1 Half Bathroom
2 Bathrooms
2 Car Garage
2 Stories
2794 Sq Ft
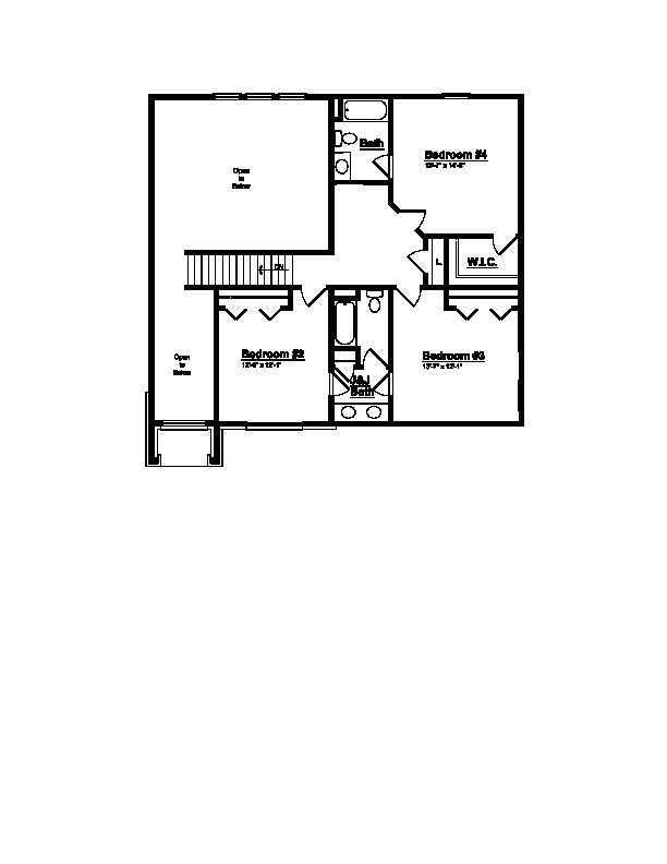
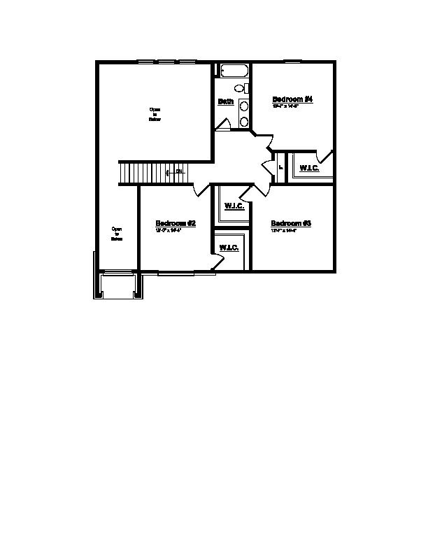
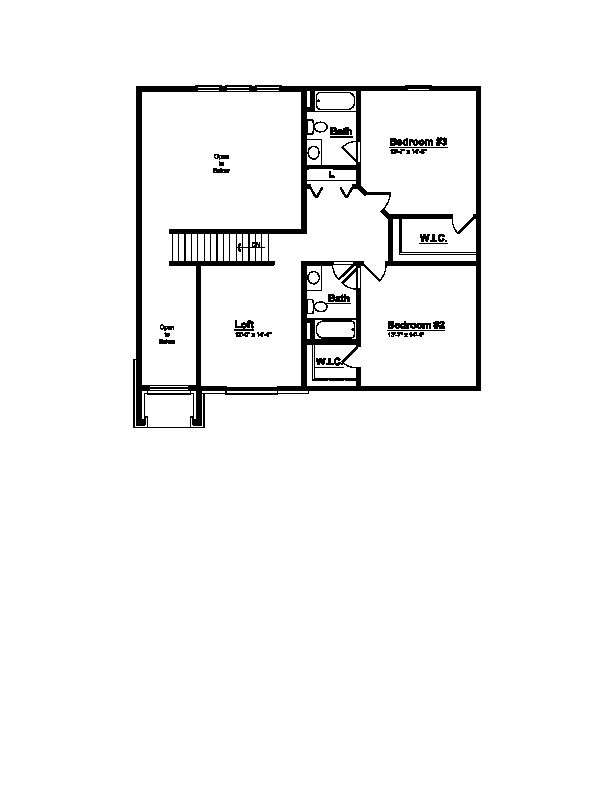
4 Bedrooms
Basement
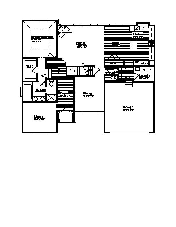
Breakfast Area
Dining Room
Family Room
Fireplaces
Primary Bed Downstairs
Single Family
Study
Vaulted Ceiling
Walk-In Closets
Nantucket Plan Info
This spacious Cape Cod home features the finest in design qualities. The main floor, featuring a beautiful owner’s suite with relaxing soaking tub, separate shower and double sink vanity is just the beginning to the wonderful life you will enjoy in this exquisite home. The dramatic two-story family room with expansive windows bringing nature into your home is the perfect space for gatherings. And, for those special dinner gatherings the elegant dining room captures the moment. The private den located off of the grand foyer is a necessity well-served in the Nantucket design. Extra bedrooms? Plenty, with three spacious bedrooms and private bath on the second level.
Floor plan center
View floor plan details for this property.
- Floor Plans
- Exterior Images
- Interior Images
- Other Media
Neighborhood
Community location & sales center
111 Singh Boulevard
South Lyon, MI 48178
111 Singh Boulevard
South Lyon, MI 48178
888-331-1308
On 10 Mile Road, west of Pontiac Trail. From I-96 exit at Kent Lake Rd and travel south to Silver Lake Rd. Turn left and then immediately turn right at the traffic light onto Pontiac Trail. Continue south into downtown South Lyon. At 10 Mile Rd turn right (west) and continue 1 mile to Charleston Park on the right (north) side of 10 Mile Rd.
Nearby schools
South Lyon Community Schools
Middle school. Grades 6 to 8.
- Public school
- Teacher - student ratio: 1:17
- Students enrolled: 865
62500 9 Mile Rd, South Lyon, MI, 48178
248-573-8600
High school. Grades 9 to 12.
- Public school
- Teacher - student ratio: 1:17
- Students enrolled: 1293
1000 N Lafayette St, South Lyon, MI, 48178
248-573-8150
Actual schools may vary. We recommend verifying with the local school district, the school assignment and enrollment process.
Amenities
Home details
Ready to build
Build the home of your dreams with the Nantucket plan by selecting your favorite options. For the best selection, pick your lot in Charleston Park II today!
Community & neighborhood
Local points of interest
- Kensington Park
Utilities
- Electric DTE
- Gas Consumers Energy
- Water South Lyon Water Department
Health and fitness
- Rails to Trails, South Lyon
- Trails
Community services & perks
- HOA fees: Unknown, please contact the builder
Neighborhood amenities
Busch's Fresh Food Market
1.27 miles away
22385 Pontiac Trl
Kroger
2.16 miles away
20730 Pontiac Trl
Gki Foods
2.25 miles away
7926 Lochlin Dr
Walmart Supercenter
4.44 miles away
30729 Lyon Center Dr E
Kroger
5.23 miles away
51847 10 Mile Rd
South Lyon Village Bakery
0.66 mile away
222 S Lafayette St
Greener Pastures Market
1.89 miles away
21202 Pontiac Trl
Kroger Bakery
2.16 miles away
20730 Pontiac Trl
Terry's English Toffee & Treats
4.37 miles away
56730 Grand River Ave
Walmart Bakery
4.44 miles away
30729 Lyon Center Dr E
The Coral Sash
0.61 mile away
131 N Lafayette St
South Lyon Hotel
0.61 mile away
201 N Lafayette St
Lafayette Middle Eastern Cuisine
0.64 mile away
304 N Lafayette St
Mancini Pizza Kitchen
0.64 mile away
304 N Lafayette St
Pro Pizza
0.65 mile away
294 N Lafayette St
BIGGBY Coffee
1.11 miles away
22729 Pontiac Trl
Tropical Smoothie Cafe
1.21 miles away
25780 Pontiac Trl
Java House
1.21 miles away
25840 Pontiac Trl
Tim Hortons
1.60 miles away
21725 Pontiac Trl
Tim Hortons
4.11 miles away
30501 Milford Rd
K V Sports
0.67 mile away
120 E Lake St
Economizers Clothing, LLC
1.25 miles away
1149 Polo Dr
Dainty Douglas Boutique
3.28 miles away
28466 Oakmonte Cir E
Lularoe Deana Ryznar
3.55 miles away
55555 9 Mile Rd
Michigan Foster Care Closet
3.93 miles away
8280 S Rushton Rd
South Lyon Hotel
0.61 mile away
201 N Lafayette St
Lake Street Tavern
0.68 mile away
127 E Lake St
Witch's Hat Brewing Company
0.84 mile away
601 S Lafayette St
The Trail Bar & Grille
1.53 miles away
26800 Pontiac Trl
Jonna's Bar & Grill
4.24 miles away
56849 Grand River Ave
Please note this information may vary. If you come across anything inaccurate, please contact us.
When your business processes are built on fairness and integrity, you tend to remain in operation for a long time. That’s why Singh Development has been creating exceptional residential housing and commercial properties for decades. Today a nationally ranked builder/developer, we are still a family-owned and operated organization whose values are integrated into every one of our developments. Our company’s success comes from thoughtfully conceived developments, careful planning, hands-on management, quality construction and astute marketing. Even more significant, our relationships with customers, suppliers, local governments and communities are based on the family values of respect and honesty. It is who we are, and you’ll find that our reputation and developments reflect those values.
Take the next steps toward your new home
Nantucket Plan by Singh Homes
saved to favorites!
To see all the homes you’ve saved, visit the My Favorites section of your account.
Discover More Great Communities
Select additional listings for more information
We're preparing your brochure
You're now connected with Singh Homes. We'll send you more info soon.
The brochure will download automatically when ready.
Brochure downloaded successfully
Your brochure has been saved. You're now connected with Singh Homes, and we've emailed you a copy for your convenience.
The brochure will download automatically when ready.
Way to Go!
You’re connected with Singh Homes.
The best way to find out more is to visit the community yourself!