Nicole Plan
Ready to build
974 N Olson Dr, Saratoga Springs UT 84045
Home by EDGEhomes
at Ridgehorne
Last updated 4 days ago
The Price Range displayed reflects the base price of the homes built in this community.
You get to select from the many different types of homes built by this Builder and personalize your New Home with options and upgrades.
4 BR
2.5 BA
2 GR
3,531 SQ FT

Nicole1 1/3
Overview
1 Half Bathroom
2 Bathrooms
2 Car Garage
3531 Sq Ft
4 Bedrooms
Single Family
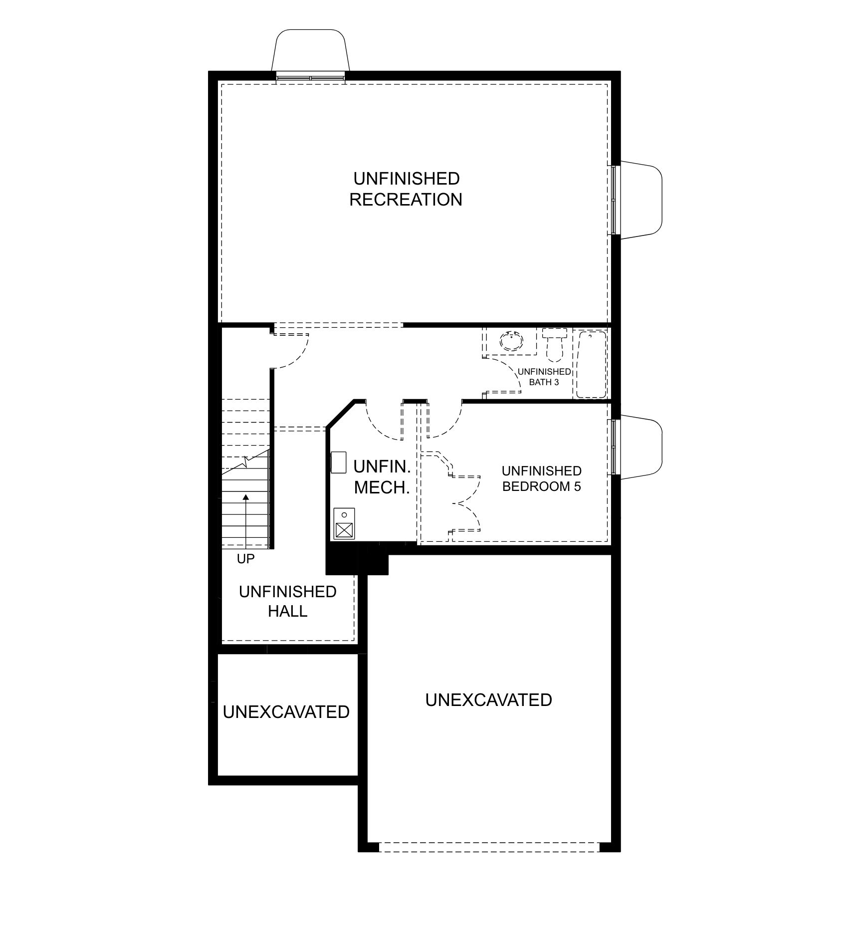
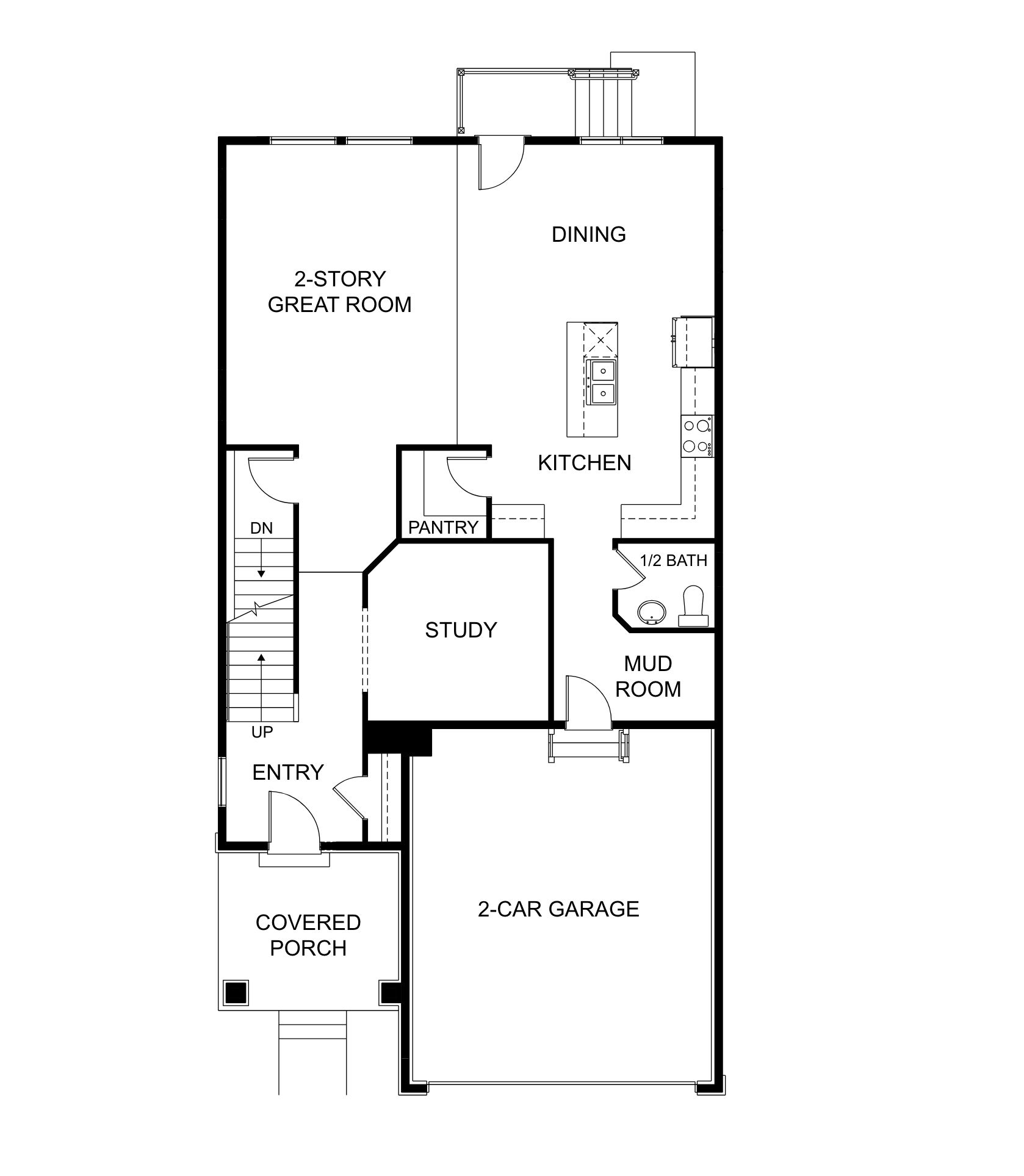
Nicole Plan Info
Discover the allure of the Nicole floorplan—an enchanting two-level home that we previously had as a model home. Fall in love with its perfect blend of size and versatility, offering a spacious layout that caters to your every need. The standout features include a generously sized mudroom, providing both functionality and charm. Upstairs, a fantastic loft area awaits, creating an inviting space for relaxation or entertainment. The open-to-below design bathes the home in natural light, enhancing its warm and welcoming ambiance....
Floor plan center
View floor plan details for this property.
- Floor Plans
- Exterior Images
- Interior Images
- Other Media
Neighborhood

Community location & sales center
974 N Olson Dr
Saratoga Springs, UT 84045
974 N Olson Dr
Saratoga Springs, UT 84045
888-721-5405
Nearby schools
Alpine District
Elementary-Middle school. Grades KG to 6.
- Public school
- Teacher - student ratio: 1:27
- Students enrolled: 1051
264 N 750 W, Saratoga Spgs, UT, 84045
801-610-8727
Middle-High school. Grades 7 to 9.
- Public school
- Teacher - student ratio: 1:27
- Students enrolled: 1519
484 W Pony Express Pkwy, Saratoga Spgs, UT, 84045
801-610-8770
High school. Grades 10 to 12.
- Public school
- Teacher - student ratio: 1:27
- Students enrolled: 2659
99 N 200 W, Saratoga Spgs, UT, 84045
801-610-8815
Actual schools may vary. We recommend verifying with the local school district, the school assignment and enrollment process.
Amenities
Home details
Ready to build
Build the home of your dreams with the Nicole plan by selecting your favorite options. For the best selection, pick your lot in Ridgehorne today!
Community & neighborhood
Health and fitness
- Pool
- Trails
- Basketball
Community services & perks
- HOA fees: Unknown, please contact the builder
- Playground
- Park
Neighborhood amenities
Smith's Marketplace
6.22 miles away
689 N Redwood Rd
Costco Wholesale
6.65 miles away
1083 N Redwood Rd
Bishops' Storehouse
6.73 miles away
142 W Medical Dr
Home Storage Center
6.73 miles away
142 W Medical Dr
Kohler's
7.01 miles away
300 E Main St
Cinnaholic
6.82 miles away
596 N Mill Rd
Hawaiian Coconut LLC
6.83 miles away
758 S Auto Mall Dr
Kneaders Bakery of Park City
6.88 miles away
871 S Auto Mall Dr
Lehi Bakery
6.97 miles away
172 W Main St
Square Donut LLC
6.97 miles away
172 W Main St
Hokulia Shave Ice
2.40 miles away
2220 S Talons Cv
Crumbl Cookies
3.52 miles away
24 W Pioneer Xing
Noodles & Company
3.52 miles away
24 W Pioneer Xing
Scooter's Coffeehouse
3.58 miles away
2157 N Redwood Rd
Live the Difference Inc
4.21 miles away
818 S Songbird Ln
Scooter's Coffeehouse
3.58 miles away
2157 N Redwood Rd
Beans & Brews
6.18 miles away
717 N Redwood Rd
Starbucks
6.22 miles away
689 N Redwood Rd
Dutch Bros Coffee
6.50 miles away
963 N Redwood Rd
Starbucks
6.84 miles away
4045 E Pony Express Pkwy
Beau Femme
3.05 miles away
1771 S Range Rd
Costco Wholesale
6.65 miles away
1083 N Redwood Rd
Raylia Designs
6.79 miles away
896 S Auto Mall Dr
Gowns By Pamela
6.93 miles away
394 W Main St
Famous Footwear
6.95 miles away
678 W Main St
Star Saloon Tavern
5.87 miles away
466 N Redwood Rd
Topgolf
6.82 miles away
484 N Entertainment Way
Mint Facial Bar
7.06 miles away
380 E Main St
Chili's
7.37 miles away
765 W State Rd
Nori Sushi Bar Grill
7.38 miles away
821 W State Rd
Please note this information may vary. If you come across anything inaccurate, please contact us.
EDGEhomes has become a leader among Utah home builders through many years of designing and building award winning homes. We are proud to introduce to you our guiding vision and the team that makes it all possible. We are redefining value.
Take the next steps toward your new home
Nicole Plan by EDGEhomes
saved to favorites!
To see all the homes you’ve saved, visit the My Favorites section of your account.
Discover More Great Communities
Select additional listings for more information
We're preparing your brochure
You're now connected with EDGEhomes. We'll send you more info soon.
The brochure will download automatically when ready.
Brochure downloaded successfully
Your brochure has been saved. You're now connected with EDGEhomes, and we've emailed you a copy for your convenience.
The brochure will download automatically when ready.
Way to Go!
You’re connected with EDGEhomes.
The best way to find out more is to visit the community yourself!