Nottingham Plan
Ready to build
Fulshear TX 77441
Home by Century Communities

The Price Range displayed reflects the base price of the homes built in this community.
You get to select from the many different types of homes built by this Builder and personalize your New Home with options and upgrades.
3 BR
2 BA
2 GR
1,673 SQ FT

Interior 1/3
Special offers
Explore the latest promotions at Fulshear Lakes. Contact Century Communities to learn more!
Financing Offer
Hometown Heroes Houston
Game Changing Savings
Overview
1673 Sq Ft
2 Bathrooms
2 Car Garage
3 Bedrooms
Single Family
Nottingham Plan Info
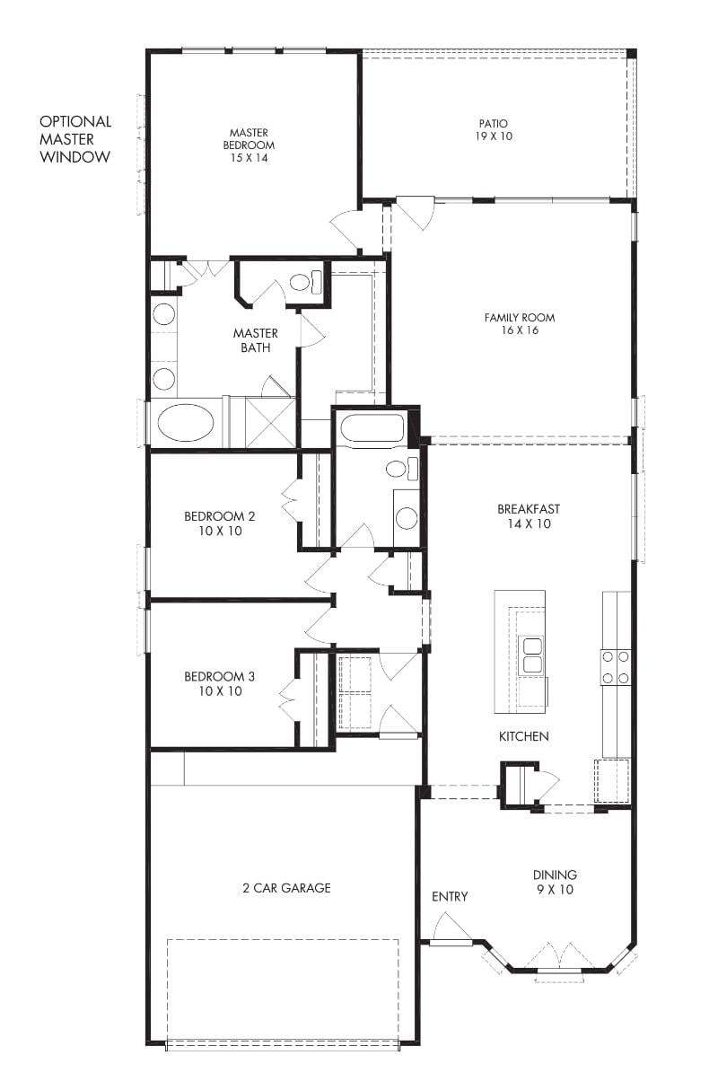
The Nottingham floor plan is a beautiful one-story residence featuring 3 bedrooms, 2 bathrooms, and an attached 2-bay garage. Designed with comfort and versatility in mind, this home boasts high ceilings and a spacious open-concept layout that seamlessly blends the great room, kitchen, breakfast area, and a formal dining room that can easily serve as a flexible space to suit your lifestyle. Step outside to enjoy a spacious back patio and a welcoming covered front porch, perfect for relaxing or entertaining year-round. The Nottingham offers the ideal combination of elegance, functionality, and outdoor living.
Floor plan center
View floor plan details for this property.
- Floor Plans
- Exterior Images
- Interior Images
- Other Media
Neighborhood
Community location & sales center
8427 Shyleaf Ct
Fulshear, TX 77441
8427 Shyleaf Ct
Fulshear, TX 77441
Schools near Fulshear Lakes
- Katy Independent School District
- Lamar Consolidated Independent School District
Actual schools may vary. Contact the builder for more information.
Amenities
Home details
Ready to build
Build the home of your dreams with the Nottingham plan by selecting your favorite options. For the best selection, pick your lot in Fulshear Lakes today!
Community & neighborhood
Community services & perks
- HOA fees: Unknown, please contact the builder
As one of the nation's largest homebuilders, we make your dream of homeownership possible with attractive, high-quality homes at affordable prices through our easy and streamlined online homebuying process. Explore available homes in 16 states and over 45 desirable markets through our nationally renowned Century Communities and Century Complete brands. Plus, simplify your homebuying experience with title, insurance and lending services in select markets through our Parkway Title, IHL Home Insurance Agency, and Inspire Home Loans® subsidiaries.
TrustBuilder reviews
Take the next steps toward your new home
Nottingham Plan by Century Communities
saved to favorites!
To see all the homes you’ve saved, visit the My Favorites section of your account.
Discover More Great Communities
Select additional listings for more information
We're preparing your brochure
You're now connected with Century Communities. We'll send you more info soon.
The brochure will download automatically when ready.
Brochure downloaded successfully
Your brochure has been saved. You're now connected with Century Communities, and we've emailed you a copy for your convenience.
The brochure will download automatically when ready.
Way to Go!
You’re connected with Century Communities.
The best way to find out more is to visit the community yourself!