Octave Plan
Ready to build
17700 W Star Point Drive, Goodyear AZ 85338
Home by Taylor Morrison

Last updated 2 days ago
The Price Range displayed reflects the base price of the homes built in this community.
You get to select from the many different types of homes built by this Builder and personalize your New Home with options and upgrades.
2 BR
2 BA
2 GR
1,778 SQ FT

Elevation A Arizona Spanish 1/59
Special offers
Explore the latest promotions at CantaMia at Estrella 55+. Contact Taylor Morrison to learn more!
Conventional 30-Year Fixed Rate 3.99% / 4.08% APR
Overview
1 Story
1778 Sq Ft
2 Bathrooms
2 Bedrooms
2 Car Garage
Primary Bed Downstairs
Single Family
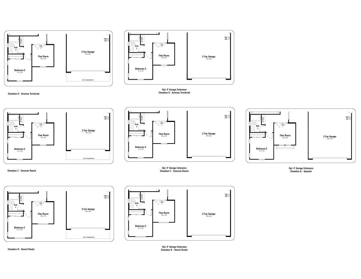
Octave Plan Info
This floor plan is an Ensemble Series floor plan. From time to time, there may not be homesites currently available without premiums. Please see a Community Sales Manager for information.
Floor plan center
View floor plan details for this property.
- Floor Plans
- Exterior Images
- Interior Images
- Other Media
Explore custom options for this floor plan.
- Choose Option
- Include Features
Neighborhood
Community location & sales center
17700 W Star Point Drive
Goodyear, AZ 85338
17700 W Star Point Drive
Goodyear, AZ 85338
877-893-3521
Take AZ-303 South until the Freeway ends into Cotton Lane.Follow Cotton Lane to the traffic circle and go south on Estrella Parkway.From the traffic circle go south 5 miles and turn right into CantaMia.
Nearby schools
Buckeye Union High School District
High school. Grades 9 to 12.
- Public school
- Teacher - student ratio: 1:26
- Students enrolled: 1398
13033 S Estrella Pkwy, Goodyear, AZ, 85338
623-327-2400
Liberty Elementary District
Elementary-Middle school. Grades KG to 8.
- Public school
- Teacher - student ratio: 1:20
- Students enrolled: 773
17777 W Westar Dr, Goodyear, AZ, 85338
623-327-2840
Actual schools may vary. We recommend verifying with the local school district, the school assignment and enrollment process.
Amenities
Home details
Ready to build
Build the home of your dreams with the Octave plan by selecting your favorite options today!
Community & neighborhood
Local points of interest
- Lake
Social activities
- Club House
Health and fitness
- Tennis
- Pool
Community services & perks
- HOA fees: Unknown, please contact the builder
Neighborhood amenities
Safeway
4.29 miles away
9890 S Estrella Pkwy
Fry's Food
9.87 miles away
16380 W Yuma Rd
Beach House Food & Spirits
1.41 miles away
18209 W Calistoga Dr
The Cantina
1.41 miles away
18209 W Calistoga Dr
The Cantina at Presidio
1.41 miles away
18209 W Calistoga Dr
Player's Grill & Patio
2.99 miles away
11800 S Golf Club Dr
Lakeside at Grill Estrella
4.13 miles away
17665 W Elliot Rd
Starbucks
4.29 miles away
9890 S Estrella Pkwy
Black Rock Coffee Bar
9.62 miles away
17171 W Yuma Rd
Starbucks
9.81 miles away
995 S Cotton Ln
Starbucks
9.87 miles away
16380 W Yuma Rd
Tropical Smoothie Cafe
9.90 miles away
831 S Cotton Ln
Sam Harvey
3.43 miles away
11442 S Wilson Ln
Target
9.81 miles away
995 S Cotton Ln
Ross Dress For Less
9.90 miles away
845 S Cotton Ln
Topwater
9.13 miles away
24445 W Sunrise Dr
Angry Crab Shack
9.28 miles away
301 N Litchfield Rd
Roman's Oasis
9.64 miles away
16825 W Yuma Rd
Please note this information may vary. If you come across anything inaccurate, please contact us.
From start to finish, we create a seamless and inspired homebuilding experience for our homebuyers because we understand that your home is the most important home we can build. At Taylor Morrison, we work to earn your trust by providing the resources, support and deep industry experience to inspire you, and help you make educated decisions about your most important purchase. It’s this trust that earned Taylor Morrison the recognition of being America’s Most Trusted® Home Builder for nine years in a row. We approach each home with a discerning eye, ensuring we select locations and amenities that fit for our homebuyers’ lifestyles. We want your home to be a place where you create a lifetime of lasting memories. With more than 100 years of experience building a lifetime of memories for our homebuyers, you can rest assured we’ll build the right home for you.
Take the next steps toward your new home
Octave Plan by Taylor Morrison
saved to favorites!
To see all the homes you’ve saved, visit the My Favorites section of your account.
Discover More Great Communities
Select additional listings for more information
We're preparing your brochure
You're now connected with Taylor Morrison. We'll send you more info soon.
The brochure will download automatically when ready.
Brochure downloaded successfully
Your brochure has been saved. You're now connected with Taylor Morrison, and we've emailed you a copy for your convenience.
The brochure will download automatically when ready.
Way to Go!
You’re connected with Taylor Morrison.
The best way to find out more is to visit the community yourself!