Paradise Pointe
Pacific
1158 N Paradise Avenue, Ridgefield, WA, 98642
by New Tradition Homes
From $819,900 This is the starting price for this plan and is subject to change.
- 3 Beds
- 2.5 Baths
- 2 Car garage
- 2,235 Sq Ft
Overview
Floor plan features
- 1 Half Bathroom
- 2 Stories
- Primary Bed Upstairs
- Single Family
Floor plan description
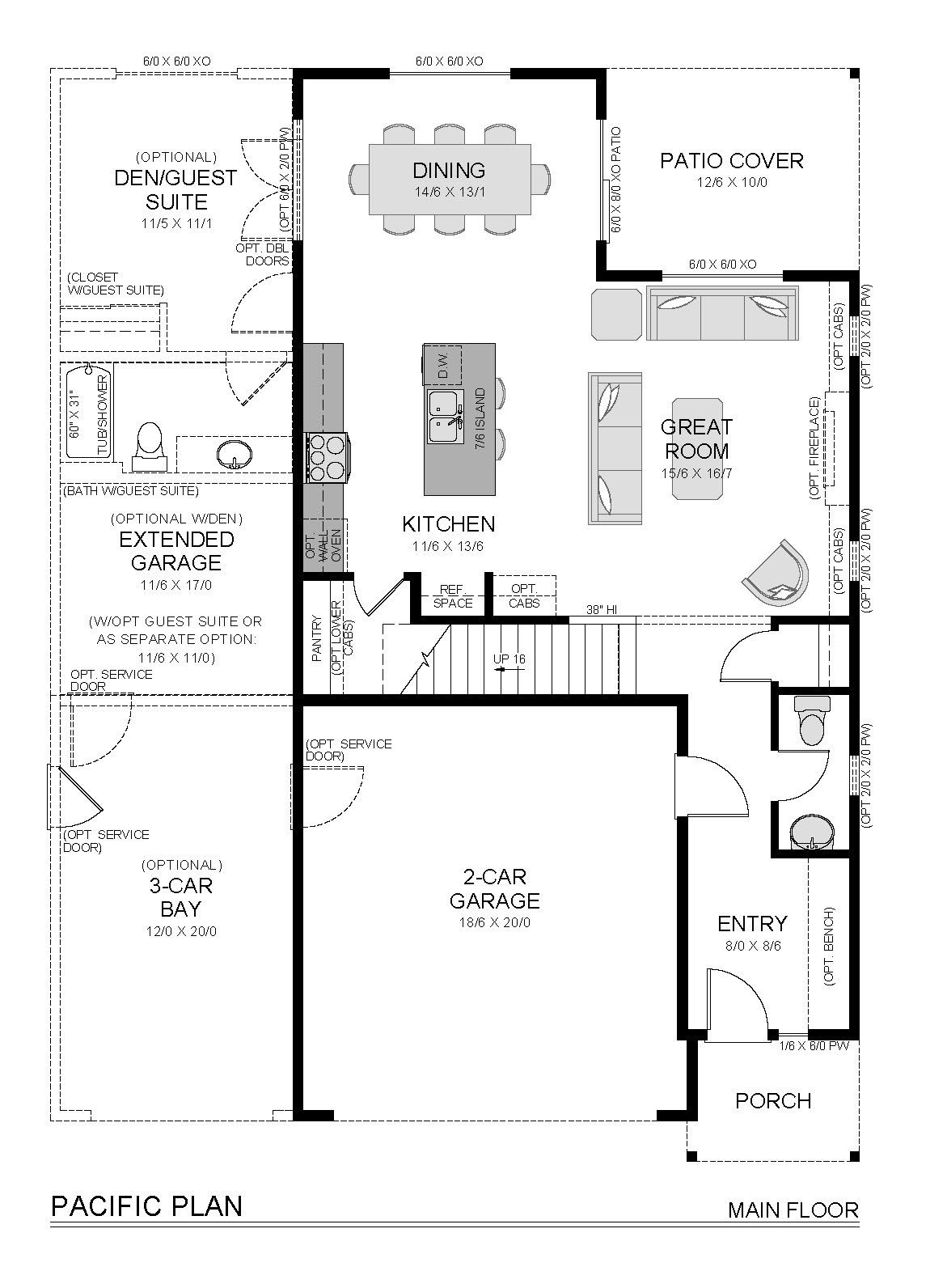
Take a look at The Pacific - A three bedroom, two and a half bath plan with an open-concept first floor, flex room upstairs and Owner’s Retreat upgrades available. Through the front door and into the entry way, right away The Pacific feels like home. Past a half bath, you come into the great room with an optional fireplace and built-in cabinets. Connected to the great room is the kitchen with a large pantry and dining area with access to the covered patio. Up the stairs is a flex area with the option to wall it off and add a closet perfect for a rec room. Also upstairs is the Owner’s Retreat with shower, soaking tub and large walk-in closet, two bedrooms, full bath and laundry room.
Explore this home
Explore custom options for this floor plan.
Special offers
Explore the latest promotions at Paradise Pointe. to learn more!
Hometown Heroes...
New Tradition Homes Salutes our Hometown Heroes! To say thank you for your service, we offer a special program giving $3,000 towards the purchase of a New Tradition Home for Military Personnel (active & veterans), Firefighters and Police Officers.
Community highlights
Community amenities
Greenbelt
Park
Trails
About Paradise Pointe
Built around 15 acres of preserved green space, Paradise Pointe is a master-planned community that blends nature, design, and community. Winding trails will connect into the larger Ridgefield trail system, while parks and open spaces create room to breathe and a true sense of place. Just minutes from new shopping, dining, charming downtown Ridgefield, and the Columbia River marina, Paradise Pointe offers the best of Northwest living. Here you’ll find rare 7,500+ sq. ft. homesites and a wide selection of single-level and two-story floor plans from our Classic Series — crafted by one of Washington’s most trusted builders. With pricing starting from the low 800s, Paradise Pointe delivers both value and quality for today’s homebuyers. And with quick access to I-5 and only 20 minutes to PDX A...
Green program
100% ENERGY STAR Certified Homes
More InfoNeighborhood
Community location & sales center
1158 N Paradise Avenue Ridgefield, WA 98642
1158 N Paradise Avenue Ridgefield, WA 98642
888-342-1062
From I-5 take the Ridgefield Pioneer Street Exit and head West on Pioneer. At the second roundabout, take a right on N Royle Rd. Head North about a mile and the community is located on your left at the corner of Royle and N 10th Street.
Amenities
Community & neighborhood
Local points of interest
- Greenbelt
Health and fitness
- Trails
Community services & perks
- Park
Neighborhood amenities
Rosauers Supermarkets
0.53 mile away
101 S 47th Ave
One Source Food Solutions
1.89 miles away
127 N Main Ave
Ridgefield Pioneer Marketplace
1.89 miles away
203 Pioneer Ave
Starliner Food Mart
1.99 miles away
320 Pioneer St
St Helens Red Apple Market
5.77 miles away
1111 Columbia Blvd
East West Botanicals
1.72 miles away
600 S 74th Pl
Killa Bites
1.84 miles away
510 Pioneer St
Sadie & Josie's Bakery Inc
3.20 miles away
582 NW Pacific Hwy
Sweet Nettie Cakes
3.66 miles away
1534 E Caples Ct
Papa Murphy's Take 'n' Bake
0.47 mile away
4306 S Settler Dr
MOD Pizza
0.49 mile away
11 S 47th Ave
Taco Bell
0.54 mile away
50 S 48th Pl
Ichi Teriyaki 30
0.58 mile away
255 S 47th Ave
Country Cafe Ridgefield
1.05 miles away
6370 N 1st Cir
Starbucks
0.47 mile away
4300 S Settler Dr
Stonehill Coffee House
3.26 miles away
209 E 4th St
Starbucks
5.86 miles away
795 Columbia River Hwy
Gathering Net Coffee House
6.03 miles away
1945 Columbia Blvd
Luckman Coffee Company
6.17 miles away
1230 Lewis River Rd
Cowlitz Trading Post
2.19 miles away
1 Cowlitz Way
Marshall Rousso
2.19 miles away
1 Cowlitz Way
Ruby Blue
2.19 miles away
1 Cowlitz Way
Woodland Cottage Handpicked
5.34 miles away
241 S 1st St
USA Kakadu
5.43 miles away
17217 NW 61st Ave
Sportsman Bar & Grill
1.89 miles away
121 N Main Ave
360 Bar
2.19 miles away
1 Cowlitz Way
Stadium Sports Bar & Grill
2.19 miles away
1 Cowlitz Way
3Peaks Public House & Taproom
2.69 miles away
24415 NE 10th Ave
Palace Casino
3.10 miles away
318 NW Pacific Hwy
Please note this information may vary. If you come across anything inaccurate, please contact us.
Builder details
New Tradition Homes
New Tradition Homes began in 1987 with the Helmes family dream to build new homes of high quality, enduring design and lasting value. We named our company New Tradition Homes to demonstrate the combined excitement of building new lives, new memories, and new traditions in a new home. Today we are one of the largest homebuilders in Washington State, having built thousands of homes. Personalized Service and Customer Satisfaction From the very beginning, we have been dedicated to personalized service and customer satisfaction. We recognize the flexibility needed to meet the ever-changing needs of our homebuyers. Our in-house design team is continually updating floor plans to make sure that our homes represent the best in new home design. We also offer a wide menu of personalized options on every home that we build. New Tradition Homes has become the regional leader in developing innovative and energy-efficient construction technologies. Through on-going research and dedication we continue to build homes that are healthier, more durable and more efficient than standard new homes. Every New Tradition Homes is ENERGY STAR Certified and comes with a HERS home energy rating score. This certification means that every home is third-party verified to meet our high standards. Our ongoing commitment is to provide homebuyers beautiful, better-built homes at an affordable price. We’ve built many homes and communities over the years, but we have not forgotten our roots – One family’s dedication to help other families build new traditions in a new home. We stand behind our homes and our communities and the high quality, enduring design and lasting value that they demonstrate.
Take the next steps toward your new home
This listing's information was verified with the builder for accuracy 2 days ago
Pacific Plan by New Tradition Homes
saved to favorites!
To see all the homes you’ve saved, visit the My Favorites section of your account.
Discover More Great Communities
Select additional listings for more information
We're preparing your brochure
You're now connected with New Tradition Homes. We'll send you more info soon.
The brochure will download automatically when ready.
Brochure downloaded successfully
Your brochure has been saved. You're now connected with New Tradition Homes, and we've emailed you a copy for your convenience.
The brochure will download automatically when ready.
Way to Go!
You’re connected with New Tradition Homes.
The best way to find out more is to visit the community yourself!