Pinehurst Plan
Ready to build
Centreville MD 21617
Home by Lacrosse Homes
at Meadow Creek

The Price Range displayed reflects the base price of the homes built in this community.
You get to select from the many different types of homes built by this Builder and personalize your New Home with options and upgrades.
3 BR
2.5 BA
2 GR
2,120 SQ FT

Pinehurst 1/32
Overview
1 Half Bathroom
2 Bathrooms
2 Car Garage
2 Stories
2120 Sq Ft
3 Bedrooms
Dining Room
Family Room
Mud Room
Single Family
Walk-In Closets
Pinehurst Plan Info
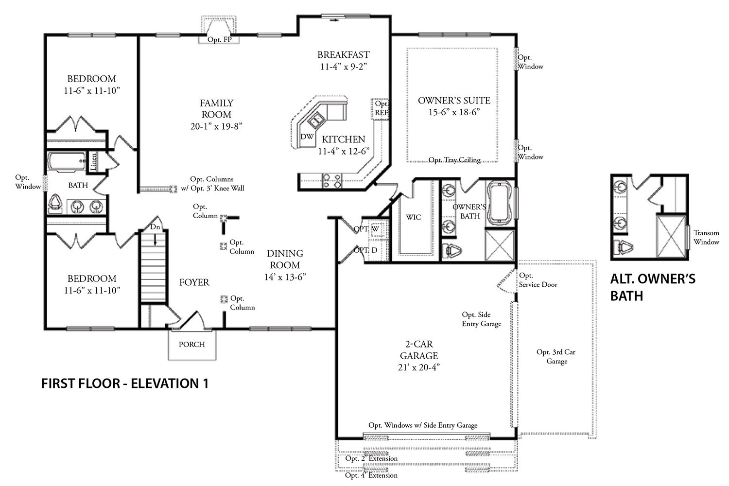
This home features a formal dining area flanked by columns as well as three nicely sized bedrooms and a large living area with gourmet-appointed island kitchen, breakfast room and optional morning room on one level. Your owner's bath includes a separate soaking tub and shower or you may choose to install the large enclosed spa shower and closet for linens. Plan features a main level washer/dryer laundry/mud room and a lower level which can be customized to meet your needs.
Floor plan center
View floor plan details for this property.
- Floor Plans
- Exterior Images
- Interior Images
- Other Media
Neighborhood
Community location & sales center
311 Twin Meadows Farm Lane
Centreville, MD 21617
311 Twin Meadows Farm Lane
Centreville, MD 21617
Contact sales representative to schedule site visit: sales@laxhomes.com
Schools near Meadow Creek
- Queen Anne's County Public Schools
Actual schools may vary. Contact the builder for more information.
Amenities
Home details
Ready to build
Build the home of your dreams with the Pinehurst plan by selecting your favorite options. For the best selection, pick your lot in Meadow Creek today!
Community & neighborhood
Local points of interest
- Views
Community services & perks
- HOA fees: Unknown, please contact the builder
Neighborhood amenities
Food Lion
0.39 mile away
300 Thompson Creek Mall
Market
0.57 mile away
180 Pier 1 Rd
Kent Island Filipino & Asian Food Market
1.79 miles away
109 Chester Station Ln
Safeway
2.21 miles away
1925 Main St
Graul's Market
7.80 miles away
1388 Cape St Claire Rd
Piece of Cake
0.03 mile away
314 Love Point Rd
Rams Head Shore House Stevensville
0.49 mile away
800 Main St
Fields of Heather Bakery
1.52 miles away
1553 Postal Rd
Laser Body Sculpting
1.79 miles away
109 Chester Station Ln
sweetFrog
2.73 miles away
200 Abruzzi Dr
Tasty Toucan
0.03 mile away
400 Love Point Rd
Amalfi Coast Italian
0.05 mile away
401 Love Point Rd
Classic Pizza
0.16 mile away
112 Saint Claire Pl
Love Point Deli Wine & Spirits
0.20 mile away
109 Main St
Subway
0.23 mile away
230 Saint Claire Pl
Starbucks
0.32 mile away
200 Kent Manor Dr
Starbucks
0.32 mile away
450 Thompson Creek Mall
Dunkin'
0.91 mile away
1132 Shopping Center Rd
Starbucks
2.21 miles away
1925 Main St
Yo Java Bowl Food Truck
2.76 miles away
800 Abruzzi Dr
Target
0.39 mile away
200 Kent Lndg
Spunkwear LLC
0.72 mile away
235 Log Canoe Cir
Dotdotsmile Kristen Chumley
7.14 miles away
107 Hershey Ct
Houck's Menswear LLC
7.80 miles away
1382 Cape St Claire Rd
Michael Kors Outlet
8.25 miles away
211 Outlet Center Dr
Amalfi Coast Italian
0.05 mile away
401 Love Point Rd
Cult Classic Brewing
0.95 mile away
1169 Shopping Center Rd
Big Owl Tiki Bar
3.78 miles away
3015 Kent Narrow Way S
Red Eye's Dock Bar
3.84 miles away
428 Kent Narrow Way N
Fisherman's Crab Deck
3.91 miles away
3032 Kent Narrow Way S
Please note this information may vary. If you come across anything inaccurate, please contact us.
Lacrosse Homes offers a collection of uniquely designed single family home & multi-family home floor plans in some of the best, new home communities in Maryland. Whether it be an upgrade with a multi-family home in Stevensville, a luxurious, single family home in Easton, or a custom home in Kent Island Estates - Lacrosse Homes has the right new home for you near what you want & need. All of Lacrosse Homes' new home communities are ideally located around Maryland’s Eastern Shore. Each community offers easy access to major commuting routes, top-rated schools with great shopping, dining & entertainment nearby. Discover the right new home for you and your family today by contacting us today!
Take the next steps toward your new home
Pinehurst Plan by Lacrosse Homes
saved to favorites!
To see all the homes you’ve saved, visit the My Favorites section of your account.
Discover More Great Communities
Select additional listings for more information
We're preparing your brochure
You're now connected with Lacrosse Homes. We'll send you more info soon.
The brochure will download automatically when ready.
Brochure downloaded successfully
Your brochure has been saved. You're now connected with Lacrosse Homes, and we've emailed you a copy for your convenience.
The brochure will download automatically when ready.
Way to Go!
You’re connected with Lacrosse Homes.
The best way to find out more is to visit the community yourself!