Meraki
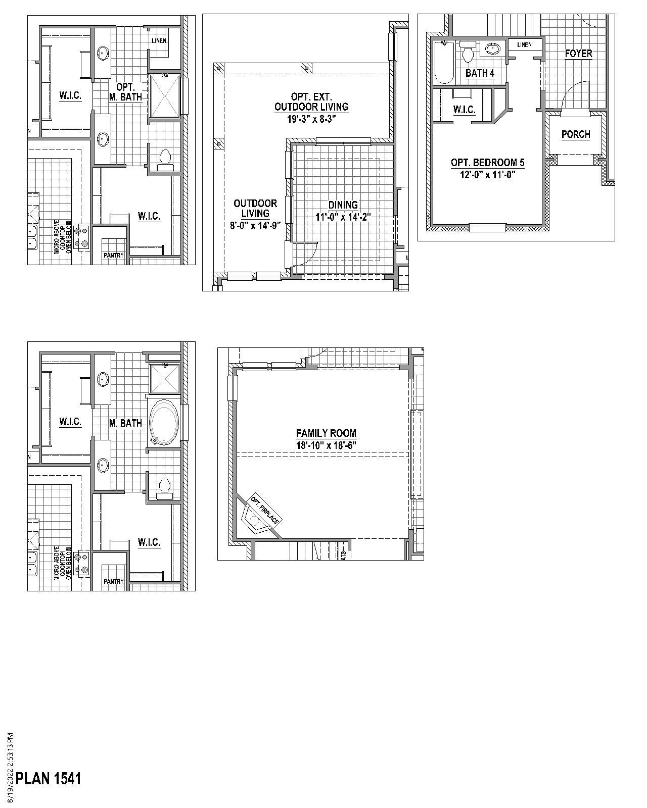
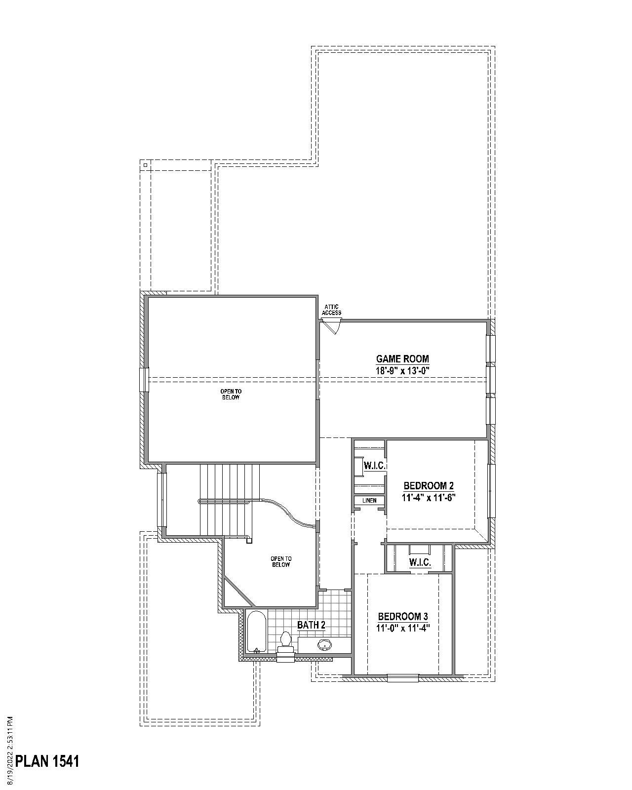
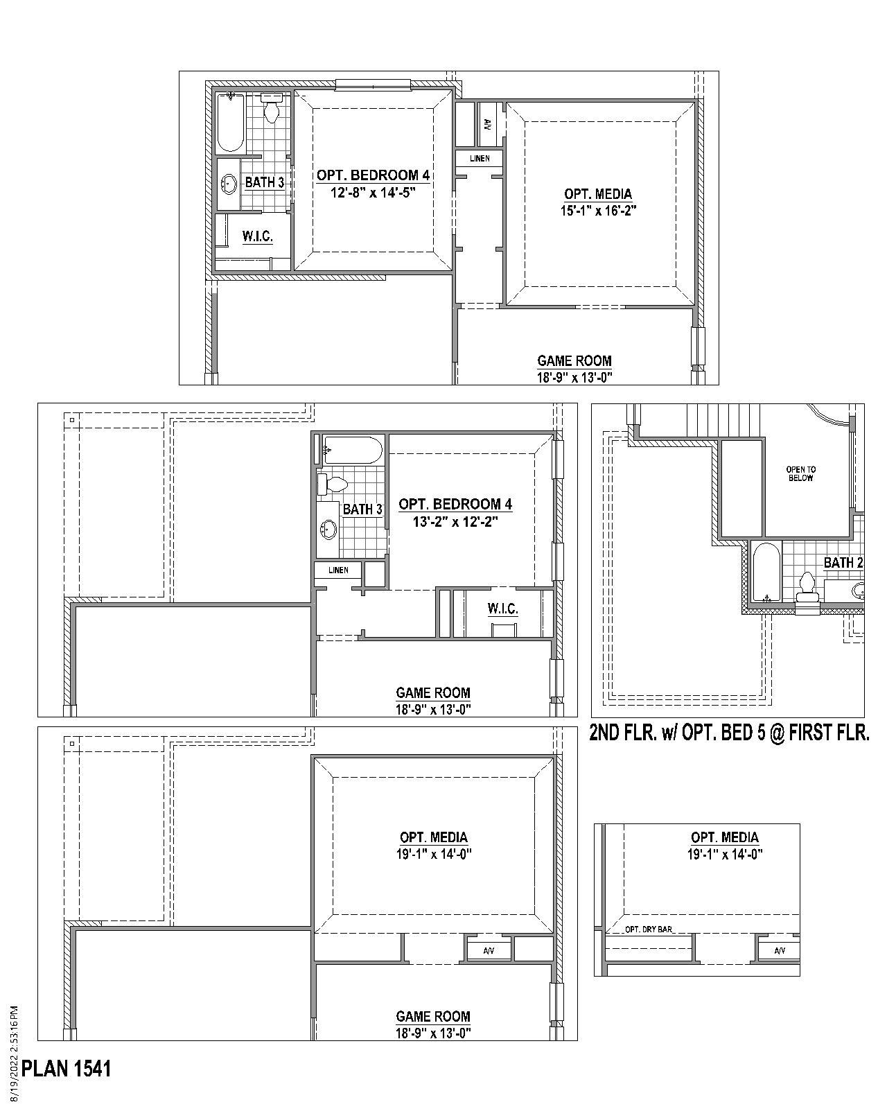
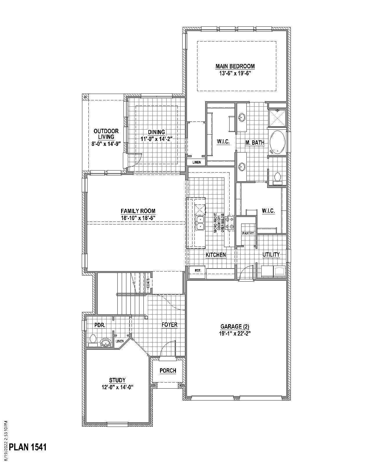
Plan 1541
2015 Meraki Parkway, Forney, TX, 75126
by American Legend Homes
From $489,990 This is the starting price for this plan and is subject to change.
Yearly HOA fees: $780
- 3 Beds
- 2.5 Baths
- 2 Car garage
- 2,873 Sq Ft
Overview
Floor plan features
- 1 Half Bathroom
- 2 Stories
- Primary Bed Downstairs
- Single Family
Floor plan description
Pretty 2 story home with 3 bedrooms, 2 full baths, 1 powder bath, dining area, study, game room, outdoor living area and 2-car garage
Explore this home
Explore custom options for this floor plan.
Community highlights
Community amenities
Community Center
Greenbelt
Lake
Park
Pool
Trails
About Meraki
Discover Meraki, a stunning 1,100-acre master-planned community located near FM 548 and Mann Road in Forney, Texas—just 2 miles from charming downtown Forney. Thoughtfully designed with lifestyle in mind, Meraki offers two beautiful lakes totaling 70 acres, a central park, and several hundred acres of green space where every resident will live within five minutes of nature. Enjoy miles of scenic trails with overlooks, a future lakeside amenity center featuring resort-style pools and sun deck, and abundant spaces to play, relax, and connect. Families will also benefit from a planned on-site Forney ISD elementary school, making education both convenient and close to home. American Legend Homes is proud to present one and two-story floor plans on 50' wide homesites, ranging from 2,168 to 3,50...
Neighborhood
Community location & sales center
2015 Meraki Parkway Forney, TX 75126
2015 Meraki Parkway Forney, TX 75126
Heading East on 548, turn left onto Meraki Parkway. Follow it North through the roundabout and Model Home is on the left.
Amenities
Community & neighborhood
Local points of interest
- Greenbelt
- Lake
Utilities
- Electric Farmers Electric (903) 455-1715
- Gas Atmos (866) 322-8667
- Telephone AT&T (855) 957-4313
- Water/wastewater High Point Special Utility District (972) 564-3801
Health and fitness
- Pool
- Trails
Community services & perks
- Park
- Community Center
Builder details
American Legend Homes

American Legend Homes is a family and employee-owned, award-winning organization focused on thoughtful designs, quality craftsmanship and superior customer service. Since 2003 we’ve built thousands of homes in North Texas and are proud to have expanded into Northern Colorado in 2018.
Drawing upon a combined 75 years of homebuilding experience, our leadership team ensures that every member of the American Legend family understands the critical role they play in building trust and developing long term relationships with each homeowner.
“Built for the way you live” isn’t just a tagline; it’s an operating mantra that defines who we are and our commitment to provide the absolute best customer experience throughout the homebuilding process.
We take an immense amount of pride in making dream homes a reality, and would be honored to partner with you on that journey.
Take the next steps toward your new home
This listing's information was verified with the builder for accuracy 22 hours ago
Plan 1541 Plan by American Legend Homes
saved to favorites!
To see all the homes you’ve saved, visit the My Favorites section of your account.
Discover More Great Communities
Select additional listings for more information
We're preparing your brochure
You're now connected with American Legend Homes. We'll send you more info soon.
The brochure will download automatically when ready.
Brochure downloaded successfully
Your brochure has been saved. You're now connected with American Legend Homes, and we've emailed you a copy for your convenience.
The brochure will download automatically when ready.
Way to Go!
You’re connected with American Legend Homes.
The best way to find out more is to visit the community yourself!