Plan 1688 Plan
Ready to build
11436 Wulstone Drive, Haslet TX 76052
Home by American Legend Homes

Last updated 4 days ago
The Price Range displayed reflects the base price of the homes built in this community.
You get to select from the many different types of homes built by this Builder and personalize your New Home with options and upgrades.
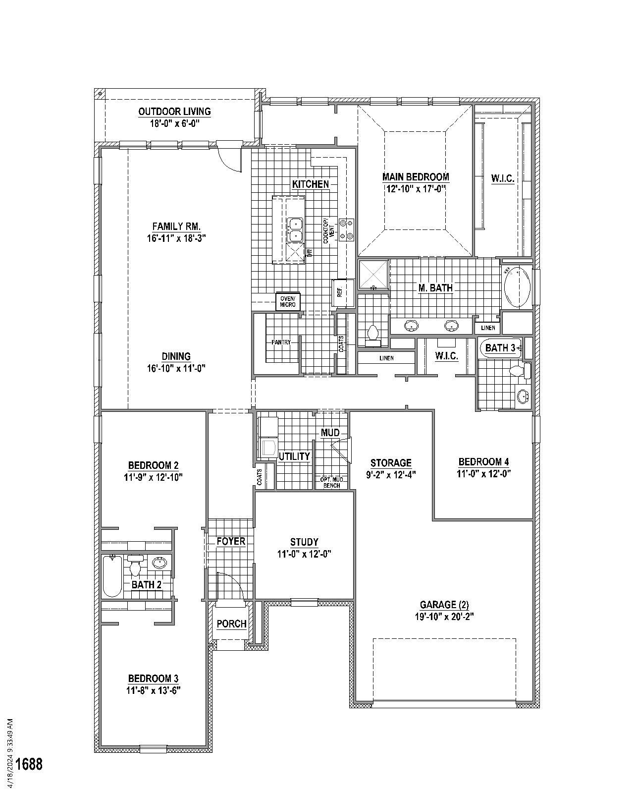
4 BR
3 BA
2 GR
2,665 SQ FT

Exterior 1/30
Overview
1 Story
2 Car Garage
2665 Sq Ft
3 Bathrooms
4 Bedrooms
Primary Bed Downstairs
Single Family
Plan 1688 Plan Info
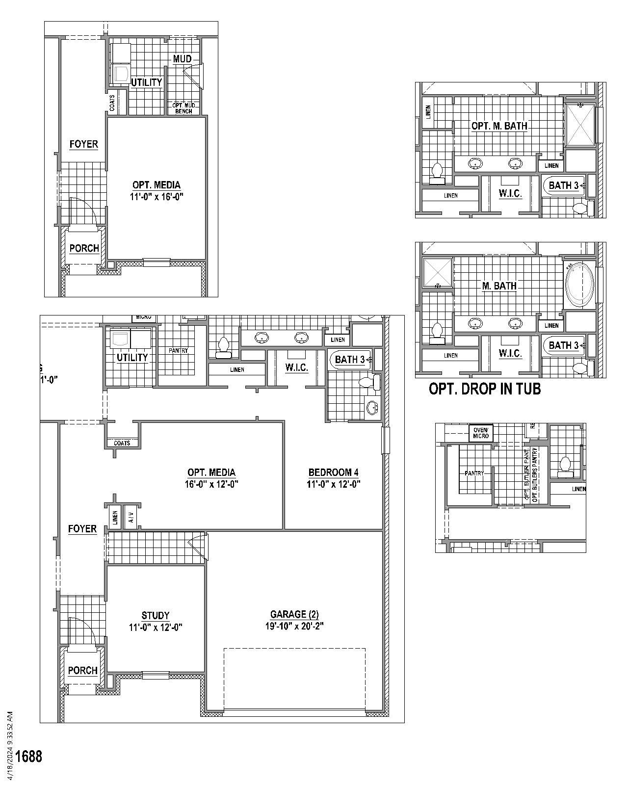
Desirable 1-story home featuring 4 bedrooms, 3 bathrooms and a study. Upon entering the expansive foyer, you are greeted by two secondary bedrooms and a shared full-size bathroom. Across the hall lies the study, perfect for an exercise room or working from home. Enjoy spending time together in the open and inviting family room which overlooks the kitchen and dining area while offering views of the outdoor living space. The gourmet kitchen features a center island, lots of counter space and a large walk-in pantry. At the back of the home, a private hallway leads you to the main bedroom retreat that boasts an oversized walk-in closet and spacious en-suite bathroom complete with dual sinks, walk-in shower and garden tub. An additional secluded secondary bedroom is perfect for a teen or in-law suite featuring an en-suite bathroom. This home also showcases an oversized garage for all your storage needs. To make this home uniquely yours, you can choose from the numerous options and visit our design gallery for all custom selections.
Floor plan center
View floor plan details for this property.
- Floor Plans
- Exterior Images
- Interior Images
- Other Media
Explore custom options for this floor plan.
- Choose Option
- Include Features
Neighborhood
Community location & sales center
11436 Wulstone Drive
Haslet, TX 76052
11436 Wulstone Drive
Haslet, TX 76052
Driving Directions: Take Hwy 287 North off I-35W. Exit Blue Mound Rd/Willow Springs exit. Turn left on Blue Mound Road and take the Willow Springs exit at round about. Turn right on Wulstone.
Nearby schools
Northwest Independent School District
Elementary school. Grades PK to 5.
- Public school
- Teacher - student ratio: 1:13
- Students enrolled: 516
701 Tierra Vista Way, Fort Worth, TX, 76131
817-698-1950
Middle school. Grades 6 to 8.
- Public school
- Teacher - student ratio: 1:16
- Students enrolled: 1383
1069 Eagle Blvd, Haslet, TX, 76052
817-541-8000
High school. Grades 9 to 10.
- Public school
- Teacher - student ratio: 1:19
- Students enrolled: 3273
1350 Eagle Blvd, Haslet, TX, 76052
817-698-7300
Actual schools may vary. We recommend verifying with the local school district, the school assignment and enrollment process.
Amenities
Home details
Ready to build
Build the home of your dreams with the Plan 1688 plan by selecting your favorite options. For the best selection, pick your lot in Wellington 60s today!
Community & neighborhood
Utilities
- Electric Oncor (888) 313-6862
- Gas Atmos Energy (888) 286-6700
- Telephone Spectrum (833) 897-1618
- Water/wastewater City of Fort Worth (817) 392-4477
Community services & perks
- HOA Fees: $770/year
Neighborhood amenities
Lucky Vapor LLC
1.12 miles away
12250 Business Highway 287 N
Walmart Supercenter
1.65 miles away
2401 Avondale Haslet Rd
Kroger
4.34 miles away
4750 W Bailey Boswell Rd
Walmart Supercenter
4.42 miles away
1401 N Saginaw Blvd
Albertsons
4.65 miles away
1201 N Saginaw Blvd
Walmart Bakery
1.65 miles away
2401 Avondale Haslet Rd
Mini More
2.02 miles away
10905 Middleglen Rd
Shanklee All Things Natural
4.28 miles away
5125 Cedar Springs Dr
Walmart Bakery
4.42 miles away
1401 N Saginaw Blvd
Reservoir at the Music Factory
0.98 mile away
609 Aviator Dr
Bunsie's Burgers
1.40 miles away
12509 Business Highway 287 N
Chicken Express
1.50 miles away
13000 Highway 287
Cafe 287
1.52 miles away
12701 Saginaw Blvd
Taco Bell
1.59 miles away
13050 Highway 287
Queen's Doughnuts
1.79 miles away
2484 Avondale Haslet Rd
MBJ Coffee LLC
4.03 miles away
252 Crowfoot Dr
Starbucks
4.34 miles away
4750 W Bailey Boswell Rd
Starbucks
4.38 miles away
1409 N Saginaw Blvd
Doughnut Snob
4.41 miles away
7341 Lake Rock Dr
Crossroads Boutique & Gifts
1.12 miles away
12250 Business Highway 287 N
Walmart Supercenter
1.65 miles away
2401 Avondale Haslet Rd
Jahcris LLC
2.84 miles away
10212 Wild Berry Dr
Blue Springs Boutique
2.91 miles away
10912 Owl Creek Dr
Big Gunz Clothing & Apparel
3.28 miles away
1097 Schoolhouse Rd
Bonds Ranch
1.69 miles away
10857 Saginaw Blvd
Qdoba Mexican Eats
4.40 miles away
4540 W Bailey Boswell Rd
Blue Bayou
4.88 miles away
12670 Morris Dido Newark Rd
Eagle's Nest
4.90 miles away
8455 Boat Club Rd
Eagle's Point Bar & Grill
4.97 miles away
1029 N Saginaw Blvd
Please note this information may vary. If you come across anything inaccurate, please contact us.
American Legend Homes is a family and employee-owned, award-winning organization focused on thoughtful designs, quality craftsmanship and superior customer service. Since 2003 we’ve built thousands of homes in North Texas and are proud to have expanded into Northern Colorado in 2018.
Drawing upon a combined 75 years of homebuilding experience, our leadership team ensures that every member of the American Legend family understands the critical role they play in building trust and developing long term relationships with each homeowner.
“Built for the way you live” isn’t just a tagline; it’s an operating mantra that defines who we are and our commitment to provide the absolute best customer experience throughout the homebuilding process.
We take an immense amount of pride in making dream homes a reality, and would be honored to partner with you on that journey.
Take the next steps toward your new home
Plan 1688 Plan by American Legend Homes
saved to favorites!
To see all the homes you’ve saved, visit the My Favorites section of your account.
Discover More Great Communities
Select additional listings for more information
We're preparing your brochure
You're now connected with American Legend Homes. We'll send you more info soon.
The brochure will download automatically when ready.
Brochure downloaded successfully
Your brochure has been saved. You're now connected with American Legend Homes, and we've emailed you a copy for your convenience.
The brochure will download automatically when ready.
Way to Go!
You’re connected with American Legend Homes.
The best way to find out more is to visit the community yourself!