Plan 2 Plan
Ready to build
Temecula CA 92590
Home by Brenson Homes

The Price Range displayed reflects the base price of the homes built in this community.
You get to select from the many different types of homes built by this Builder and personalize your New Home with options and upgrades.
4 BR
2.5 BA
2 GR
2,008 SQ FT

Elevation 2A 1/16
Special offers
Explore the latest promotions at Cottages at 4th. Contact Brenson Homes to learn more!
Interest Rate Promotion!!!!
Overview
1 Half Bathroom
2 Stories
Dining Room
Living Room
Loft
Porch
Primary Bed Upstairs
Single Family
Walk-In Closets
Plan 2 Plan Info
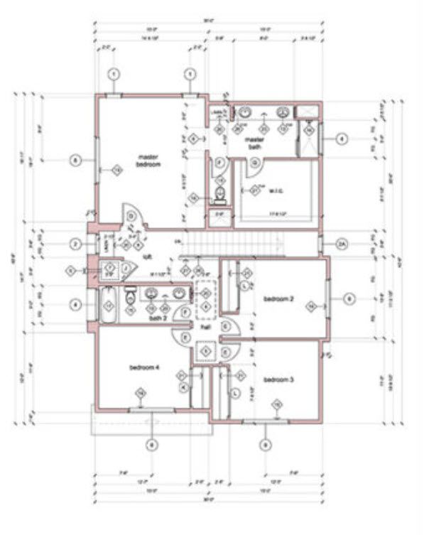
Plan 2 – 4 Bed, 2.5 Bath Discover Plan 2 at Cottages at 4th, a beautifully designed two-story home featuring 4 bedrooms and 2.5 bathrooms. The main floor offers an open concept living space with a modern kitchen, dining area, and a bright family room, perfect for entertaining or everyday living. Upstairs, the primary suite includes a luxurious ensuite bathroom and walk-in closet, while three additional bedrooms share a well-appointed hall bath. Thoughtfully designed, this home combines contemporary style, functional layouts, and comfortable living spaces for the modern family.
Floor plan center
View floor plan details for this property.
- Floor Plans
- Exterior Images
- Interior Images
- Other Media
Neighborhood
Community location
34518 Carnation Court
Yucaipa, CA 92399
41661 Enterprise Circle N Suite 221
Temecula, CA 92590
888-421-4615
https://maps.app.goo.gl/Ba8PRQVpCsXRJ4cJ6
Nearby schools
Yucaipa-calimesa Joint Unified School District
Valley Elementary School
Elementary school. Grades KG to 5.
Public school
Teacher - student ratio: 1:25
Students enrolled: 500
909-797-1125
12333 8th St, Yucaipa, CA, 92399
Yucaipa High School
High school. Grades 9 to 12.
Public school
Teacher - student ratio: 1:23
Students enrolled: 2830
909-797-0106
33000 Yucaipa Blvd, Yucaipa, CA, 92399
GreatSchools ratings are provided by GreatSchools.org and are for reference only. Ratings may not be available for all schools. Please verify school assignments and details with the local school district.
Amenities
Home details
Ready to build
Build the home of your dreams with the Plan 2 plan by selecting your favorite options today!
Community & neighborhood
Social activities
- PicnicArea
Community services & perks
- Picnic tables
- Common Area and Front-yard maintained by the HOA.
- Common Area and Front-yard maintained by the HOA.
- Park
A premier Southern California home builder with a diverse and experienced team, bringing generations of expertise to every project. Committed to quality craftsmanship and innovative design, we create exceptional homes that reflect the needs of modern living.
Take the next steps toward your new home
Plan 2 Plan by Brenson Homes
saved to favorites!
To see all the homes you’ve saved, visit the My Favorites section of your account.
Discover More Great Communities
Select additional listings for more information
We're preparing your brochure
You're now connected with Brenson Homes. We'll send you more info soon.
The brochure will download automatically when ready.
Brochure downloaded successfully
Your brochure has been saved. You're now connected with Brenson Homes, and we've emailed you a copy for your convenience.
The brochure will download automatically when ready.
Way to Go!
You’re connected with Brenson Homes.
The best way to find out more is to visit the community yourself!