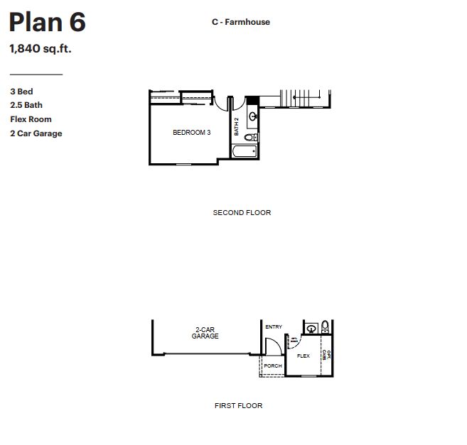
Plan 6 Plan
Ready to build
Roseville CA 95747
Home by Anthem Properties
The Price Range displayed reflects the base price of the homes built in this community.
You get to select from the many different types of homes built by this Builder and personalize your New Home with options and upgrades.
3 BR
2.5 BA
2 GR
1,840 SQ FT

A - Spanish 1/12
Special offers
Explore the latest promotions at Kindred at Sierra Vista. Contact Anthem Properties to learn more!
Rate Buydown Program
Hometown Hero Program
Friends and Family Referral Program
Overview
1 Half Bathroom
2 Stories
Dining Room
Family Room
Flex Room
Porch
Primary Bed Upstairs
Single Family
Plan 6 Plan Info
3 Bed 2.5 Bath Flex Room 2 Car Garage
Floor plan center
View floor plan details for this property.
- Floor Plans
- Exterior Images
- Interior Images
- Other Media
Neighborhood

Community location & sales center
1033 Marmo Cir <br/> Roseville, CA 95747
1033 Marmo Cir <br/> Roseville, CA 95747
888-825-3851
Nearby schools
Center Joint Unified School District
Center High School
High school. Grades 9 to 12.
Public school
Teacher - student ratio: 1:19
Students enrolled: 1312
916-338-6420
3111 Center Court Ln, Antelope, CA, 95843
GreatSchools ratings are provided by GreatSchools.org and are for reference only. Ratings may not be available for all schools. Please verify school assignments and details with the local school district.
Amenities
Kindred at Sierra Vista is a 28.85-acre site located in the Sierra Vista master plan in West Roseville. Neighboring a protected environmental reserve to the south and a future city of Roseville park and recreation facility to the north, Kindred at Sierra Vista offers an opportune neighborhood for families to lay their roots and grow with the city of Roseville.
The north parcel of 5.27 acres will be home to 44 three-to-four-bedroom two-story homes featuring Spanish Eclectic, California Prairie, Monterey and Farmhouse inspired architecture. The plans will host features and finishes perfect for younger families and couples just starting in their home ownership journey. The south parcel 23.58 acres will be home to 115 three to five bedroom single and two-story homes featuring Spanish Eclectic, California Prairie and Farmhouse inspired architecture. Plans in the south parcel will cater to growing and downsizing families.
Kindred at Sierra Vista is an extension of Anthem Properties’ commitment to Growing Places, connected to community, rooted in family and built on pride – another great family community by Anthem Properties.
•7 floor plans, 2 product offerings
•Single and two story homes
•3 to 5 Bedrooms
•1,976 to 3,272 square feet
•2 to 3 Car Garage More info about Kindred at Sierra Vista
Home details
Ready to build
Build the home of your dreams with the Plan 6 plan by selecting your favorite options. For the best selection, pick your lot in Kindred at Sierra Vista today!
Community & neighborhood
Local points of interest
- Carmelita's Mexican Restaurant
- The Boxing Donkey Irish Pub & Restaurant
- Close proximity to a protected environmental reserve
- Close proximity to future City of Roseville park and recreational facility
- Raley's
- Save Mart
- Denio's Farmers Market & Swap Meet
- Raley's ONE
- Westfield Galleria at Roseville
- Fountains at Roseville
- Morgan Creek Golf Club
- Sierra View Country Club
- Blue Line Arts
- Golfland Sunsplash
- Kitchen 747
- MoJoe's Cafe
- Fourscore Coffee
- Timer at the Lodge
- Rose Cafe and Bagel
Health and fitness
- CVS Pharmacy
- F45 Training West Park Roseville
- Mahany Fitness Center
- 9Round Roseville
- Trails
Neighborhood amenities
Antelope Market & Deli
2.47 miles away
3535 Elverta Rd
Raley's
2.48 miles away
4051 Woodcreek Oaks Blvd
WinCo Foods
2.71 miles away
4137 Elverta Rd
India Spices
2.76 miles away
4117 Elverta Rd
Odessa Market
2.79 miles away
8008 Walerga Rd
Redding Pizza Corp
0.78 mile away
8557 Bridgestone Crescent Rd
Rose Cafe & Bagel
0.98 mile away
4070 Baseline Rd
Kitchen747
1.25 miles away
2320 Pleasant Grove Blvd
Mojoe's
1.25 miles away
2330 Pleasant Grove Blvd
Bodega Coffee Co
2.51 miles away
7909 Walagra Rd
Starbucks
2.54 miles away
4001 Woodcreek Oaks Blvd
Honey Donuts
2.74 miles away
8151 Watt Ave
Starbucks
2.81 miles away
4241 Elverta Rd
Jamba
2.93 miles away
7903 Walerga Rd
Elite Sports Apparel
2.21 miles away
5565 Lantern Grove Ln
Pandora Fashion Box
2.90 miles away
3341 Mono Way
Torch By Haley Marie LLC
2.92 miles away
1900 Blue Oaks Blvd
Walmart Supercenter
3.06 miles away
7901 Watt Ave
Sneaker Collective
3.14 miles away
3953 Running Bear Way
Legends at Woodcreek
2.76 miles away
5880 Woodcreek Oaks Blvd
Diamond Plate Bar & Grill
3.31 miles away
5030 Foothills Blvd
Porters House of Draft
3.39 miles away
7456 Foothills Blvd
Cherry Island Bar & Grill
3.55 miles away
2360 Elverta Rd
Moksa Barrel House
4.38 miles away
10007 Foothills Blvd
Please note this information may vary. If you come across anything inaccurate, please contact us.
Founded in 1991, Anthem is a team of 850+ people driven by creativity, passion and direct communication. Anthem has invested in, developed or managed – alone or in partnership – more than 400 residential and commercial projects across North America.
Our growing residential portfolio includes 44,000 homes that are complete, in design or under construction, from mixed-use residential to townhome, rental and single-family homes.
We own, co-own, manage or have previously owned 12 million square feet of retail, industrial and office space, and our land portfolio includes more than 60 communities, spanning 9,100 acres across Canada and the United States.
Anthem is a real estate development, investment and management company that strives, solves and evolves to create better spaces and stronger communities. We are Growing Places
Take the next steps toward your new home
Plan 6 Plan by Anthem Properties
saved to favorites!
To see all the homes you’ve saved, visit the My Favorites section of your account.
Discover More Great Communities
Select additional listings for more information
We're preparing your brochure
You're now connected with Anthem Properties. We'll send you more info soon.
The brochure will download automatically when ready.
Brochure downloaded successfully
Your brochure has been saved. You're now connected with Anthem Properties, and we've emailed you a copy for your convenience.
The brochure will download automatically when ready.
Way to Go!
You’re connected with Anthem Properties.
The best way to find out more is to visit the community yourself!