Samson 36-F2 Plan
Ready to build
Ashburn VA 20148
Home by Van Metre Homes
at West Park IV

Last updated 01/09/2026
The Price Range displayed reflects the base price of the homes built in this community.
You get to select from the many different types of homes built by this Builder and personalize your New Home with options and upgrades.
$63,500
5 BR
4.5 BA
2 GR
4,235 SQ FT

Samson 36-F2 1/45
Overview
1 Half Bathroom
2 Car Garage
4 Bathrooms
4 Stories
4235 Sq Ft
5 Bedrooms
Basement
Dining Room
Flex Room
Game Room
Living Room
Loft
Porch
Primary Bed Upstairs
Single Family
Study
Walk-In Closets
Samson 36-F2 Plan Info
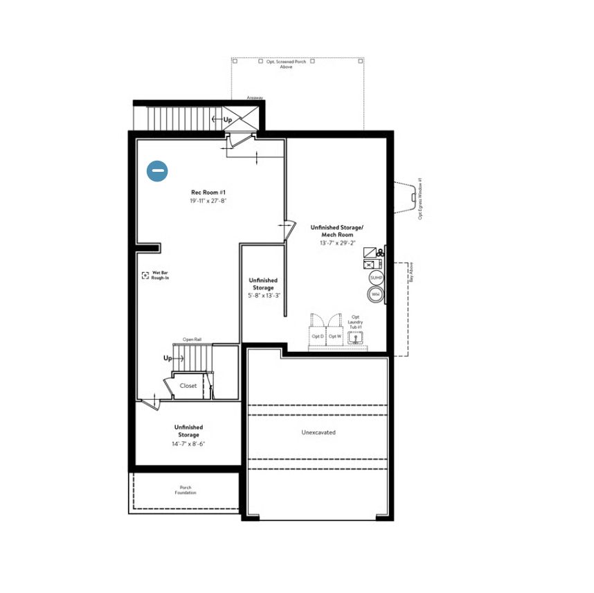
Introducing the Samson 36-F2 at West Park IV-a two-car, front-load garage single family home with up to six bedrooms, five full bathrooms, and one half bathroom. Elevated design meets everyday functionality with this floorplan, featuring a family foyer off the garage to keep daily life organized, a versatile flex room ideal for a home office, and an open loft space perfect for relaxing or entertaining. The spacious primary suite includes a generous walk-in closet, adding everyday ease to your routine. The Samson 36-F2 offers build-to-order opportunities on select homesites, allowing you to personalize your new home. Explore a variety of professionally curated interior design packages at different price points to match your style and budget. Certain homesites also offer optional structural enhancements, including a finished basement, walkout basement, bedroom and full bathroom in basement, flex room in basement, wet bar in basement, cubbies, fireplace, and walkout screened porch. Contact the Van Metre Sales Team to learn how you can bring your vision to life! *Pricing, offers, and availability are subject to change without notice. Images, renderings, and site plans are for illustrative purposes only and may not reflect actual homes or features. Some images and renderings may depict interior designs created in collaboration with AI or may represent a similar home. Additional terms and conditions may apply. West Park IV lies within the Airport Impact Overlay District (entirely within 1 Mile Buffer). Due to its proximity to Dulles International Airport, this site is subject to aircraft overflights and aircraft noise. Pricing and availability subject to change. Please see a Van Metre Sales Advisor for details.
Floor plan center
View floor plan details for this property.
- Floor Plans
- Exterior Images
- Interior Images
- Other Media
Neighborhood

Community location
22995 Orchard Grove Dr
Ashburn, VA 20148
22995 Orchard Grove Dr
Ashburn, VA 20148
888-319-2257
- Take 66 W to Exit 53B toward Route 28 N/Dulles Airport - Take exit onto US-50 W toward Winchester - Turn right onto Loudoun County Parkway - Turn left onto Evergreen Mills Rd - Turn right onto Northstar Blvd - Turn left on to Ryan Rd - Turn Left on to Orchard Grove Dr. Community will be on your right. - Showhome Address: 22995 Orchard Grove Drive, Ashburn, VA 20148
Schools near West Park IV
- Loudoun County Public Schools
Actual schools may vary. Contact the builder for more information.
Amenities
Home details
Ready to build
Build the home of your dreams with the Samson 36-F2 plan by selecting your favorite options. For the best selection, pick your lot in West Park IV today!
Community & neighborhood
Local points of interest
- Brambleton Regional Park and Golf Course
- Brambleton Town Center
- Bram Quarter
- Brambleton Corner Plaza
- EatLoco Farmers Market at Brambleton
- Brambleton Community Park
- Legacy Park
Health and fitness
- Multi-purpose fields
- Sport courts
- Tennis
- Pool
- Trails
- Volleyball
- Basketball
Community services & perks
- HOA fees: Yes, please contact the builder
- With Brambleton Town Center two miles away, residents can access limitless shopping, dining, and entertainment opportunities.
- Playground
- Park
Neighborhood amenities
Harris Teeter
0.85 mile away
42415 Ryan Rd
Harris Teeter
2.91 miles away
43300 Southern Walk Plz
Harris Teeter
3.22 miles away
24441 Stone Springs Blvd
Harris Teeter
3.34 miles away
42015 Village Center Plz
Mr Pollo Peruvian Charcoal Chicken
3.39 miles away
23520 Overland Dr
sweetFrog
0.74 mile away
22855 Brambleton Plz
Silver Cake
2.01 miles away
42564 Prescott Green Sq
Woof Gang Bakery & Grooming
2.53 miles away
22556 Amendola Ter
Cold Stone Creamery
0.73 mile away
42385 Ryan Rd
My Thai Place
0.73 mile away
42385 Ryan Rd
Peet's Coffee
0.73 mile away
42385 Ryan Rd
Subway
0.73 mile away
42385 Ryan Rd
Ahso Restaurant
0.74 mile away
22855 Brambleton Plz
Peet's Coffee
0.73 mile away
42385 Ryan Rd
Starbucks
1.13 miles away
41415 Ryan Rd
Tropical Smoothie Cafe
1.66 miles away
23634 Strickland Dr
Dunkin'
2.71 miles away
42876 Truro Parish Dr
Starbucks
2.91 miles away
43300 Southern Walk Plz
Misguided Angels
0.74 mile away
22855 Brambleton Plz
Fashion For Missions International
3.33 miles away
42342 Alder Forest Ter
DSW Designer Shoe Warehouse
3.80 miles away
24570 Dulles Landing Dr
Walmart Supercenter
3.87 miles away
24635 Dulles Landing Dr
Ross Dress For Less
3.92 miles away
24630 Dulles Landing Dr
Broadlands Sports Bar & Grill
2.73 miles away
42882 Truro Parish Dr
Brew Birds
3.33 miles away
42020 Village Center Plz
Bonefish Grill
3.45 miles away
43135 Broadlands Center Plz
Clyde's Willow Creek Farm
3.56 miles away
42920 Broadlands Blvd
Senor Tequila's
3.62 miles away
43750 Central Station Dr
Please note this information may vary. If you come across anything inaccurate, please contact us.
We continually strive to set new standards for what it means to be a local builder. Living in our own communities, we want to make sure our neighbors enjoy years of trouble-free homeownership. From our engineers and craftsmen, to our design consultants and Customer Care Ambassadors, everyone is focused on making sure you love your Van Metre home for years to come.
Take the next steps toward your new home
Samson 36-F2 Plan by Van Metre Homes
saved to favorites!
To see all the homes you’ve saved, visit the My Favorites section of your account.
Discover More Great Communities
Select additional listings for more information
We're preparing your brochure
You're now connected with Van Metre Homes. We'll send you more info soon.
The brochure will download automatically when ready.
Brochure downloaded successfully
Your brochure has been saved. You're now connected with Van Metre Homes, and we've emailed you a copy for your convenience.
The brochure will download automatically when ready.
Way to Go!
You’re connected with Van Metre Homes.
The best way to find out more is to visit the community yourself!