Saratoga Plan
Ready to build
2433 Oakhurst, Johnstown CO 80534
Home by Journey Homes
at Southridge

The Price Range displayed reflects the base price of the homes built in this community.
You get to select from the many different types of homes built by this Builder and personalize your New Home with options and upgrades.
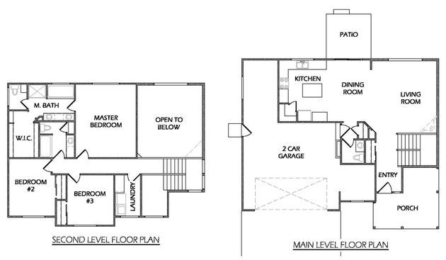
3 BR
2.5 BA
3 GR
1,738 SQ FT

Exterior 1/40
Overview
1 Half Bathroom
1738 Sq Ft
2 Bathrooms
2 Stories
3 Bedrooms
3 Car Garage
Single Family
Vaulted Ceiling
Saratoga Plan Info
The Saratoga is a 3-bedroom, 2-1/2 bath, 2 story home with 1738 finished sq. ft. unfinished basement. The open floor plan flows so nicely with the substantial living room flowing into the spacious kitchen/dining area. An oversized 3-car tandem garage makes this a complete package. The legacy finish on this home with hardwood flooring the entry/kitchen & dining areas, two-tone paint & upgraded kitchen splash tiling. Also comes with a 5-piece Primary with a soaker tub.
Floor plan center
View floor plan details for this property.
- Floor Plans
- Exterior Images
- Interior Images
- Other Media
Neighborhood
Community location & sales center
2433 Oakhurst
Johnstown, CO 80534
2433 Oakhurst
Johnstown, CO 80534
888-986-2761
From I-25 take the exit to head onto 402. Exit I-25 at Colorado 402 and head East. Turn South (Right) on S County Rd 3E.
Schools near Southridge
- Thompson School District R-2j
Actual schools may vary. Contact the builder for more information.
Amenities
Home details
Ready to build
Build the home of your dreams with the Saratoga plan by selecting your favorite options. For the best selection, pick your lot in Southridge today!
Community & neighborhood
Community services & perks
- HOA fees: Unknown, please contact the builder
Neighborhood amenities
Walmart Supercenter
7.79 miles away
1325 Denver Ave
Sam's Club
8.44 miles away
1200 E Eisenhower Blvd
La Carniceria Mexico
8.69 miles away
905 Railroad St
Hays Market
8.75 miles away
919 Mountain Ave
Natural Grocers
8.80 miles away
745 N Lincoln Ave
Original Heavenly CA
1.07 miles away
116 W Charlotte St
Canyon Bakehouse
4.63 miles away
3600 Ronald Reagan Blvd
I Do Cakes
7.15 miles away
1525 95th Ave
Bimbo Bakeries USA
7.45 miles away
373 Denver Ave
Walmart Bakery
7.79 miles away
1325 Denver Ave
Bubby's Finest
0.19 mile away
1923 Windsong Dr
Taco Bell
0.22 mile away
50 Telep Ave
Subway
0.83 mile away
67 Center Court Drive
Little House Restaurant
0.90 mile away
417 Charlotte St
Subway
1.10 miles away
22 S Parish Ave
Duck Donuts
5.28 miles away
4842 Larimer Pkwy
Front Range Donuts LLC
5.28 miles away
4842 Larimer Pkwy
Lift Coffee Bar
5.31 miles away
4800 Larimer Pkwy
Starbucks
5.53 miles away
4910 Thompson Pkwy
Ziggi's Coffee
5.54 miles away
4771 Thompson Pkwy
Johnstown Clothing Embroidery
1.11 miles away
18 S Parish Ave
Burlington
5.41 miles away
4832 Thompson Pkwy
Red Wing Shoe Store
5.48 miles away
4946 Thompson Pkwy
White House/Black Market
6.16 miles away
5943 Sky Pond Dr
Under Armour Factory House
6.18 miles away
5833 McWhinney Blvd
Immortal Bar
1.13 miles away
1 N Parish Ave
Bonefish Grill
5.55 miles away
4920 Thompson Pkwy
Qdoba Mexican Eats
5.57 miles away
4791 Thompson Pkwy
Lazy Dog Johnstown
5.60 miles away
4801 Thompson Pkwy
Please note this information may vary. If you come across anything inaccurate, please contact us.
Journey Homes offers comfortable, affordable new homes in many communities throughout Northern Colorado. Surrounded by the natural beauty of Colorado with recreational access to parks, hiking, skiing, and lakes, our communities offer a great place to live at a price you can afford. Our new homes are ideal for everyone and for those relocating to Colorado. Our experienced sales team will help you find the perfect home that fits your needs and exceeds your expectations.
Take the next steps toward your new home
Saratoga Plan by Journey Homes
saved to favorites!
To see all the homes you’ve saved, visit the My Favorites section of your account.
Discover More Great Communities
Select additional listings for more information
We're preparing your brochure
You're now connected with Journey Homes. We'll send you more info soon.
The brochure will download automatically when ready.
Brochure downloaded successfully
Your brochure has been saved. You're now connected with Journey Homes, and we've emailed you a copy for your convenience.
The brochure will download automatically when ready.
Way to Go!
You’re connected with Journey Homes.
The best way to find out more is to visit the community yourself!