South Wind Plan
Ready to build
Dallas Drive Cobbham Road, Thomson GA 30824
Home by Great Southern Homes

Last updated 1 day ago
3 BR
2.5 BA
1 GR
1,488 SQ FT

Elevation A 1/5
Special offers
Explore the latest promotions at Bent Creek Village. Contact Great Southern Homes to learn more!
3.99% Rate
Overview
1 Car Garage
1 Half Bathroom
1488 Sq Ft
2 Bathrooms
2 Stories
3 Bedrooms
Primary Bed Upstairs
Townhome
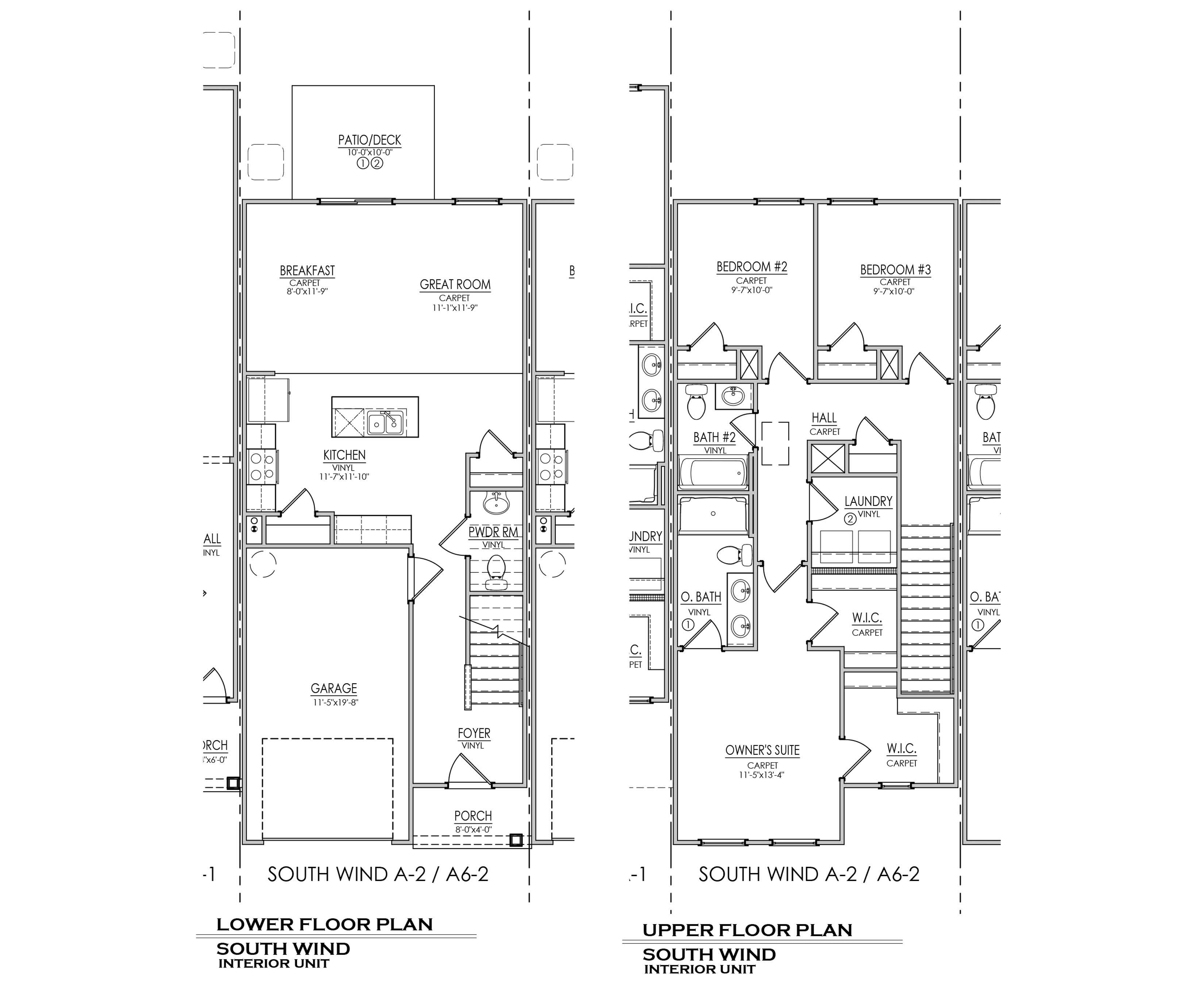
South Wind Plan Info
South Wind (1488 sq. ft.) is a townhome with 3 bedrooms, 2.5 bathrooms and 1-car garage. Features include primary bed upstairs.
Floor plan center
View floor plan details for this property.
- Floor Plans
- Exterior Images
- Interior Images
- Other Media
Neighborhood
Community location & sales center
Dallas Drive Cobbham Road
Thomson, GA 30824
Dallas Drive Cobbham Road
Thomson, GA 30824
888-662-4768
I-20 W, take exit 175. Take a left on Cobbham Rd. In 3.2 miles, take a right on Thomson Bypass. Neighborhood will be on your right.
Schools near Bent Creek Village
- Mcduffie County Schools
Actual schools may vary. Contact the builder for more information.
Amenities
Home details
Green program
LIVE GREEN. LIVE SMART.
Ready to build
Build the home of your dreams with the South Wind plan by selecting your favorite options. For the best selection, pick your lot in Bent Creek Village today!
Community & neighborhood
Community services & perks
- HOA fees: Unknown, please contact the builder
Great Southern Homes has been building homes in South Carolina since 1993. They have made themselves experts in the region and build their homes with local weather and climate conditions in mind. All of their homes are built to be energy efficient, stylish and functional. They offer everything from smaller affordable plans to stately semi-custom designs. At Great Southern Homes, we believe in quality built homes for today's growing families at affordable prices. Just as importantly, we understand the process of buying a new home includes a vocabulary of new terms and stressful decisions. This understanding sets us apart from the rest. After all, it's not only a new home, it's an important investment.
South Wind Plan by Great Southern Homes
saved to favorites!
To see all the homes you’ve saved, visit the My Favorites section of your account.
Discover More Great Communities
Select additional listings for more information
We're preparing your brochure
You're now connected with Great Southern Homes. We'll send you more info soon.
The brochure will download automatically when ready.
Brochure downloaded successfully
Your brochure has been saved. You're now connected with Great Southern Homes, and we've emailed you a copy for your convenience.
The brochure will download automatically when ready.
Way to Go!
You’re connected with Great Southern Homes.
The best way to find out more is to visit the community yourself!