Heartwood
The 2299
13708 NE 108th Street, Vancouver, WA, 98682
by Holt Homes
From $614,960 This is the starting price for this plan and is subject to change.
Monthly HOA fees: $79
- 4 Beds
- 2.5 Baths
- 3 Car garage
- 2,299 Sq Ft
Overview
Floor plan features
- 1 Half Bathroom
- 2 Stories
- Single Family
Floor plan description
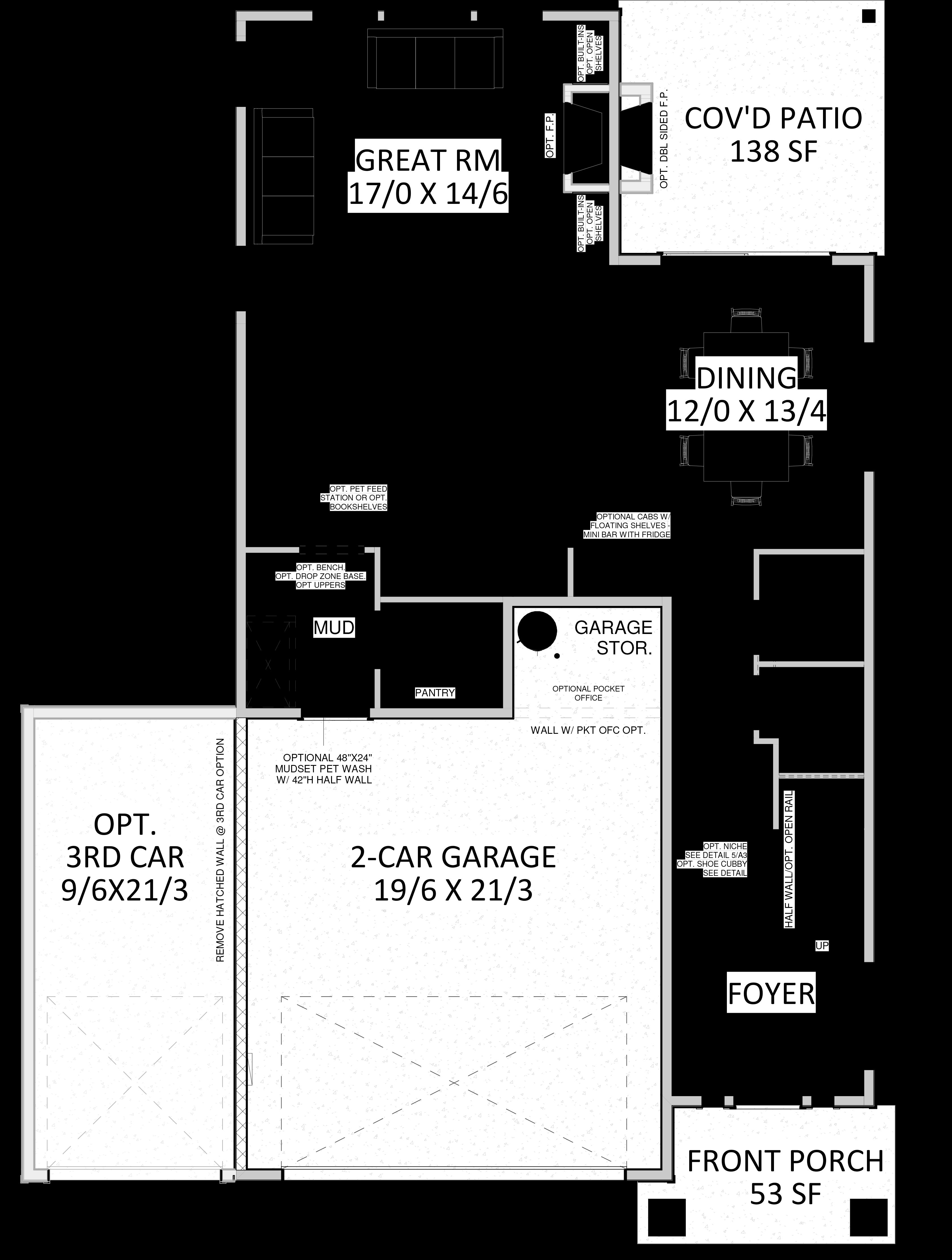
The 2299 floor plan offers a welcoming 2-story layout designed for comfort and functionality. Enter through the foyer, leading directly to a dining room and kitchen that seamlessly connect to a spacious great room—perfect for gatherings. Opt for the gourmet kitchen upgrade, with additional cabinets and a large island for casual meals.The mudroom off the garage keeps things organized, with options for a pet wash, shoe cubby, or drop zone. From the dining area, step out to the covered patio, where you can add an optional fireplace to create a cozy outdoor living area, ideal for al fresco dining and seasonal gatherings.Upstairs, a versatile loft can be converted into a 4th bedroom, adding flexibility for growing families. The primary suite serves as a peaceful retreat with a spacious walk-in ...
Explore this home
Explore custom options for this floor plan.
Community highlights
About Heartwood
New Homes For Sale in Vancouver, WA – Discover Heartwood by Holt HomesExplore a new home community by Holt Homes in Vancouver, WA, offering thoughtfully designed new construction homes. Nestled in the historic Orchards area, Heartwood blends scenic outdoor living with everyday convenience—perfect for growing families, first-time homeowners, and anyone seeking a neighborhood where connection and comfort come together. With parks, trails, shopping, and entertainment all within reach, Heartwood puts the best of Clark County right outside your front door.Choose from a variety of floor plans that fit every stage of life, with flexible layouts ideal for everyday living and entertaining. Each Holt home is built with durable materials, energy-efficient features, and the personalized touches that m...
Neighborhood
Community location & sales center
13708 NE 108th Street Vancouver, WA 98682
13708 NE 108th Street Vancouver, WA 98682
888-861-7204
https://maps.app.goo.gl/j4ENXcM2xhvVvqvu7
Amenities
Community & neighborhood
Builder details
Holt Homes

For more than three decades, Holt Homes has built new construction homes for families in Oregon and Southwest Washington. The quality and experience of our people, the ease and efficiency of our approach, and the livability of our communities work hand-in-hand to make Holt Homes the largest locally-grown home builder in the region.
Our purpose is to create better places to live in the Pacific Northwest. Our approach to working with you is simple: provide a guiding hand through each step of the process. Make it friendly and easy to understand. Offer better building solutions in partnership with the best area tradespeople and suppliers. Then to build the right home with the materials and options that are right for this region. Most importantly, to build the home that is right for you. We believe that a home built right has these four ingredients: good land, good people, good service, and good value.
What makes a home uniquely yours? The details. The extras, features and touches that fill out your creative vision. As a production homebuilder we work to always balance pricing with optionality. When you buy a home from Holt, you can always leave your personal mark.
Take the next steps toward your new home
This listing's information was verified with the builder for accuracy 2 days ago
The 2299 Plan by Holt Homes
saved to favorites!
To see all the homes you’ve saved, visit the My Favorites section of your account.
Discover More Great Communities
Select additional listings for more information
We're preparing your brochure
You're now connected with Holt Homes. We'll send you more info soon.
The brochure will download automatically when ready.
Brochure downloaded successfully
Your brochure has been saved. You're now connected with Holt Homes, and we've emailed you a copy for your convenience.
The brochure will download automatically when ready.
Way to Go!
You’re connected with Holt Homes.
The best way to find out more is to visit the community yourself!