The Barclay II (elevation 2E) Plan
Ready to build
Shelby Township MI 48315
Home by AP Builders

The Price Range displayed reflects the base price of the homes built in this community.
You get to select from the many different types of homes built by this Builder and personalize your New Home with options and upgrades.
4 BR
2.5 BA
3 GR
3,010 SQ FT

Barclay II E 1/2
Overview
1 Half Bathroom
2 Bathrooms
2 Stories
3 Car Garage
3010 Sq Ft
4 Bedrooms
Breakfast Area
Dining Room
Family Room
Fireplaces
Primary Bed Upstairs
Single Family
Study
Walk-In Closets
The Barclay II (elevation 2E) Plan Info
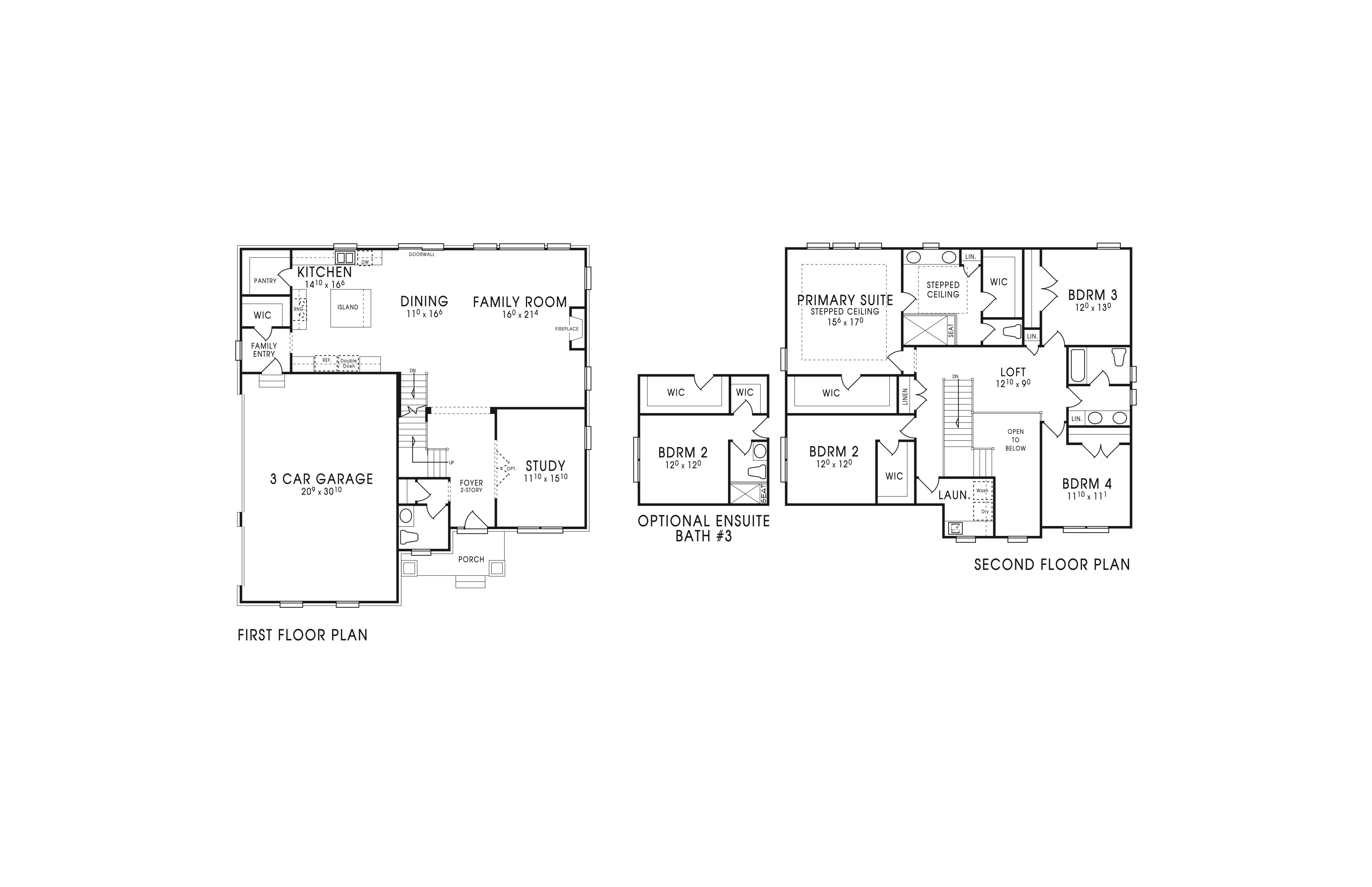
Four bedrooms + 2½ baths. Modern floor plan with gourmet kitchen, walk-in pantry and kitchen island open to dining room and spacious family room with fireplace. Private study off foyer. Family entry with walk-in closet located off 3-car garage entrance. Primary suite features decorative stepped ceiling, luxurious full bath, walk-in and linen closets. Convenient second floor laundry. Optional third full bathroom. *All pricing subject to change without notice.
Floor plan center
View floor plan details for this property.
- Floor Plans
- Exterior Images
- Interior Images
- Other Media
Neighborhood
Community location
11849 Encore Court
Shelby Township, MI 48315
11849 Encore Court
Shelby Township, MI 48315
888-480-0165
Northeast corner of 25 Mile and Jewell in Shelby Twp
Nearby schools
Utica Community Schools
Elementary-Middle school. Grades PK to 6.
- Public school
- Teacher - student ratio: 1:19
- Students enrolled: 615
53550 Wolf Dr, Shelby Twp, MI, 48316
586-797-4300
Elementary-Middle school. Grades PK to 6.
- Public school
- Teacher - student ratio: 1:18
- Students enrolled: 594
53800 Mound Rd, Shelby Twp, MI, 48316
586-797-5800
Middle-High school. Grades 7 to 9.
- Public school
- Teacher - student ratio: 1:22
- Students enrolled: 1043
6400 25 Mile Rd, Shelby Twp, MI, 48316
586-797-3500
High school. Grades 9 to 12.
- Public school
- Teacher - student ratio: 1:20
- Students enrolled: 1835
6500 25 Mile Rd, Shelby Twp, MI, 48316
586-797-1300
Actual schools may vary. We recommend verifying with the local school district, the school assignment and enrollment process.
Amenities
Home details
Ready to build
Build the home of your dreams with the The Barclay II (Elevation 2E) plan by selecting your favorite options. For the best selection, pick your lot in Encore of Shelby today!
Community & neighborhood
Community services & perks
- HOA fees: Unknown, please contact the builder
Neighborhood amenities
Vince & Joe's Fruit Market
1.01 miles away
55178 Van Dyke Ave
Kroger
1.48 miles away
7644 26 Mile Rd
Meijer
1.50 miles away
8401 26 Mile Rd
Walmart Supercenter
1.85 miles away
51450 Shelby Pkwy
Meijer
2.25 miles away
15375 24 Mile Rd
Bread & Roses
1.26 miles away
56258 Van Dyke Ave
Meijer Bakery
1.50 miles away
8401 26 Mile Rd
Militello's Bakery
1.54 miles away
52950 Van Dyke Ave
Walmart Bakery
1.85 miles away
51450 Shelby Pkwy
Baiz Enterprises Inc
0.56 mile away
11738 Hiawatha Dr
Hamlin Pub
1.01 miles away
55076 Van Dyke Ave
Leo's Coney Island
1.01 miles away
55250 Van Dyke Ave
Menchie's Frozen Yogurt
1.01 miles away
55124 Van Dyke Ave
Mezza of Shelby Management, LLC
1.01 miles away
55202 Van Dyke Ave
Starbucks
1.20 miles away
8200 26 Mile Rd
Coffee Beanery
1.40 miles away
52857 Schoenherr Rd
Tropical Smoothie Cafe
1.56 miles away
57290 Van Dyke Rd
Dunkin'
1.99 miles away
51511 Schoenherr Rd
Starbucks
2.04 miles away
12129 23 Mile Rd
Shoe Strings
1.01 miles away
55112 Van Dyke Ave
Valentina's Posh Boutique
1.01 miles away
55196 Van Dyke Ave
Kohl's
1.20 miles away
8320 26 Mile Rd
Target
1.20 miles away
8200 26 Mile Rd
Trim Scout
1.32 miles away
55110 Timbers Edge Dr
Hamlin Pub
1.01 miles away
55076 Van Dyke Ave
Jake O'Malley's Irish Pub
1.06 miles away
11417 26 Mile Rd
Buffalo Wild Wings
1.34 miles away
8669 26 Mile Rd
Chili's
1.39 miles away
8296 26 Mile Rd
Qdoba Mexican Eats
1.42 miles away
56653 Van Dyke Ave
Please note this information may vary. If you come across anything inaccurate, please contact us.
The founders of AP Builders, Steve Perlman and Pete Alshab, are proud to bring you a combined 60 years of invaluable insight into building, developing, and constructing premier residential communities that homeowners are proud to call home. They are well-known throughout the home building industry for developing award-winning homes and residential communities that feature innovative architectural designs. Steve Perlman was a founding principal of Ivanhoe-Huntley Homes, a land development and Top 5 Michigan home builder that constructed thousands of homes in the metro Detroit area. Pete Alshab held the position of Director of New Home Construction and Development with Ivanhoe-Huntley Homes where he oversaw the construction of dozens of new home communities. Their commitment and expertise in this industry is evident with the numerous accolades received with Ivanhoe-Huntley Homes including Michigan Community of the Year, Developer of the Year, and Builder of the Year amongst many other awards.
Take the next steps toward your new home
The Barclay II (elevation 2E) Plan by AP Builders
saved to favorites!
To see all the homes you’ve saved, visit the My Favorites section of your account.
Discover More Great Communities
Select additional listings for more information
We're preparing your brochure
You're now connected with AP Builders. We'll send you more info soon.
The brochure will download automatically when ready.
Brochure downloaded successfully
Your brochure has been saved. You're now connected with AP Builders, and we've emailed you a copy for your convenience.
The brochure will download automatically when ready.
Way to Go!
You’re connected with AP Builders.
The best way to find out more is to visit the community yourself!