The Caldwell Plan
Ready to build
Seclusion Shores Drive, Mineral VA 23117
Home by West Homes

Last updated 01/14/2026
The Price Range displayed reflects the base price of the homes built in this community.
You get to select from the many different types of homes built by this Builder and personalize your New Home with options and upgrades.
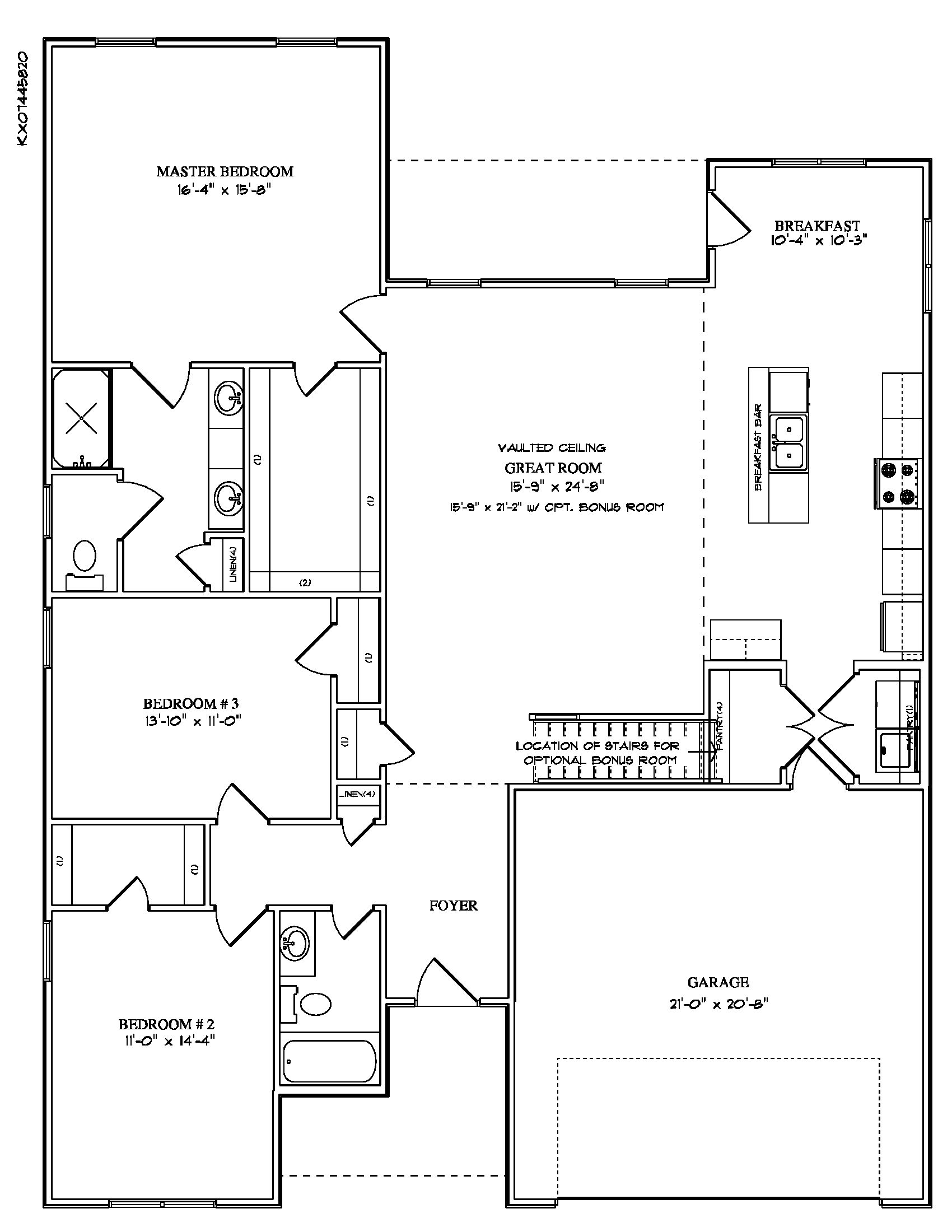
3 BR
2 BA
2 GR
1,774 SQ FT

Craftsman 1/36
Overview
1 Story
Breakfast Area
Covered Patio
Family Room
Porch
Primary Bed Downstairs
Single Family
Vaulted Ceiling
Walk-In Closets
The Caldwell Plan Info
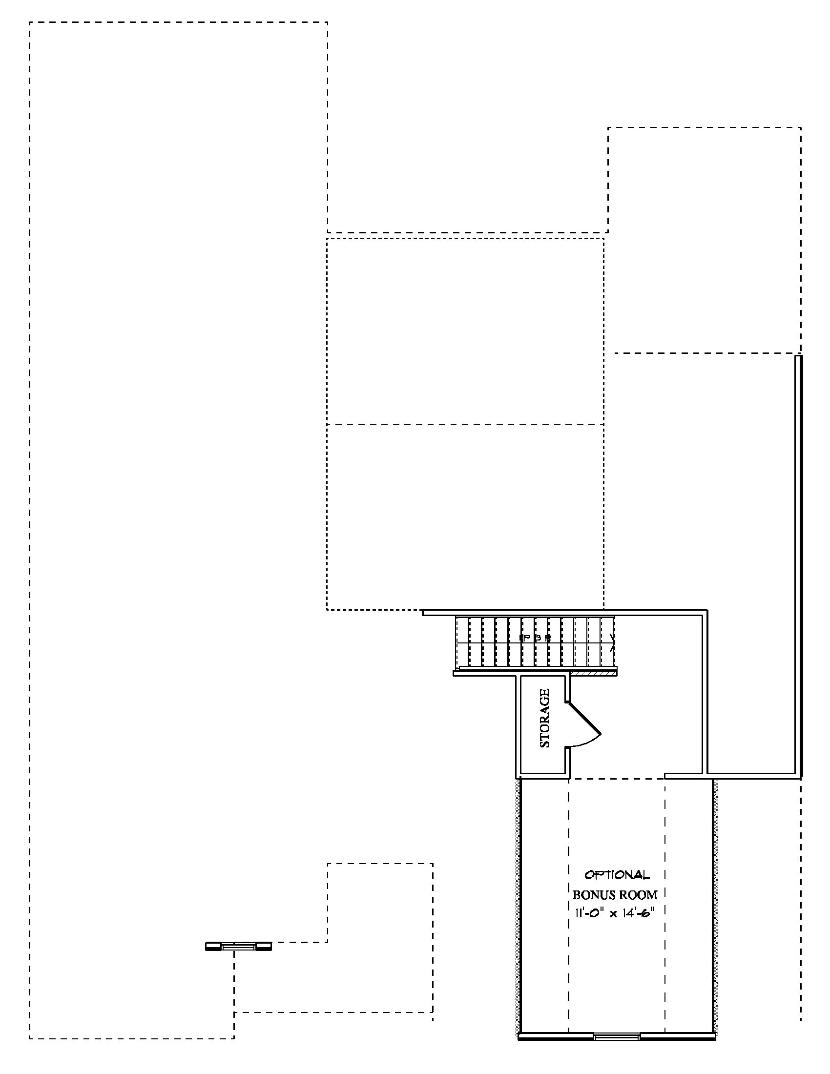
Welcome to the Caldwell by West Homes, a 1-story home w/2-car garage that provides what your family needs. With 1,771 sq ft on the first floor, you have an open Great Room, Kitchen & Breakfast area which is great for entertaining. You also have a master bedroom suite w/private bathroom and large walk-in closet, in addition to two more bedrooms and one additional bathroom. This floor plan also provides you with the option to add a 2nd floor with a bonus room and/or a 4th bedroom and 3rd bathroom option. For more information visit our website at www.WestHomes.com or contact one of our Sales Associates today!
Floor plan center
View floor plan details for this property.
- Floor Plans
- Exterior Images
- Interior Images
- Other Media
Neighborhood
Community location & sales center
Seclusion Shores Drive
Mineral, VA 23117
Seclusion Shores Drive
Mineral, VA 23117
888-989-4289
Schools near Seclusion Shores
- Louisa County Public Schools
Actual schools may vary. Contact the builder for more information.
Amenities
Home details
Ready to build
Build the home of your dreams with the The Caldwell plan by selecting your favorite options. For the best selection, pick your lot in Seclusion Shores today!
Community & neighborhood
Local points of interest
- Views
- Lake
- Fishing
- WoodedAreas
Social activities
- Pavillion/Ramada
- PicnicArea
Community services & perks
- HOA fees: Unknown, please contact the builder
- Near Local Shops and Restaurants
- Community Center
At West Homes, we take pride in delivering quality built homes at competitive prices. As a third-generation homebuilding company, with over 30 years of experience in making dreams come true, we’ve not only been around the block- we’ve built a few along the way. In addition to building over 500 beautiful homes, we work with our sister companies to plan and develop communities throughout Virginia, North Carolina and Tennessee. We care about where you live, and we’re here to support you in your dream of planting roots and building dreams. When you’re ready to go home, go West Homes.
Take the next steps toward your new home
The Caldwell Plan by West Homes
saved to favorites!
To see all the homes you’ve saved, visit the My Favorites section of your account.
Discover More Great Communities
Select additional listings for more information
We're preparing your brochure
You're now connected with West Homes. We'll send you more info soon.
The brochure will download automatically when ready.
Brochure downloaded successfully
Your brochure has been saved. You're now connected with West Homes, and we've emailed you a copy for your convenience.
The brochure will download automatically when ready.
Way to Go!
You’re connected with West Homes.
The best way to find out more is to visit the community yourself!