Oak Park
The Caldwell
20 Shore Pine Drive, Youngsville, NC, 27596
by West Homes
From $379,990 This is the starting price for this plan and is subject to change.
Yearly HOA fees: $360
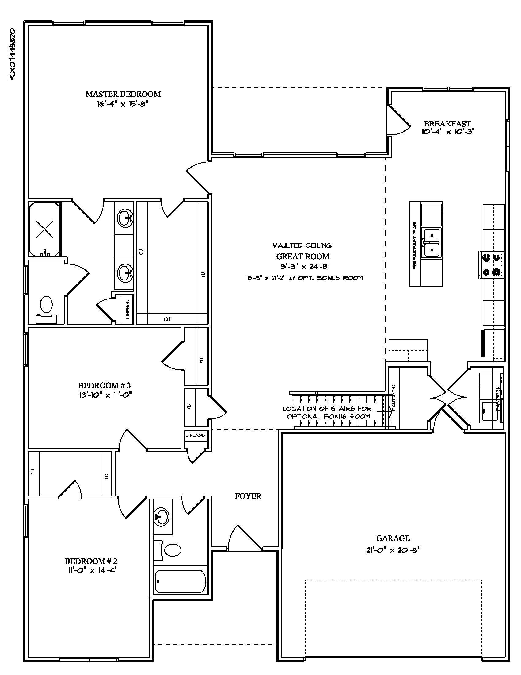
- 3 Beds
- 2 Baths
- 2 Car garage
- 1,774 Sq Ft
Overview
Floor plan features
- 1 Story
- Breakfast Area
- Covered Patio
- Family Room
- Porch
- Primary Bed Downstairs
- Single Family
- Vaulted Ceiling
- Walk-In Closets
Floor plan description
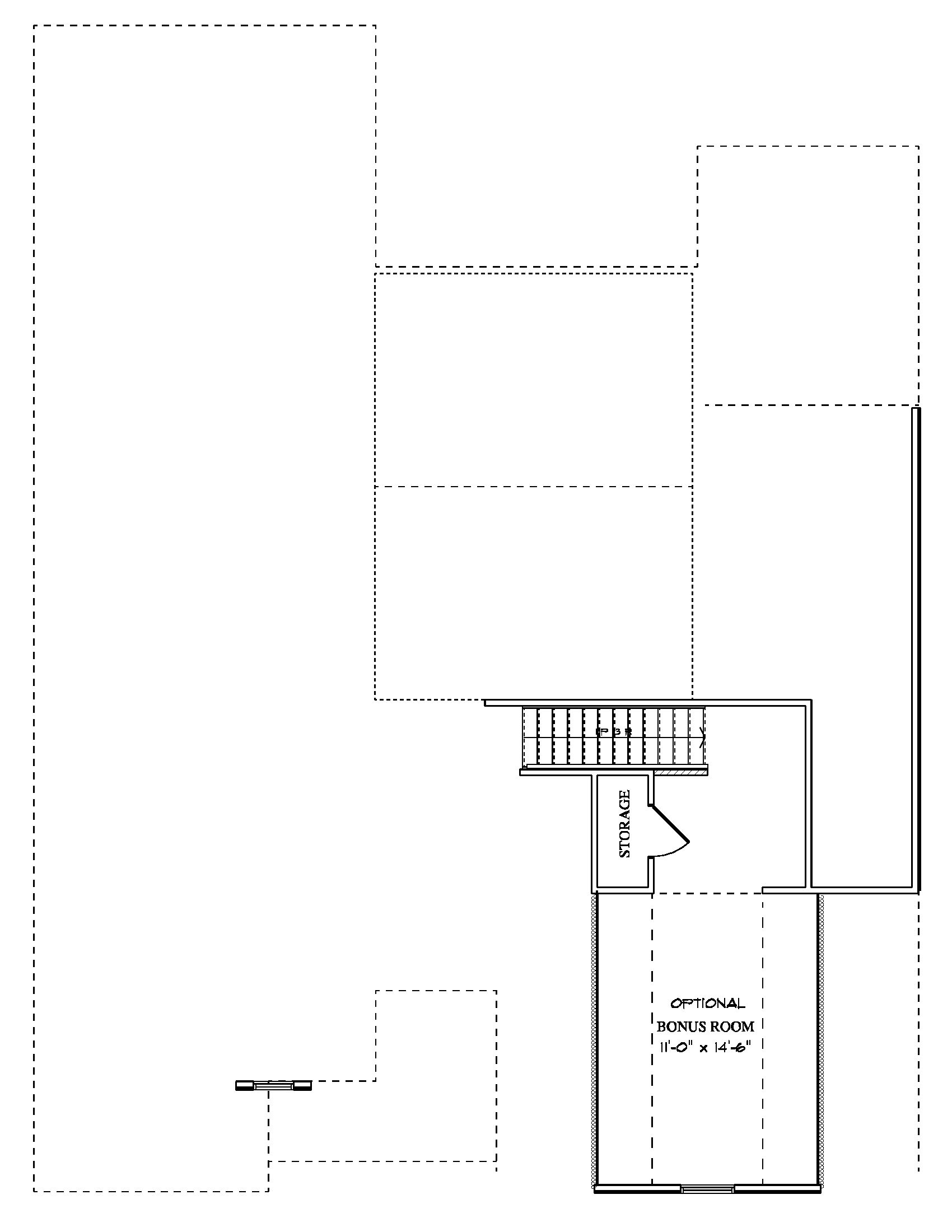
Welcome to the Caldwell by West Homes, a 1-story home w/2-car garage that provides what your family needs. With 1,771 sq ft on the first floor, you have an open Great Room, Kitchen & Breakfast area which is great for entertaining. You also have a master bedroom suite w/private bathroom and large walk-in closet, in addition to two more bedrooms and one additional bathroom. This floor plan also provides you with the option to add a 2nd floor with a bonus room and/or a 4th bedroom and 3rd bathroom option. For more information visit our website at www.WestHomes.com or contact one of our Sales Associates today!
Explore this home
Explore custom options for this floor plan.
Special offers
Explore the latest promotions at Oak Park. to learn more!
$15K to Use Your Way!
Enjoy up to $15,000 to Use Your Way; apply it toward closing costs, a rate buydown, or both with combined builder and lender credits. Available on select homes for May contracts using a preferred lender. This offer runs through 05/31/2026.
Community highlights
Community amenities
Outdoor Recreation
Views
Wooded Areas
About Oak Park
Welcome to Oak Park by West Homes where we pride ourselves on delivering you a quality built new home at a competitive price that will stand the test of time. Oak Park offers you 4 to 5 bedroom homes with 2 to 3 baths and prices starting from the $300's! When you visit Oak Park our staff will guide your through the designing and building of your new home, from choosing a floor plan to handing you the keys. We also offer you a great list of standard features from energy efficient windows, stainless steel appliances to concrete broom finished sidewalks & driveways. Contact Oak Park today as you will be surprised what we can offer - so much more for your money and the lifestyle of a beautiful new community in a great location! Oak Park is conveniently located just 15 minutes from Wake Forest...
Neighborhood

Community location & sales center
20 Shore Pine Drive Youngsville, NC 27596
20 Shore Pine Drive Youngsville, NC 27596
888-615-1208
From Route 1 South take Bert Winston Road for approximately 4.5 miles until that turns into Oak Park Blvd., then take left on Glen Loft Drive and right on Shore Pine Drive. Model will be on your right. From Route 1 North take Hicks Road for approximately 6.5 miles and then a left on Oak Park Blvd., then take left on Glen Loft Drive and right on Shore Pine Drive. Model will be on your right.
Schools near Oak Park
Franklin County Schools
Public Elementary School
Franklinton Elementary School
Grades KG to 5
919-494-2479
431 S Hillsborough St, Franklinton, NC, 27525
Class ratio
1:14
Enrollment
522
Public Middle School
Cedar Creek Middle School
Grades 6 to 8
919-554-4848
2228 Cedar Creek Rd, Youngsville, NC, 27596
Class ratio
1:13
Enrollment
515
Public High School
Franklinton High School
Grades 9 to 12
919-494-2332
910 Cedar Creek Rd, Franklinton, NC, 27525
Class ratio
1:18
Enrollment
1182
GreatSchools ratings are provided by GreatSchools.org and are for reference only. Ratings may not be available for all schools. Please verify school assignments and details with the local school district.
Amenities
Community & neighborhood
Local points of interest
- Views
- OutdoorRecreation
- WoodedAreas
Utilities
- Electric Wake Electric (919) 863-6300
- Water/wastewater Franklin County (919) 566-6177
Neighborhood amenities
Food Lion
2.48 miles away
33801 US Highway 1
Wilton Food Mart
2.48 miles away
2520 Highway 96
Food Lion
3.05 miles away
1160 US 1 Hwy
La Potosina Grocery
4.44 miles away
406 US 1 Hwy
Harris Crossing
5.58 miles away
13686 Capital Blvd
The Vitamin Shoppe
6.86 miles away
12616 Capital Blvd
Cravin' Confections Dessert Bar
6.98 miles away
3612 Rogers Branch Rd
Walmart Bakery
7.74 miles away
705 Retail Way
Nothing Bundt Cakes
8.27 miles away
505 Dr Calvin Jones Hwy
Hardee's
2.15 miles away
3257 US 1 Hwy
Home Town Cafe
2.23 miles away
3370 US 1 Hwy
Chen's Kitchen
2.24 miles away
3392 US 1 Hwy
Domino's
2.40 miles away
3460 US 1 Hwy
RST Specialties LLC
2.43 miles away
12 Water St
Full Circle
3.17 miles away
120 E Main St
Authentic Impact
5.54 miles away
13654 Capital Blvd
Starbucks
5.58 miles away
13686 Capital Blvd
Tropical Smoothie Cafe
6.82 miles away
1009 Stadium Dr
Family Dollar
2.26 miles away
3382 US 1 Hwy
Closet Treshurz LLC
2.42 miles away
19 S Main St
Big & Small Peer Support Inc
2.81 miles away
209 N Chavis St
Family Dollar
3.08 miles away
1140 US 1 Hwy
Rack Room Shoes
6.87 miles away
12646 Capital Blvd
Eli's Tavern
2.44 miles away
20 S Main St
Owlgs Roost Brewery
2.50 miles away
20 N Main St
Unwined on White
6.90 miles away
153 S White St
Norse Brewing Company
6.90 miles away
203 Brooks St
Gatehouse Tavern
7.21 miles away
964 Gateway Commons Cir
Please note this information may vary. If you come across anything inaccurate, please contact us.
Builder details
West Homes

At West Homes, we take pride in delivering quality built homes at competitive prices. As a third-generation homebuilding company, with over 30 years of experience in making dreams come true, we’ve not only been around the block- we’ve built a few along the way. In addition to building over 500 beautiful homes, we work with our sister companies to plan and develop communities throughout Virginia, North Carolina and Tennessee. We care about where you live, and we’re here to support you in your dream of planting roots and building dreams. When you’re ready to go home, go West Homes.
Take the next steps toward your new home
The Caldwell Plan by West Homes
saved to favorites!
To see all the homes you’ve saved, visit the My Favorites section of your account.
Discover More Great Communities
Select additional listings for more information
We're preparing your brochure
You're now connected with West Homes. We'll send you more info soon.
The brochure will download automatically when ready.
Brochure downloaded successfully
Your brochure has been saved. You're now connected with West Homes, and we've emailed you a copy for your convenience.
The brochure will download automatically when ready.
Way to Go!
You’re connected with West Homes.
The best way to find out more is to visit the community yourself!