The Carlsbad Plan
Ready to build
3704 Richland Drive, Farmersville TX 75442
Home by Meritage Homes
Last updated 09/16/2025
The Price Range displayed reflects the base price of the homes built in this community.
You get to select from the many different types of homes built by this Builder and personalize your New Home with options and upgrades.
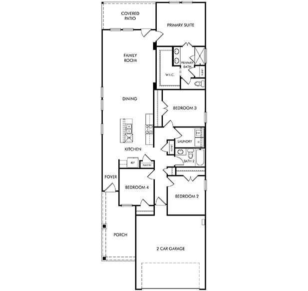
4 BR
2 BA
2 GR
1,550 SQ FT

Elevation A 1/13
Special offers
Explore the latest promotions at Lakehaven - Spring Series. Contact Meritage Homes to learn more!
Cozy up to your new home this fall
Overview
1 Story
1550 Sq Ft
2 Bathrooms
2 Car Garage
4 Bedrooms
Green Construction
Primary Bed Downstairs
Single Family
The Carlsbad Plan Info
Set-up your home office or create a space for guests to feel at home. With four bedrooms, you can customize the Carlsbad's layout to meet your family's needs. In the kitchen, the useful island and large pantry help simplify mealtimes.
Floor plan center
View floor plan details for this property.
- Floor Plans
- Exterior Images
- Interior Images
- Other Media
Neighborhood
Community location & sales center
3704 Richland Drive
Farmersville, TX 75442
3704 Richland Drive
Farmersville, TX 75442
Schools near Lakehaven - Spring Series
- Farmersville Independent School District
Actual schools may vary. Contact the builder for more information.
Amenities
Home details
Green program
Setting the standard for Energy Efficiency
Ready to build
Build the home of your dreams with the The Carlsbad plan by selecting your favorite options. For the best selection, pick your lot in Lakehaven - Spring Series today!
Community & neighborhood
Local points of interest
- Lake Lavon
- Jalapeno's of Farmersville
- Brookshire's - Farmersville
- Country Roads Vendor Mall
- Charlie's Old Fashioned Burgers
- Greenbelt
- Pond
Health and fitness
- Pool
- Trails
- Basketball
Community services & perks
- HOA fees: Unknown, please contact the builder
- Playground
- Community Center
Neighborhood amenities
Brookshire's
3.36 miles away
1705 W Audie Murphy Pkwy
North End Grocery
6.10 miles away
400 McKinney Ave
Walmart Supercenter
6.59 miles away
701 W Princeton Dr
Plus1Foru Errands
6.77 miles away
478 Coolidge Ln
Walmart Supercenter
8.23 miles away
2050 N Highway 78
Pieville USA
4.79 miles away
107 S Main St
Frosty Paleteria
6.16 miles away
130 W Princeton Dr
Rusty's Bodywerks
0.69 mile away
2600 State Highway 78 S
Pizza Getti
2.63 miles away
7008 Highway 78 S
R McCoy BBQ
3.46 miles away
1806 W Audie Murphy Pkwy
Jeff's BBQ
3.55 miles away
15440 County Road 543
Vencia Italian
3.66 miles away
701 State Highway 78 S
Daylight Donuts
3.83 miles away
1055 W Audie Murphy Pkwy
Best Donuts
4.84 miles away
604 State Highway 78 N
Crave Espresso & Sandwich Bar
4.84 miles away
604 State Highway 78 N
Boba House By Charlie Jr
5.82 miles away
406 E Princeton Dr
Dutch Bros Coffee
6.10 miles away
603 W Princeton Dr
Family Dollar
4.84 miles away
604 State Highway 78 N
Sister's Boutique TSB LLC
5.15 miles away
8277 Private Road 5397
RG Pink & Fuschia
6.17 miles away
513 N 4th St
Walmart Supercenter
6.59 miles away
701 W Princeton Dr
Walmart Supercenter
8.23 miles away
2050 N Highway 78
Bottles & Boards Private Club
4.77 miles away
106 McKinney St
Rodeo
6.61 miles away
450 State Highway 78
The Boozy Slush
6.61 miles away
450 State Highway 78
Wylie Vapor Bar
9.78 miles away
207 N Ballard Ave
Please note this information may vary. If you come across anything inaccurate, please contact us.
Open the door to Life. Built. Better.® with an experienced homebuilder known for quality construction, designer-curated interiors, award-winning energy efficiency and a simplified buying process. Since 1985, Meritage Homes® has delivered more than 180,000 homes across Arizona, California, Colorado, Utah, Texas, Florida, Georgia, North Carolina, South Carolina and Tennessee. Take the next step toward your dream home and discover the Meritage difference.
Take the next steps toward your new home
The Carlsbad Plan by Meritage Homes
saved to favorites!
To see all the homes you’ve saved, visit the My Favorites section of your account.
Discover More Great Communities
Select additional listings for more information
We're preparing your brochure
You're now connected with Meritage Homes. We'll send you more info soon.
The brochure will download automatically when ready.
Brochure downloaded successfully
Your brochure has been saved. You're now connected with Meritage Homes, and we've emailed you a copy for your convenience.
The brochure will download automatically when ready.
Way to Go!
You’re connected with Meritage Homes.
The best way to find out more is to visit the community yourself!