The Cooper Plan
Ready to build
Myrtle Beach SC 29572
Home by CRG Homes
at Living Dunes

Last updated 11/21/2025
The Price Range displayed reflects the base price of the homes built in this community.
You get to select from the many different types of homes built by this Builder and personalize your New Home with options and upgrades.
3 BR
2.5 BA
1.5 GR
2,196 SQ FT

Exterior 1/48
Overview
1 Half Bathroom
1.5 Car Garage
2 Bathrooms
2 Stories
2196 Sq Ft
3 Bedrooms
Bonus Room
Dining Room
Flex Room
Green Construction
Guest Room
Living Room
Patio
Porch
Primary Bed Downstairs
Single Family
Walk-In Closets
The Cooper Plan Info
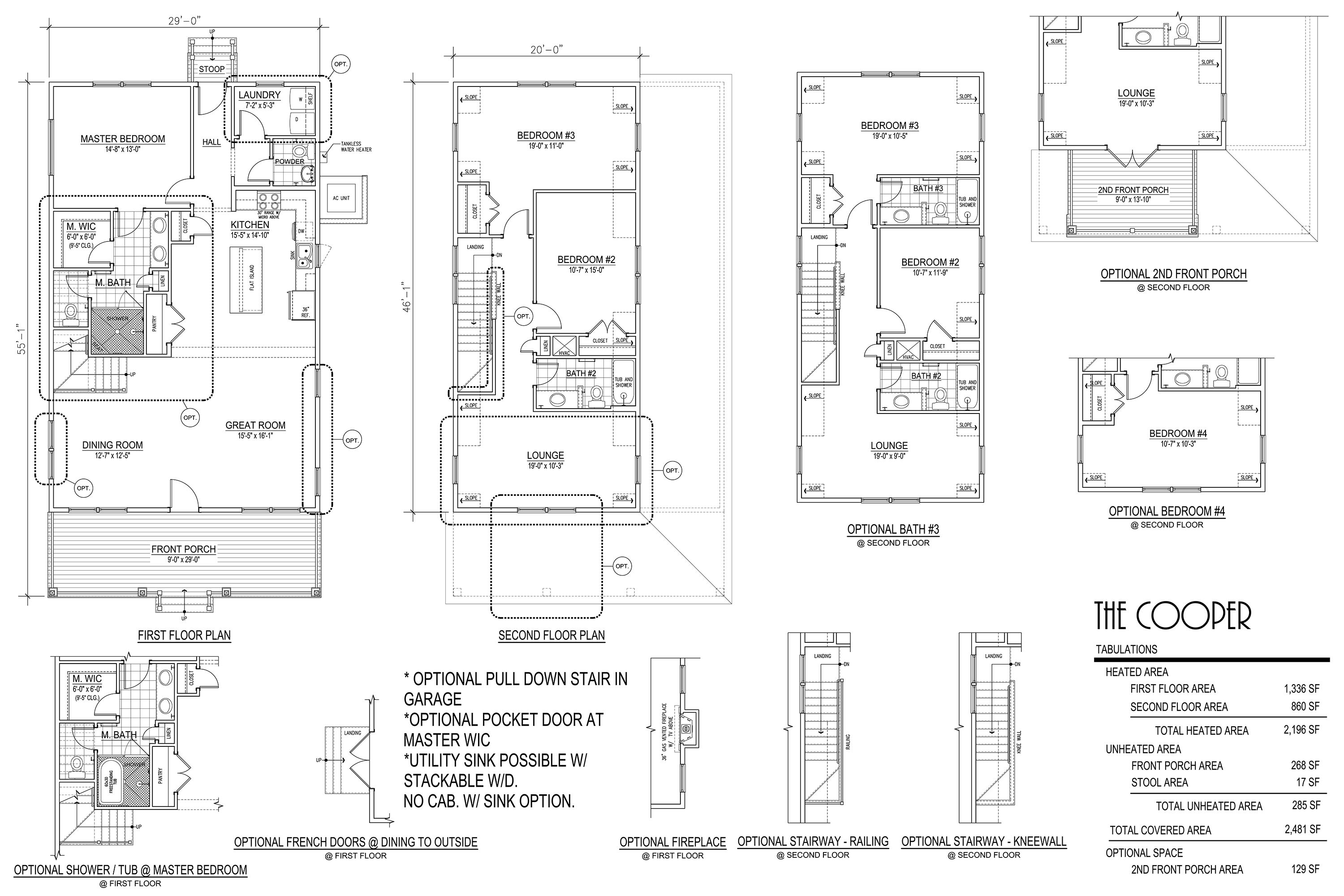
The Cooper is a very versatile plan with an open living/dining/kitchen, first floor Master Suite, and two bedrooms and flex room upstairs allowing for a bonus room or a 4th bedroom. The Cooper Plan Standards Include: • 3 bedroom / 2.5 bath • Open floor plan concept • Master suite located on the main floor • Master Bath includes a walk-in tiled shower • Laundry Room on main floor • Kitchen features an island with bar stool seating area • Powder Room near rear entrance • Large welcoming front porch • Second floor Lounge • Dormers located in second floor bedrooms and lounge • Detached 1.5 car garage creating outdoor courtyard space Structural Options Available for The Cooper: • Add a fireplace to the exterior wall of the great room. • Add a built-in cabinet to the kitchen. • Add an attached garage. • Choose to add a knee wall or railing to the 2nd floor stairway. • Convert the 2nd floor lounge into a 4th bedroom. • Add a 2nd floor porch accessible from the lounge or optional 4th bedroom. • Create a 2nd floor ensuite by adding a 3rd full bathroom to bedroom 3.
Floor plan center
View floor plan details for this property.
- Floor Plans
- Exterior Images
- Interior Images
- Other Media
Neighborhood
Community location
8099 Sandlapper Way
Myrtle Beach, SC 29572
849 82nd Parkway
Myrtle Beach, SC 29572
888-383-4752
Living Dunes is located between Hwy 17 Bypass and US Business 17 and can be accessed from either 82nd Parkway or Grande Dunes Blvd. The Sales & Design Center is located directly across from the neighborhood entrance located on 82nd Parkway inside CRG Companies.
Nearby schools
Horry County Schools
Elementary school. Grades PK to KG.
- Public school
- Teacher - student ratio: 1:16
- Students enrolled: 516
612 29th Ave N, Myrtle Beach, SC, 29577
843-448-1658
Elementary school. Grades 1 to 2.
- Public school
- Teacher - student ratio: 1:15
- Students enrolled: 675
620 29th Ave N, Myrtle Beach, SC, 29577
843-448-1658
Elementary school. Grades 3 to 5.
- Public school
- Teacher - student ratio: 1:16
- Students enrolled: 1042
950 Seahawk Way, Myrtle Beach, SC, 29577
843-448-1774
Middle school. Grades 6 to 8.
- Public school
- Teacher - student ratio: 1:16
- Students enrolled: 1124
3101 N Oak St, Myrtle Beach, SC, 29577
843-448-3932
High school. Grades 9 to 12.
- Public school
- Teacher - student ratio: 1:19
- Students enrolled: 1633
3302 Robert M Grissom Pkwy, Myrtle Beach, SC, 29577
843-448-7149
High school. Grades 9 to 12.
- Public school
- Teacher - student ratio: 1:10
- Students enrolled: 131
104 Chanticleer Dr East, Conway, SC, 29526
843-349-4117
Actual schools may vary. We recommend verifying with the local school district, the school assignment and enrollment process.
Amenities
Home details
Ready to build
Build the home of your dreams with the The Cooper plan by selecting your favorite options today!
Community & neighborhood
Local points of interest
- Views
- Lake
- Pond
- WaterFront Lots
- Marina
- Beach
Social activities
- Club House
Community services & perks
- HOA fees: Unknown, please contact the builder
Neighborhood amenities
Publix
0.25 mile away
7925 N Kings Hwy
The Fresh Market
0.42 mile away
7747 N Kings Hwy
Food Lion
0.56 mile away
7631 N Kings Hwy
Food Lion
1.66 miles away
6103 N Kings Hwy
Kroger
1.97 miles away
9610 N Kings Hwy
New Life Natural Foods
0.53 mile away
7611 N Kings Hwy
Breaking Bark Bakery
2.50 miles away
5335 N Kings Hwy
Priceless Desserts
2.68 miles away
5109 N Kings Hwy
Walmart Bakery
3.44 miles away
10820 Kings Rd
Walmart Bakery
3.55 miles away
3915 N Kings Hwy
Bojangles'
0.15 mile away
8215 N Kings Hwy
McDonald's
0.18 mile away
8015 N Kings Hwy
Fortune Asian Bistro
0.20 mile away
7937 N Kings Hwy
Peno Mediterranean Grill
0.20 mile away
7937 N Kings Hwy
Croissants Bistro & Bakery
0.21 mile away
8014 N Kings Hwy
Starbucks
0.21 mile away
7955 N Kings Hwy
Second Cup
0.42 mile away
7819 N Kings Hwy
Dunkin'
0.57 mile away
9710 N Kings Hwy
Dunkin'
0.90 mile away
7102 N Kings Hwy
Starbucks
0.93 mile away
7200 N Ocean Blvd
Journeys
0.57 mile away
17 10839 Kings Rd
PR Shoes
0.57 mile away
10545 N Kings Hwy
Bihari Enterprises Inc
0.58 mile away
406 Pine Cir
Talbots
0.86 mile away
7200 N Kings Hwy
Ooh La La
1.07 miles away
6912 N Kings Hwy
Fire and Smoke Gastropub
0.44 mile away
411 79th Ave N
Ocean Blu
0.46 mile away
8400 Costa Verda Dr
Cafe Vincenzo's
0.49 mile away
7710 N Kings Hwy
Liberty Taproom & Grill
0.51 mile away
7651 N Kings Hwy
Flamingo Grill
0.57 mile away
7050 N Kings Hwy
Please note this information may vary. If you come across anything inaccurate, please contact us.
Inspired by a vision to create more than just a collection of homes, Living Dunes developers worked with both local and national leaders in the industry to develop a community that would define the term neo-traditional with a focus on bringing together the best of the old with the best of the new. From concept, through planning, and now construction, the Living Dunes developers have maintained a focus on the future of their residents and of the greater Myrtle Beach community to ensure homes are not only built to last, but to contribute to a healthy environment, and to support our growing population. Living Dunes is a development of Living Beach, a local company focused on community revitalization through residential housing. Their work in the Myrtle Beach community ranges from new home construction to property management. They have several rental properties that provide both short term and long-term rentals, many of which were existing homes renovated fully to provide updated accommodations. Living Beach believes that careful planning, efficient designs, and skilled professionals can create and preserve communities for future generations. With a core focus on moving from subdivisions towards living in neighborhoods and communities that support each as well as other encourage growth and sustainability, Living Beach is proud to call Living Dunes the first of many future developments on the South Carolina Coast.
Take the next steps toward your new home
The Cooper Plan by CRG Homes
saved to favorites!
To see all the homes you’ve saved, visit the My Favorites section of your account.
Discover More Great Communities
Select additional listings for more information
We're preparing your brochure
You're now connected with CRG Homes. We'll send you more info soon.
The brochure will download automatically when ready.
Brochure downloaded successfully
Your brochure has been saved. You're now connected with CRG Homes, and we've emailed you a copy for your convenience.
The brochure will download automatically when ready.
Way to Go!
You’re connected with CRG Homes.
The best way to find out more is to visit the community yourself!